Bildegalleri

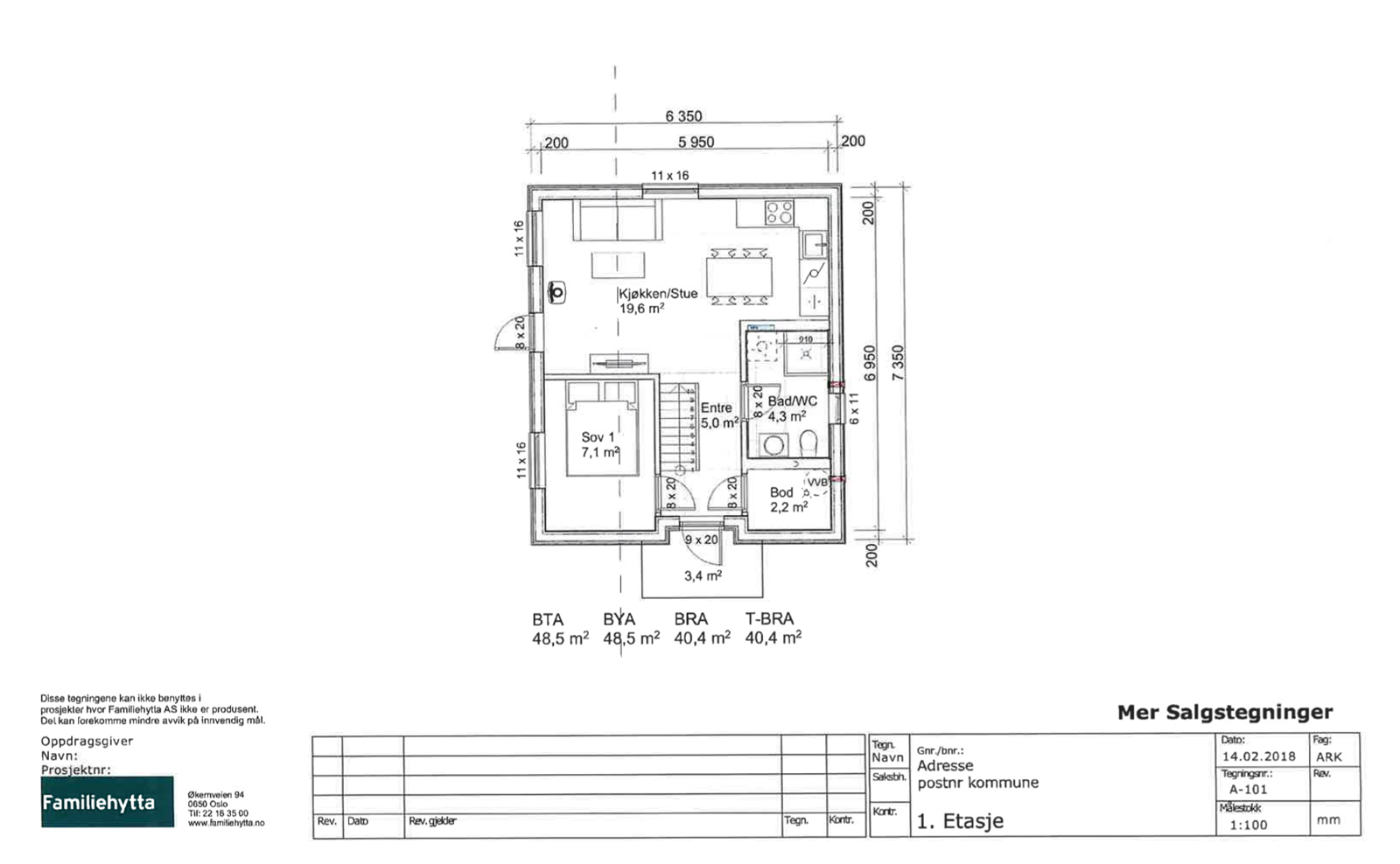
Velkommen til Sprenåsgrenda 4 - Nylig oppført kompakthytte med svært effektiv planløsning som utnytter hver kvadratmeter, med et samlet gulvareal på ca. 61 kvm. Foto:

Turufjell

Under 2t fra Oslo - Delikat kompakthytte med hems og romslig terrasse - Peis og varmepumpe - Beliggende ved naturarealer

Prisantydning2 700 000 kr
Omkostninger
68 880 kr
Totalpris
2 768 880 kr
Eiendomsskatt
4 620 kr per år

Nøkkelinfo

Beliggenhet
På fjellet
Boligtype
Hytte
Eieform
Eier (Selveier)
Internt bruksareal
40 m² (BRA-i)
Bruksareal
40 m²
Balkong/Terrasse
29 m² (TBA)
Tomteareal
448 m² (eiet)
Byggeår
2024
Soverom
1
Rom
2

Les mer om bruksareal her

Fasiliteter

Innlagt vann
Alpinanlegg
Balkong/Terrasse
Barnevennlig
Bilvei frem
Bredbåndstilknytning
Garasje/P-plass
Hage
Kabel-TV
Peis/Ildsted
Rolig
Utsikt
Bademulighet
Fiskemulighet
Innlagt strøm
Offentlig vann/kloakk
Turterreng

Visning

Ta kontakt for å avtale visning.

Husk å lese komplett salgsoppgave før visning. Bestill komplett, utskriftsvennlig salgsoppgave.

Visningspåmelding

Om boligen

Velkommen til Sprenåsgrenda 4 på Turufjell, presentert av Nordvik Bolig v/ Christer Barman Gabrielsen

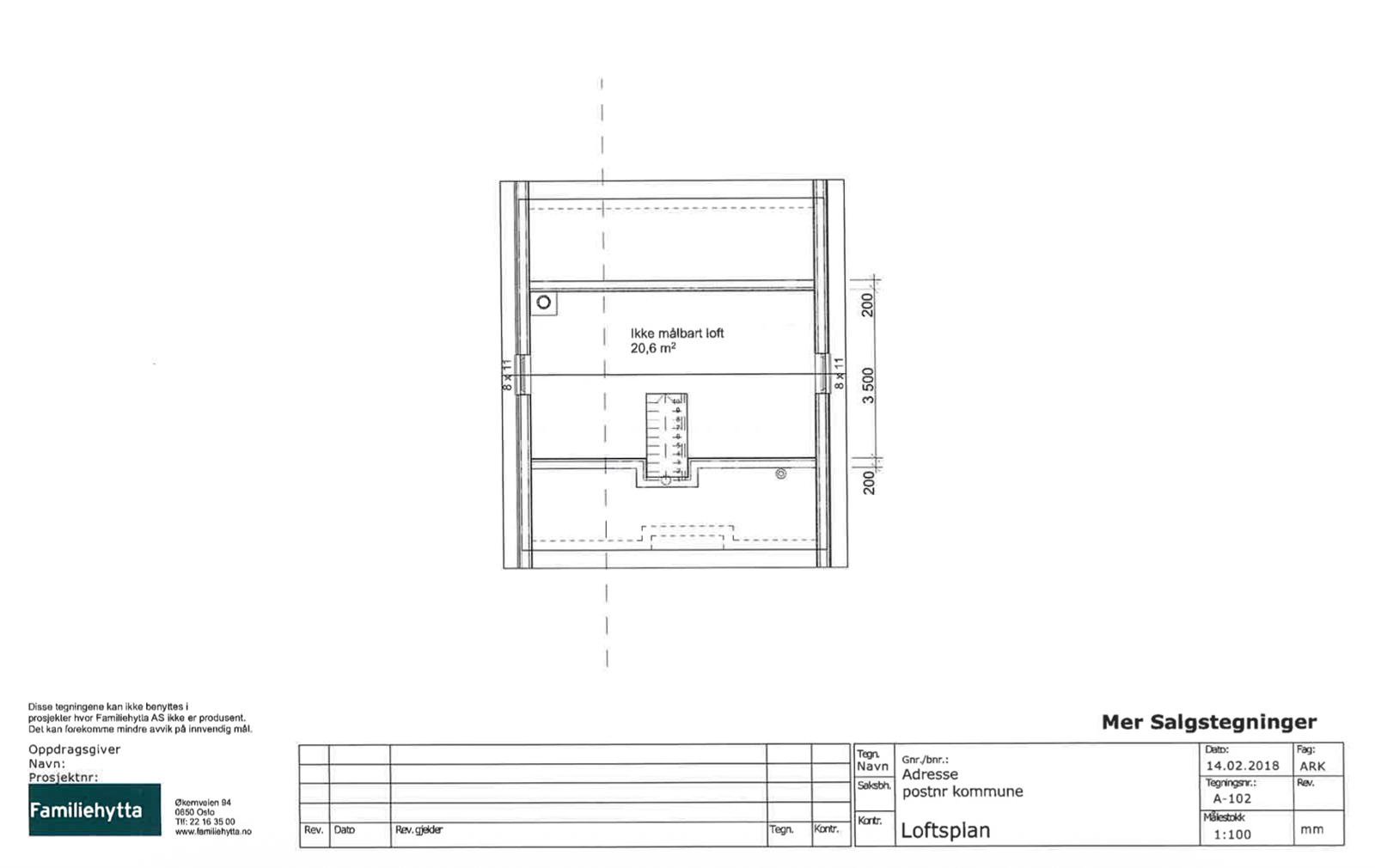
Nylig oppført kompakthytte med svært effektiv planløsning som utnytter hver kvadratmeter, med en grunnflate på ca. 40 kvm og et samlet gulvareal på ca. 61 kvm. Hytta innehar alle moderne kvaliteter for en hyggelig og komfortabel hytteopplevelse med nærhet til Turufjell skianlegg.

  • Oppført 2024 med gjennomtenkte løsninger og høy standard
  • Romslig nordøstvendt terrasse på hele 29 kvm
  • Oppvarmes via både vedovn og varmepumpe
  • Totalt gulvareal på 61 kvm
  • Totalt 4 sengeplasser
  • Biloppstillingsplass på tomten
  • Koselig hems med loftstue og 2 sengeplasser
  • Ingen TG2 eller TG3

    Ta kontakt med Christer Barman Gabrielsen på 950 41 364 for å avtale visning.

Salgsoppgaven beskriver vesentlig og lovpålagt informasjon om eiendommen

Se komplett salgsoppgave

Nærområdet

Annonseinformasjon

FINN-kode449852824
Sist endret11. feb. 2026 11:51
Referanse8-0075/26

Rapporter annonse

Annonsene kan være mangelfulle i forhold til lovpålagt opplysningsplikt. Før bindende avtale inngås oppfordres interessenter til å innhente komplett informasjon fra meglerforetaket, selger eller utleier.