Bildegalleri

Eiendomsmegler Ida Follinglo presenterer denne eiendommen i Ølnesseter hyttefelt på Bagn Vestås i Sør-Aurdal kommune Foto: Christine Stokkebryn. Foto: Selger.
Ølnesseter
Velholdt og fin hytte over to plan med 4 soverom og 2 bad - Badstue - Gode uteplasser og flott utsikt
Prisantydning4 990 000 kr
- Omkostninger
- 125 840 kr
- Totalpris
- 5 115 840 kr
- Kommunale avg.
- 12 072 kr per år
Nøkkelinfo
- Beliggenhet
- På fjellet
- Boligtype
- Hytte
- Eieform
- Eier (Selveier)
- Internt bruksareal
- 123 m² (BRA-i)
- Bruksareal
- 128 m²
- Eksternt bruksareal
- 5 m² (BRA-e)
- Balkong/Terrasse
- 52 m² (TBA)
- Tomteareal
- 1 576 m² (eiet)
- Byggeår
- 2015
- Soverom
- 4
- Rom
- 6
- Energimerking
- C - Lysegrønn
Fasiliteter
Balkong/Terrasse
Fiskemulighet
Peis/Ildsted
Turterreng
Utsikt
Bilvei frem
Innlagt strøm
Innlagt vann
Visning
lørdag, 14. februar
13:30 – 14:30
Velkommen til visning! Husk påmelding - Annonserte visninger uten påmeldinger innen kl. 16 dagen før, vil ikke bli avholdt Alle våre visninger har påmelding. På denne måten sikrer vi at megler har god oversikt og tid til å imøtekomme alle interessenter på beste måte. Dette er veldig verdifullt for boligkjøpere og for oss. Det er enkelt å melde seg på, og du kan like enkelt melde deg av. Kontakt også gjerne megler i forkant av visning dersom du har spørsmål.
Husk å lese komplett salgsoppgave før visning. Bestill komplett, utskriftsvennlig salgsoppgave.
VisningspåmeldingOm boligen
Fjellreksla 4 ligger i Ølnesseter hyttefelt på Bagn Vestås i Sør-Aurdal kommune.
Eiendommen ligger på ca. 935 moh. og har flott utsikt mot fjellområdet. Utesonene kan by på alt fra å nyte morgenkaffen, en god middag eller kos rundt bålpanna.
Skiløypa Ølnessæterfjellet rundt går like ved, denne knytter seg inn på det enorme løypenettet som strekker seg over flere mil.
EIendommen og nærområdet er omringet av den vakre naturen - benytt den gjerne til fots, på sykkel eller ved hytteveggen.
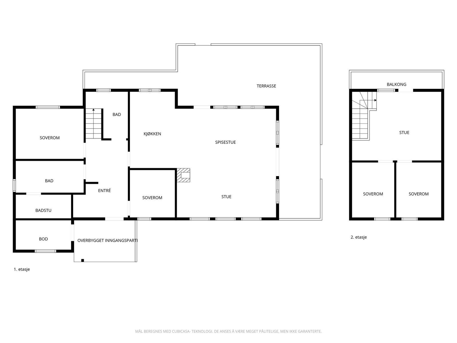
Velholdt hytte over to plan som byr på god plass, komfort og en gjennomført planløsning som passer perfekt for både familie og gjester på tur.
Stue med spiseplass, åpent til kjøkken med innredning av heltre.
2 soverom og 2 bad hvor det ene med badstue.
2. etasjen har stue, 2 soverom og lagringshems.
Utvendig bod.
Stor terrasse, overbygget ut for stue.
Eiendommen ligger på ca. 935 moh. og har flott utsikt mot fjellområdet. Utesonene kan by på alt fra å nyte morgenkaffen, en god middag eller kos rundt bålpanna.
Skiløypa Ølnessæterfjellet rundt går like ved, denne knytter seg inn på det enorme løypenettet som strekker seg over flere mil.
EIendommen og nærområdet er omringet av den vakre naturen - benytt den gjerne til fots, på sykkel eller ved hytteveggen.
Velholdt hytte over to plan som byr på god plass, komfort og en gjennomført planløsning som passer perfekt for både familie og gjester på tur.
Stue med spiseplass, åpent til kjøkken med innredning av heltre.
2 soverom og 2 bad hvor det ene med badstue.
2. etasjen har stue, 2 soverom og lagringshems.
Utvendig bod.
Stor terrasse, overbygget ut for stue.
NB: Knappen for å vise hele beskrivelsen har kun en visuell effekt.
NB: Knappen for å vise hele beskrivelsen har kun en visuell effekt.
Salgsoppgaven beskriver vesentlig og lovpålagt informasjon om eiendommen
Se komplett salgsoppgaveNærområdet

PrivatMegleren Valdres
Kun det beste på dine vegne
Annonseinformasjon
| FINN-kode | 449837906 |
|---|---|
| Sist endret | 07. feb. 2026 18:11 |
| Referanse | 71251090 |
Annonsene kan være mangelfulle i forhold til lovpålagt opplysningsplikt. Før bindende avtale inngås oppfordres interessenter til å innhente komplett informasjon fra meglerforetaket, selger eller utleier.
































































