Bildegalleri

Hytte under oppføring | God standard med åpen planløsning og generøs takhøyde | 3 sov | Rett ved skianlegg og turområder
Prisantydning4 390 000 kr
- Omkostninger
- 11 090 kr
- Totalpris
- 4 401 090 kr
- Kommunale avg.
- 13 940 kr per år
Nøkkelinfo
- Boligtype
- Hytte
- Eieform
- Eier (Selveier)
- Internt bruksareal
- 125 m² (BRA-i)
- Bruksareal
- 125 m²
- Tomteareal
- 632 m² (festet)
- Festeavgift
- 600 kr
- Byggeår
- 2026
- Soverom
- 3
- Rom
- 4
- Sengeplasser
- 6
Fasiliteter
Garasje/P-plass
Fiskemulighet
Peis/Ildsted
Turterreng
Alpinanlegg
Innlagt strøm
Innlagt vann
Balansert ventilasjon
Visning
Ta kontakt for å avtale visning.Husk å lese komplett salgsoppgave før visning. Bestill komplett, utskriftsvennlig salgsoppgave.
VisningspåmeldingOm boligen
Harestigen 44 er i dag en råtomt med god beliggenhet i attraktive omgivelser i Uvdal, hvor det er planlagt oppføring av en delikat og moderne fritidsbolig. Hytten får en gjennomgående god standard og oppføres i henhold til TEK-17. Igangsetting er planlagt 2. kvartal 2026.
Her får du en sjelden mulighet til å bli første eier av en ny, lettstelt og moderne hytte, tilpasset dagens krav til komfort og kvalitet. Prosjektet kombinerer moderne arkitektur med funksjonelle løsninger, og gir et solid utgangspunkt for et bekymringsfritt hytteliv i mange år fremover.
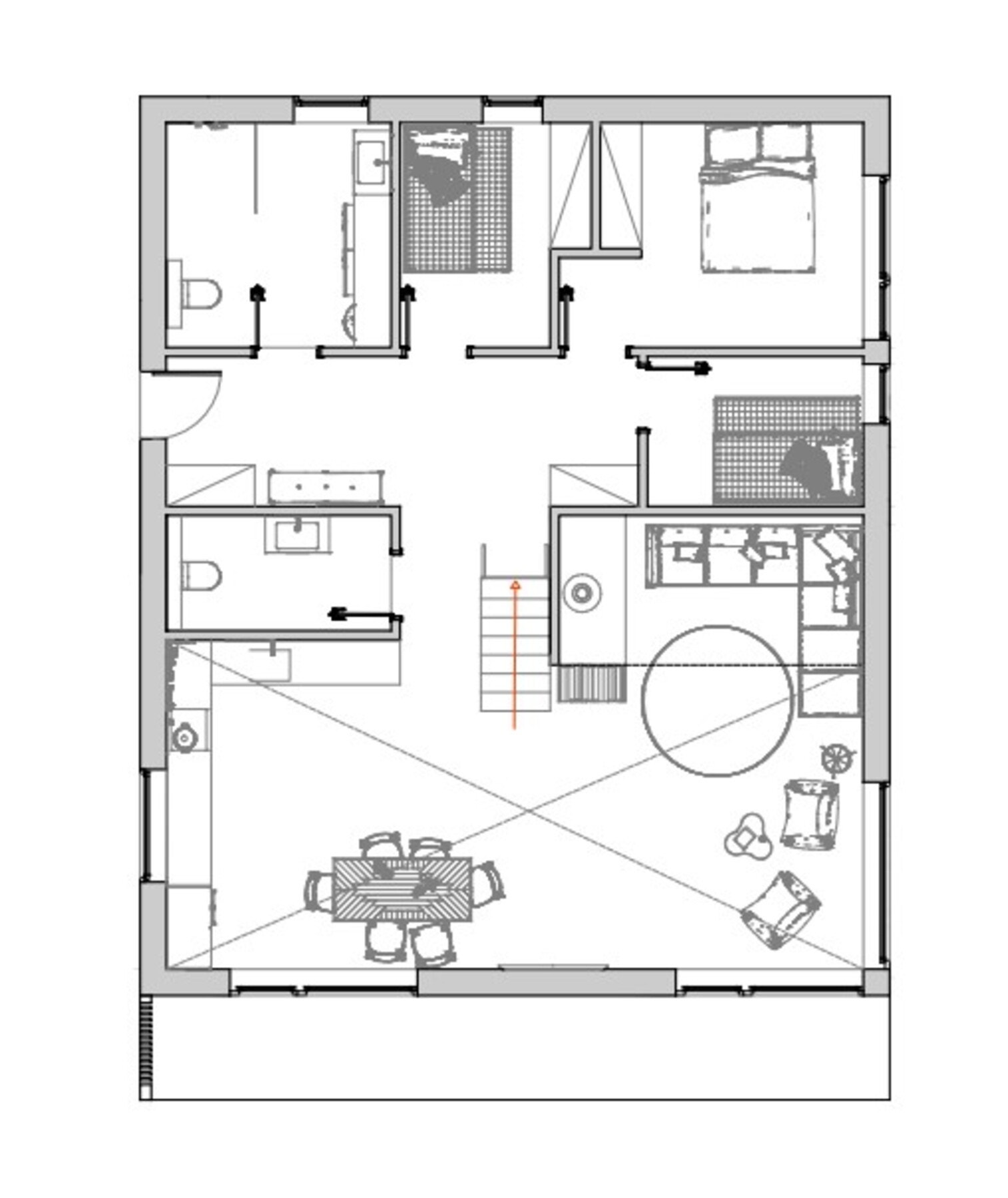
Innhold: Entré, stue med spisestue, kjøkken, 3 soverom, 1,5 bad og hemsrom.
Attraktiv beliggenhet med nærhet til flotte friluftsområder. Området byr på et bredt aktivitetstilbud året rundt, nært alpinanlegg, langrennsløyper og marka.
Her får du en sjelden mulighet til å bli første eier av en ny, lettstelt og moderne hytte, tilpasset dagens krav til komfort og kvalitet. Prosjektet kombinerer moderne arkitektur med funksjonelle løsninger, og gir et solid utgangspunkt for et bekymringsfritt hytteliv i mange år fremover.
Innhold: Entré, stue med spisestue, kjøkken, 3 soverom, 1,5 bad og hemsrom.
Attraktiv beliggenhet med nærhet til flotte friluftsområder. Området byr på et bredt aktivitetstilbud året rundt, nært alpinanlegg, langrennsløyper og marka.
NB: Knappen for å vise hele beskrivelsen har kun en visuell effekt.
NB: Knappen for å vise hele beskrivelsen har kun en visuell effekt.
Salgsoppgaven beskriver vesentlig og lovpålagt informasjon om eiendommen
Se komplett salgsoppgaveNyttige lenker
Nærområdet

PrivatMegleren Drammen
Kun det beste på dine vegne
Annonseinformasjon
| FINN-kode | 449639455 |
|---|---|
| Sist endret | 05. feb. 2026 09:50 |
| Referanse | 83251181 |
Annonsene kan være mangelfulle i forhold til lovpålagt opplysningsplikt. Før bindende avtale inngås oppfordres interessenter til å innhente komplett informasjon fra meglerforetaket, selger eller utleier.








