Bildegalleri

Velkommen til denne flotte fritidsboligen i Sandbakkveien 31! Foto: Hanna Linnea Kristensen.
Balsnes
Her er hyttedrømmen - flott fritidsbolig fra 2011 med helårsstandard, utestue og storslått fjordutsikt
Prisantydning3 100 000 kr
- Omkostninger
- 94 750 kr
- Totalpris
- 3 194 750 kr
- Kommunale avg.
- 13 884 kr per år
- Formuesverdi
- 437 500 kr
- Verditakst
- 3 100 000 kr
Nøkkelinfo
- Beliggenhet
- Ved sjøen
- Boligtype
- Hytte
- Eieform
- Eier (Selveier)
- Internt bruksareal
- 75 m² (BRA-i)
- Bruksareal
- 98 m²
- Eksternt bruksareal
- 23 m² (BRA-e)
- Balkong/Terrasse
- 180 m² (TBA)
- Tomteareal
- 1 000 m²
- Byggeår
- 2011
- Soverom
- 3
- Rom
- 4
Fasiliteter
Innlagt vann
Balkong/Terrasse
Barnevennlig
Bilvei frem
Garasje/P-plass
Peis/Ildsted
Rolig
Utsikt
Bademulighet
Fiskemulighet
Innlagt strøm
Turterreng
Visning
tirsdag, 17. februar
16:00 – 17:00
Alle våre visninger har påmelding. Dette gjør vi for å planlegge visningene best mulig, og ha god tid til de som kommer. Visninger uten påmeldte deltakere vil bli avlyst.
VisningspåmeldingOm boligen
Eiendomsmegler Ingve Hilstad presenterer her Sandbakkveien 31:
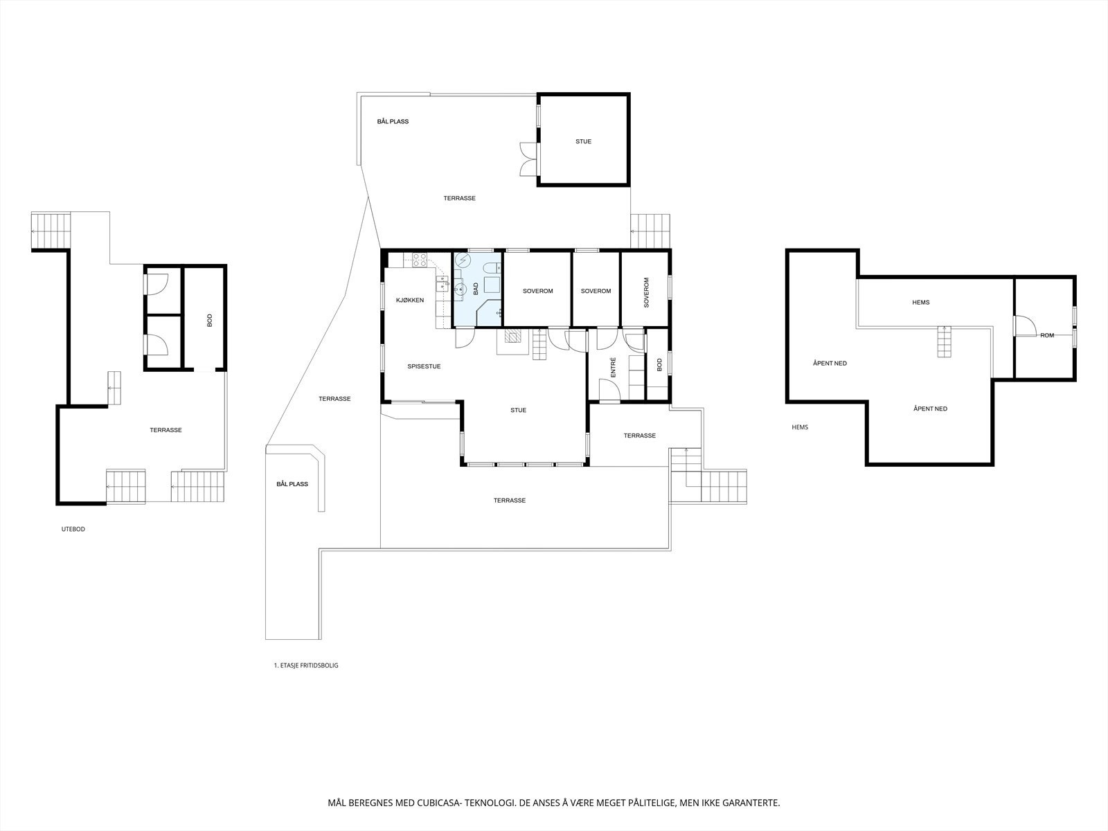
Velkommen til en flott fritidsbolig fra 2011, beliggende i rolige og naturskjønne omgivelser på Balsnes i et nyere hyttefelt.
Eiendommen har god standard og er tilrettelagt for helårsbruk.
Hytta inneholder gang, bod, tre soverom, hems, stue med åpen kjøkkenløsning samt bad/vaskerom.
I tillegg medfølger utestue og utebod.
Store terrassearealer gir gode solforhold og flott utsikt mot Ofotfjorden og fjellene rundt.
Kort vei til sjøen og fine turområder.
Bryggeanlegg i hyttefeltet.
Septik og offentlig vannforsyning.
En eiendom som passer perfekt for familie og venner som ønsker et sted å koble av og nyte naturen.
Kontakt megler for visning!
Velkommen til en flott fritidsbolig fra 2011, beliggende i rolige og naturskjønne omgivelser på Balsnes i et nyere hyttefelt.
Eiendommen har god standard og er tilrettelagt for helårsbruk.
Hytta inneholder gang, bod, tre soverom, hems, stue med åpen kjøkkenløsning samt bad/vaskerom.
I tillegg medfølger utestue og utebod.
Store terrassearealer gir gode solforhold og flott utsikt mot Ofotfjorden og fjellene rundt.
Kort vei til sjøen og fine turområder.
Bryggeanlegg i hyttefeltet.
Septik og offentlig vannforsyning.
En eiendom som passer perfekt for familie og venner som ønsker et sted å koble av og nyte naturen.
Kontakt megler for visning!
NB: Knappen for å vise hele beskrivelsen har kun en visuell effekt.
NB: Knappen for å vise hele beskrivelsen har kun en visuell effekt.
Salgsoppgaven beskriver vesentlig og lovpålagt informasjon om eiendommen
Se komplett salgsoppgaveNyttige lenker
Nærområdet
JENSSEN & BOLLE EIENDOMSMEGLING AS
Jenssen & Bolle Eiendomsmegling
Annonseinformasjon
| FINN-kode | 449335011 |
|---|---|
| Sist endret | 03. feb. 2026 18:11 |
| Referanse | JOB1.25229 |
Annonsene kan være mangelfulle i forhold til lovpålagt opplysningsplikt. Før bindende avtale inngås oppfordres interessenter til å innhente komplett informasjon fra meglerforetaket, selger eller utleier.















































