Bildegalleri

Leiligheten ligger i midten i 1 etg. Nr 8 er tilhørende parkeringsplass
Uvdal Lodge. Ski in/ski out. Ca 250 m fra Hardangervidda. Ca 1000moh.
- Omkostninger
- 106 740 kr
- Totalpris
- 3 696 740 kr
- Kommunale avg.
- 12 444 kr per år
- Felleskost/mnd.
- 2 337 kr
Nøkkelinfo
- Beliggenhet
- På fjellet
- Boligtype
- Leilighet
- Eieform
- Eier (Selveier)
- Internt bruksareal
- 82 m² (BRA-i)
- Bruksareal
- 87 m²
- Eksternt bruksareal
- 5 m² (BRA-e)
- Tomteareal
- 2 704 m² (eiet)
- Byggeår
- 2022
- Soverom
- 3
- Rom
- 4
- Sengeplasser
- 6
Fasiliteter
Om eiendommen
Om boligen
Leiligheten ligger på toppen av Uvdal Skisenter, helt inntil alpinbakken med god utsikt.
Uvdal Lodge består av 2 bygg med 6 leiligheter i hvert bygg, respektive leilighet ligger i bygg B i midten av 1 etg . Egen oppmerket parkeringsplass. Gjesteparkering foregår på oppmerket område.
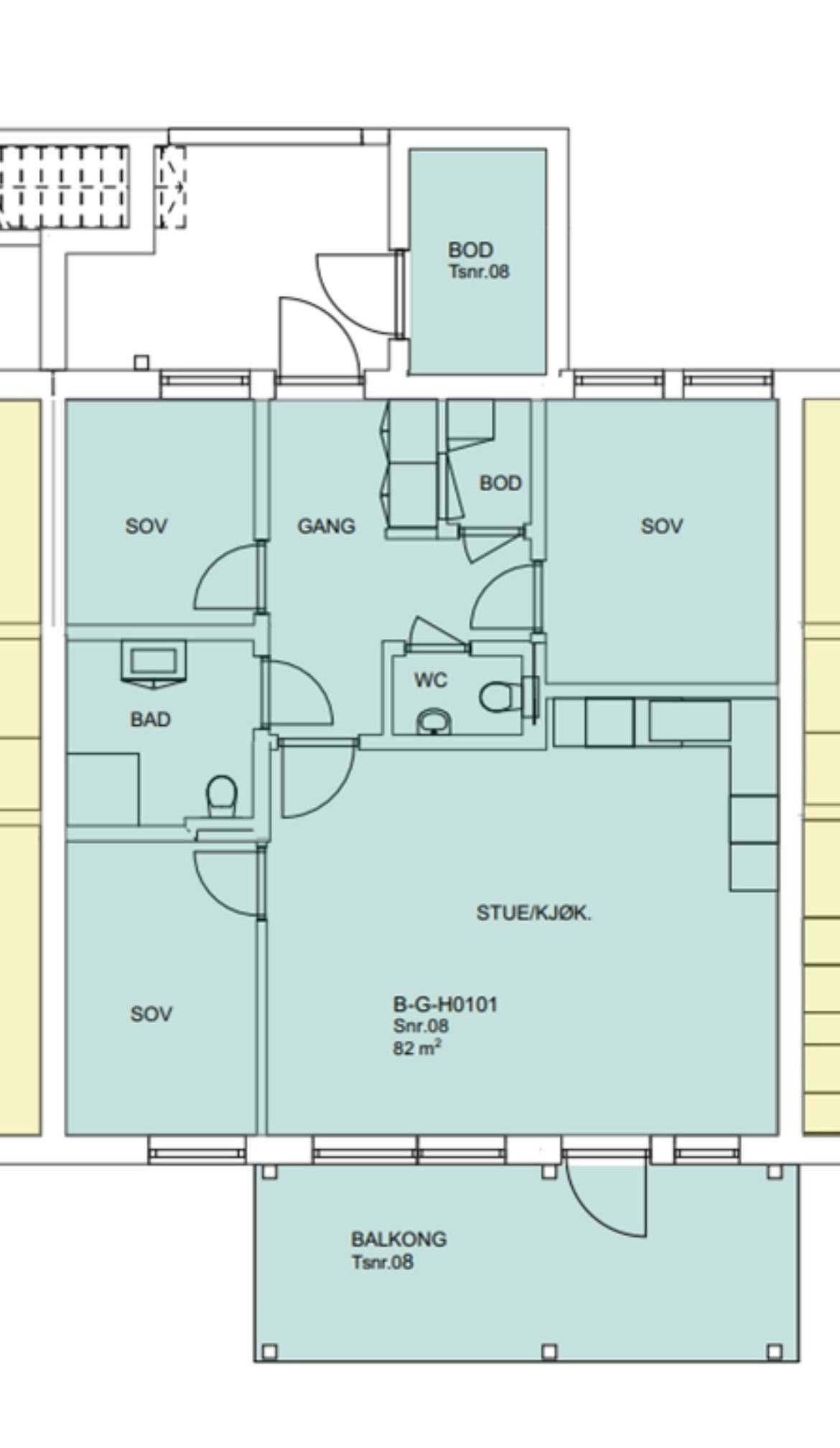
Leiligheten består av kombinert kjøkken/stue m peis, 3 soverom med plass til dobbeltseng, bad, gang, separat toalett og teknisk bod inne. Det er god plass i utvendig bod på 4,8 m2. Utgang til platting fra stue. Varmekabel på bad, toalett og gang. Panelovn og peis i Stue/Kjøkken. Integrerte hvitevarer og balansert ventilasjon.
Beliggenhet
Uvdal er et område i Nore og Uvdal kommune øverst i Numedal, preget av en vid og åpen dal som strekker seg vestover mot Hardangervidda. Området er kjent for sin storslåtte natur, rike kulturarv og et aktivt friluftsliv med gode muligheter for ski, både nedover og bortover, fotturer, jakt og fiske. Det er alpinsenter med kafe, skiutleie, sportsbutikk og afterski.
Avstand Drammen 170 km ca 2t 40 min.
Avstand Geilo 48 km.
Avstand Solheimstulen DNT Hytte 16 km.
Avstand Vasstulan (Dagali) 13 km.
Avstand Langedrag Naturpark 60 km.
Annet
Visning avtales direkte med selger på telefon +47 976 64 664.
Leiligheten selges i utgangspunktet umøblert.
Kommunale avgifter er for 2025.
Omkostninger
15 900 kr (HELP boligkjøperforsikring (valgfritt))
89 750 kr (Dokumentavgift)
545 kr (Tinglysing av pantedokument)
545 kr (Tinglysing av skjøte)
---
106 740 kr (Omkostninger totalt)
---
3 696 740 kr (Totalpris inkl. omkostninger)
NB: Regnestykket forutsetter at det kun tinglyses én låneobligasjon og at eiendommen selges til prisantydning.
Det tas forbehold om endringer i offentlige og private gebyrer.
Selger er selv ansvarlig for følgende gebyr:
545 kr (Panterett med urådighet)
Salgsoppgaven beskriver vesentlig og lovpålagt informasjon om eiendommen
Se komplett salgsoppgaveNyttige lenker
Nærområdet
Propr.no
Annonsene kan være mangelfulle i forhold til lovpålagt opplysningsplikt. Før bindende avtale inngås oppfordres interessenter til å innhente komplett informasjon fra meglerforetaket, selger eller utleier.


















