Bildegalleri

Bjønnåsen
Flott og innholdsrik hytte på Bjønnåsen - Fire sov - To bad - Badstue og vaskerom - Fantastiske sol- & utsiktsforhold
Prisantydning5 490 000 kr
- Omkostninger
- 138 590 kr
- Totalpris
- 5 628 590 kr
- Kommunale avg.
- 19 388 kr per år
Nøkkelinfo
- Beliggenhet
- På fjellet
- Boligtype
- Hytte
- Eieform
- Eier (Selveier)
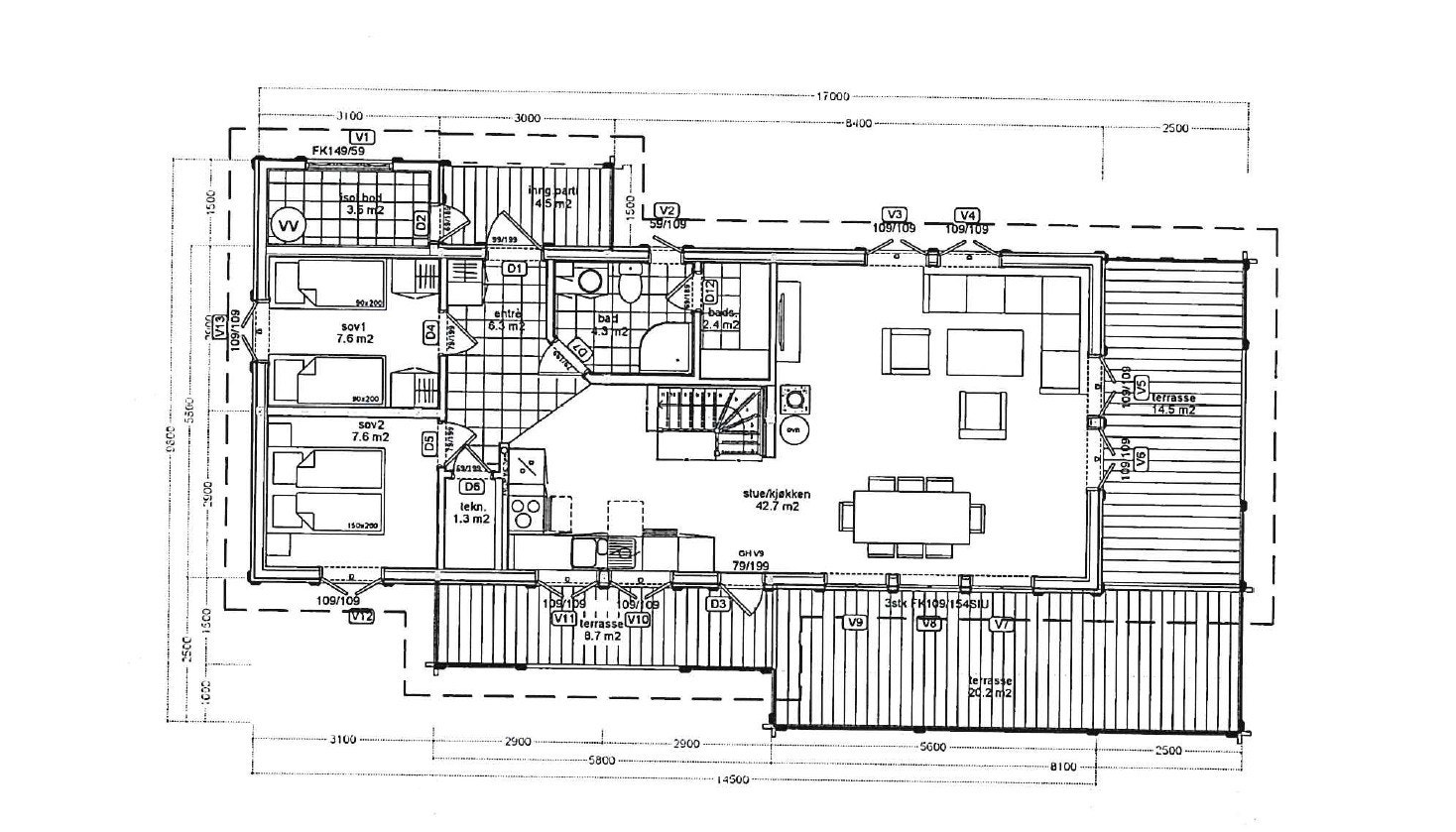
- Internt bruksareal
- 96 m² (BRA-i)
- Bruksareal
- 99 m²
- Eksternt bruksareal
- 3 m² (BRA-e)
- Balkong/Terrasse
- 46 m² (TBA)
- Tomteareal
- 1 019 m² (eiet)
- Byggeår
- 2020
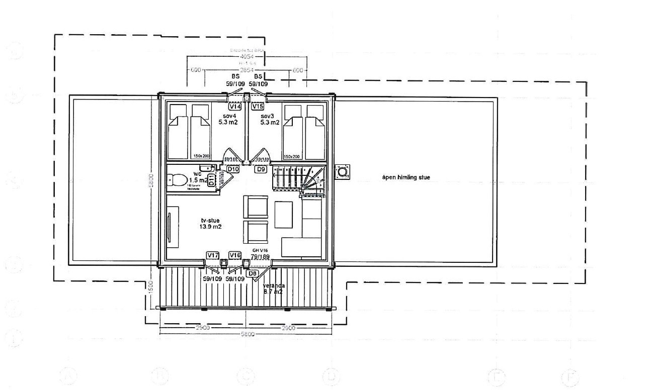
- Soverom
- 4
- Rom
- 6
- Energimerking
- C - Lysegrønn
Fasiliteter
Innlagt vann
Alpinanlegg
Balkong/Terrasse
Barnevennlig
Bilvei frem
Garasje/P-plass
Golfbane
Peis/Ildsted
Rolig
Utsikt
Bademulighet
Innlagt strøm
Turterreng
Lademulighet
Visning
lørdag, 14. februar
15:00 – 15:45
Husk å lese komplett salgsoppgave før visning. Bestill komplett, utskriftsvennlig salgsoppgave.
VisningspåmeldingOm boligen
Hytta ligger i Bjønnåsen hyttefelt, på solsiden i Trysil - luftig og fritt ca. 4 km fra Trysil sentrum. Eiendommen har en praktfull beliggenhet, med panoramautsikt mot Trysilfjellet. Solforholdene her er trolig noe av det beste du kan få i Trysil.
Hytta ble bygget i 2020 går over to plan. Velfungerende og sosial planløsning hvor kjøkken, spisestue og stue ligger sammenhengende som gir funksjonelle soner og en luftig romfølelse. Stor solrik terrasse med delvis overbygget parti. Her er det god plass til sosiale soner.
Kort fortalt:
- Torvtak og fine detaljer på eksteriør.
- Stor solrik terrasse med jacuzzi.
- Fire soverom med tilsammen 9 sengeplasser.
- Vaskerom.
- Lekkert bad med badstue.
- Elbillader.
- Fjernstyring av temperatur i hytta via app.
- Fiber og TV fra Altibox.
Velkommen!
Hytta ble bygget i 2020 går over to plan. Velfungerende og sosial planløsning hvor kjøkken, spisestue og stue ligger sammenhengende som gir funksjonelle soner og en luftig romfølelse. Stor solrik terrasse med delvis overbygget parti. Her er det god plass til sosiale soner.
Kort fortalt:
- Torvtak og fine detaljer på eksteriør.
- Stor solrik terrasse med jacuzzi.
- Fire soverom med tilsammen 9 sengeplasser.
- Vaskerom.
- Lekkert bad med badstue.
- Elbillader.
- Fjernstyring av temperatur i hytta via app.
- Fiber og TV fra Altibox.
Velkommen!
NB: Knappen for å vise hele beskrivelsen har kun en visuell effekt.
NB: Knappen for å vise hele beskrivelsen har kun en visuell effekt.
Salgsoppgaven beskriver vesentlig og lovpålagt informasjon om eiendommen
Se komplett salgsoppgaveNyttige lenker
Nærområdet
EiendomsMegler 1 Sør-Norge avd Ullevål
En del av Sparebank 1 Sør-Norge
Annonseinformasjon
| FINN-kode | 448375600 |
|---|---|
| Sist endret | 30. jan. 2026 09:35 |
| Referanse | 2802250474 |
Annonsene kan være mangelfulle i forhold til lovpålagt opplysningsplikt. Før bindende avtale inngås oppfordres interessenter til å innhente komplett informasjon fra meglerforetaket, selger eller utleier.


















































































