Bildegalleri

Velkommen til Søndre St. Olav 81 presentert av Ingrid Bøhmer Foto: Pil Branding (Kim Rognmo).
VANGSÅSA / ST. OLAV
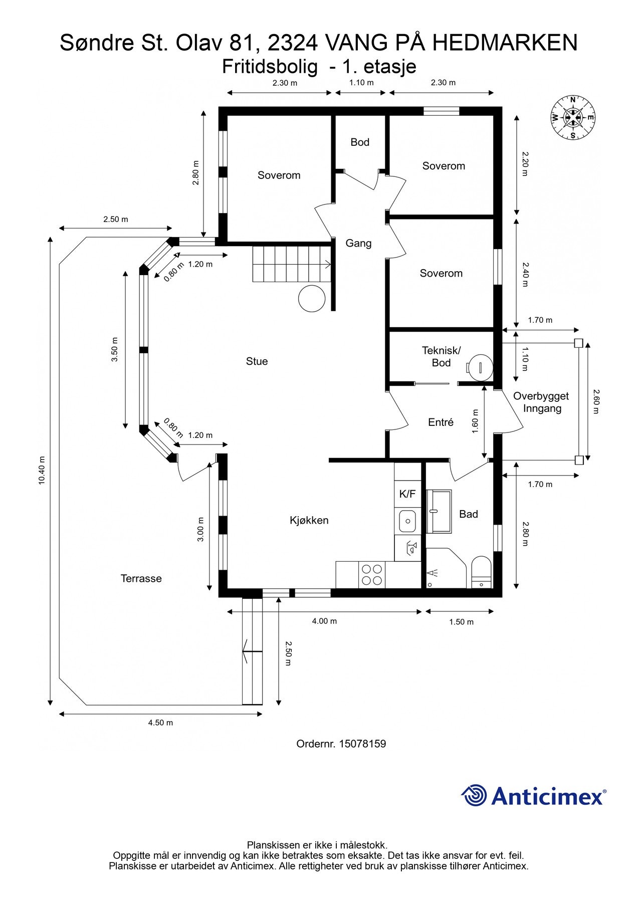
Innbydende og lys hytte med fantastisk utsikt og solgang. 3 soverom og hems. Frittstående uthus.
Prisantydning2 900 000 kr
- Omkostninger
- 77 940 kr
- Totalpris
- 2 977 940 kr
- Kommunale avg.
- 5 248 kr per år
- Eiendomsskatt
- 1 365 kr per år
Nøkkelinfo
- Beliggenhet
- Innlandet
- Boligtype
- Hytte
- Eieform
- Eier (Selveier)
- Internt bruksareal
- 71 m² (BRA-i)
- Bruksareal
- 80 m²
- Eksternt bruksareal
- 9 m² (BRA-e)
- Balkong/Terrasse
- 36 m² (TBA)
- Tomt
- Festet
- Festeavgift
- 7 000 kr
- Byggeår
- 2013
- Soverom
- 3
- Rom
- 4
- Sengeplasser
- 10
- Energimerking
- C - Lysegrønn
Fasiliteter
Balkong/Terrasse
Peis/Ildsted
Turterreng
Utsikt
Bilvei frem
Innlagt strøm
Lademulighet
Visning
lørdag, 14. februar
13:00 – 14:00
Husk å lese komplett salgsoppgave før visning. Bestill komplett, utskriftsvennlig salgsoppgave.
VisningspåmeldingOm boligen
EIE har gleden av å presentere denne fine fritidseiendommen i Søndre St. Olav 81!
Hytta har flott beliggenhet på attraktive og veletablerte Søndre St. Olav. Her har du flott Innlandsnatur rett utenfor hyttedøra med fine turstier på sommeren og et av Norges største løypenett på vinterhalvåret. Sommeren byr på stor variasjon av turmuligheter, fra lettere barmarksturer til de mer krevende for den som ønsker det. Dette er en moderne hytte fra 2013 med åpen stue- og kjøkkenløsning, bad, tre soverom, to boder og hems. Den store terrassen har gode solforhold og nydelig utsikt over nærområdet, og helt mot Jotunheimen. Hytta har svært god takhøyde og store vinduer, noe som gir god romfølelse og fin utsikt også innenfra. Bilen parkeres enkelt utenfor hytta hvor det også er elbillader. Med den flotte beliggenheten, naturen og skimuligheter i umiddelbar nærhet, er dette det perfekte stedet for deg som er glad i å være ute!
Velkommen til en hyggelig vinsning!
Hytta har flott beliggenhet på attraktive og veletablerte Søndre St. Olav. Her har du flott Innlandsnatur rett utenfor hyttedøra med fine turstier på sommeren og et av Norges største løypenett på vinterhalvåret. Sommeren byr på stor variasjon av turmuligheter, fra lettere barmarksturer til de mer krevende for den som ønsker det. Dette er en moderne hytte fra 2013 med åpen stue- og kjøkkenløsning, bad, tre soverom, to boder og hems. Den store terrassen har gode solforhold og nydelig utsikt over nærområdet, og helt mot Jotunheimen. Hytta har svært god takhøyde og store vinduer, noe som gir god romfølelse og fin utsikt også innenfra. Bilen parkeres enkelt utenfor hytta hvor det også er elbillader. Med den flotte beliggenheten, naturen og skimuligheter i umiddelbar nærhet, er dette det perfekte stedet for deg som er glad i å være ute!
Velkommen til en hyggelig vinsning!
NB: Knappen for å vise hele beskrivelsen har kun en visuell effekt.
NB: Knappen for å vise hele beskrivelsen har kun en visuell effekt.
Salgsoppgaven beskriver vesentlig og lovpålagt informasjon om eiendommen
Se komplett salgsoppgaveNyttige lenker
Nærområdet
EIE eiendomsmegling Innlandet
Annonseinformasjon
| FINN-kode | 448187135 |
|---|---|
| Sist endret | 29. jan. 2026 10:13 |
| Referanse | 72250408 |
Annonsene kan være mangelfulle i forhold til lovpålagt opplysningsplikt. Før bindende avtale inngås oppfordres interessenter til å innhente komplett informasjon fra meglerforetaket, selger eller utleier.













































