Bildegalleri

Annet
Stavedalen
Kvilebu - romslig hytte med solrik tomt og fin utsikt. Ca. 3 km til alpinbakke, løypenett m.m. Behov for oppgradering.
Prisantydning990 000 kr
- Omkostninger
- 26 140 kr
- Totalpris
- 1 016 140 kr
Nøkkelinfo
- Beliggenhet
- På fjellet
- Boligtype
- Hytte
- Eieform
- Selveier
- Internt bruksareal
- 76 m² (BRA-i)
- Bruksareal
- 91 m²
- Eksternt bruksareal
- 15 m² (BRA-e)
- Balkong/Terrasse
- 42 m² (TBA)
- Tomteareal
- 1 968 m² (eiet)
- Byggeår
- 1976
- Soverom
- 3
- Energimerking
Fasiliteter
Alpinanlegg
Balkong/Terrasse
Barnevennlig
Bilvei frem
Peis/Ildsted
Rolig
Utsikt
Fiskemulighet
Turterreng
Visning
Ved annonsert visning er det viktig at du melder deg på visningen ved å bruke visningspåmeldingsknappen eller kontakter megler. Annonserte visninger hvor det ikke er noen påmeldte innen kl. 16.00 dagen før visningsdagen vil ikke bli avholdt.
For visninger utover dette, ta direkte kontakt med megler.
Husk å lese komplett salgsoppgave før visning. Bestill komplett, utskriftsvennlig salgsoppgave.
VisningspåmeldingOm boligen
Eiendommen Kvilebu ligger i behagelig kjøreavstand fra Oslo-området, nær populære hytteområder som Stavadalen, Nordre- og Sørre Fjellstølen. Fra hytta er det ca. 3 km til Stavadalen Park Lekeland og Skisenter, med servering, alpinbakker og flotte oppkjørte skiløyper som strekker seg milevis innover vakkert fjellterreng.
Hytta ligger på en åpen og romslig eiertomt med gode solforhold og fin utsikt utover området. Her er det mulighet for flere hyggelige uteplasser, lek og moro. Det er helårsvei inn til eiendommen, som har behov for oppgradering og vedlikehold.
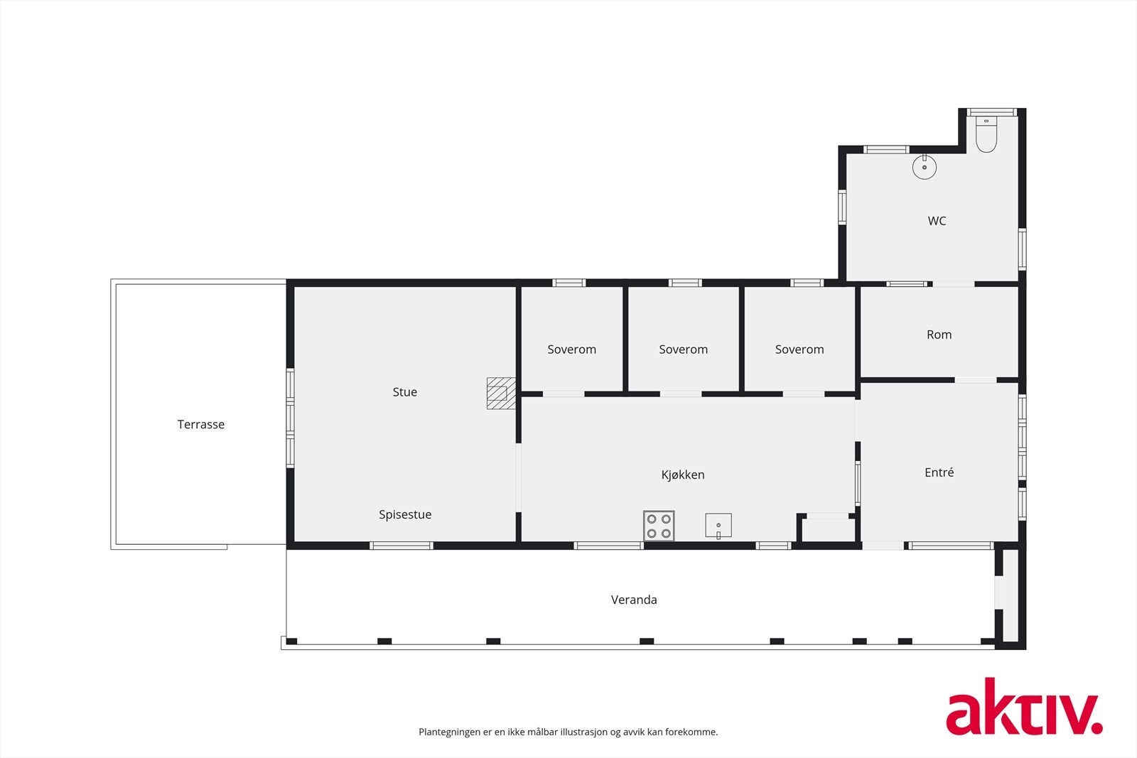
I hytta er det en åpen og luftig stue, romslig kjøkken og tre soverom med til sammen ni sengeplasser. Den har solcelleanlegg for enkel belysning, vann bæres inn, og det er kun gråvannsavløp til terreng.
Velkommen på visning!
Hytta ligger på en åpen og romslig eiertomt med gode solforhold og fin utsikt utover området. Her er det mulighet for flere hyggelige uteplasser, lek og moro. Det er helårsvei inn til eiendommen, som har behov for oppgradering og vedlikehold.
I hytta er det en åpen og luftig stue, romslig kjøkken og tre soverom med til sammen ni sengeplasser. Den har solcelleanlegg for enkel belysning, vann bæres inn, og det er kun gråvannsavløp til terreng.
Velkommen på visning!
NB: Knappen for å vise hele beskrivelsen har kun en visuell effekt.
NB: Knappen for å vise hele beskrivelsen har kun en visuell effekt.
Salgsoppgaven beskriver vesentlig og lovpålagt informasjon om eiendommen
Se komplett salgsoppgaveNærområdet
Aktiv Valdres
Annonseinformasjon
| FINN-kode | 447199316 |
|---|---|
| Sist endret | 10. apr. 2026 14:15 |
| Referanse | 1201250148 |
Annonsene kan være mangelfulle i forhold til lovpålagt opplysningsplikt. Før bindende avtale inngås oppfordres interessenter til å innhente komplett informasjon fra meglerforetaket, selger eller utleier.

























