Bildegalleri

Tilsvarende hytte kommer på tomt 31 på Timmermannsstølen
Lekker hytte kommer her på Timmermannsstølen | 1000 m.o.h. | Ca. 155m² gulvareal | Fantastisk utsikt og nydelig solgang!
- Omkostninger
- 200 000 kr
- Totalpris
- 6 100 000 kr
Nøkkelinfo
- Beliggenhet
- På fjellet
- Boligtype
- Hytte
- Eieform
- Eier (Selveier)
- Internt bruksareal
- 105 m² (BRA-i)
- Bruksareal
- 109 m²
- Eksternt bruksareal
- 4 m² (BRA-e)
- Balkong/Terrasse
- 32 m² (TBA)
- Tomteareal
- 1 050 m² (eiet)
- Bruttoareal
- 120 m²
- Byggeår
- 2026
- Soverom
- 5
- Meter over havet
- 1000
Fasiliteter
Visning
Ta kontakt for å avtale visning.Om eiendommen
Beliggenhet
Kort fortalt; Vi i Nesfjellet har gleden av å presentere en stilren og moderne hytte som er planlagt her på vakre Timmermannsstølen. Hytta har en spennende planløsning som tilfredsstiller til de fleste, et utseende som står i stil, samt store vindusflater som slipper landskapet så vel som lyset inn. Eiendommen har en av de bedre beliggenhetene i feltet, hvor hytten blir liggende fint til på et høydedrag. Her blir du liggende høyt og fritt med en slående utsikt som tar pusten fra deg. Fra tomten ser du blant annet rett inn i snaufjellet, men også mot den storeslåtte fjellheimen i nord og rett mot Nesfjellet Alpin. Timmermannsstølen ligger øverst og innerst i Nesfjellet, nærmest snaufjellet, og med de mest populære turstiene rett utenfor hyttedøren.
Nesfjellet kan by på mange ulike kvaliteter, men dersom du søker en beliggenhet med turterrenget som hovedmål, sommer som vinter, er dette valget for deg.
Høydepunkter:
- En av de bedre tomtene i feltet
- Stor eiertomt på 1050 m²
- Fantastisk utsikt
- Midt i tureldorado, sommer som vinter
- I manges øyne Hallingdals beste skiløypenett rett utenfor hyttedøren?
- Kort vei til snaufjellet
- Sol hele dagen
- Gode solforhold også på den mørkeste tiden av året
- Kanskje landets beste familietilbud på stisykling?
- 15 min kjøring til Nesfjellet Alpin og -Golf
- 20 min kjøring til Nesbyen sentrum med nærmest alle servicetilbud
- Dokumentavgift kun av tomteverdi
- www.Timmermannsstolen.no
- Ta kontakt for å avtale visning.
- OM HYTTA
- Spekket med flotte løsninger og flere tilvalg utover standard
- 155 m² totalt gulvareal
- 2 stuer, 2 bad, eget vaskerom, stor garderobe og 5 soverom
- Prisen = nøkkelferdig hytte inkl. tomt, grunn- og betongarbeider
- Det kreves svært begrenset innsats kjøpers side før hytta kan overtas med nøkkel i døra
- Nesfjellet har levert flere hundre hytter de siste årene, og vi kan love en trygg og hyggelig byggeprosess
- Hytten på bildene er utstilt med møbler fra Persgaard møbler
Generelt
Adkomst/Tomteforhold
Opplev Nesfjellet
I tillegg til å være beliggenheten for tur- og langrennsentusiaster i Nesfjellet, får du også en interntbeliggenhet på Timmermannsstølen med utsikt som tar pusten fra deg. Fra hytta har du utsikt rett inn i snaufjellet mot topper som Trommenatten og Kvasshovda. Fra hytta ser du også ned mot Nesfjellet Alpin, Bøgaset og Veneli.
Langs den populære turveien Backervegen ligger Timmermannsstølen. Tomtene på Timmermannsstølen utgjør siste bebyggelse før uberørt natur i høyfjellet. Med hytte i dette området kan turen starte allerede ved dørstokken, noe som gjør området til det ubestridte førstevalget i Nesfjellets for de som vil bruke fjellet når de er på hytta. Timmermannsstølen ble tilgjengelig for nybygging i 2022, og rundt 30 av ca. 50 tomter er solgt. En stor andel av disse til hyttekjøpere som allerede hadde hytte i Nesfjellet fra før.
Vinterstid ligger du noen staketak unna hovedskiløypa fra Nystølen og innover mot fjellet. Du kan også skli ned på løypa som ligger i området Flædding, som også er returløypa for den Gule Runden - Nesfjellets mest populære runde. Herfra når også en rekke andre alternativer for skituren din.
Les om alle aktivitetene Nesfjellet har å by på, sommer og vinter, ved å besøke prosjektets hjemmeside www.timmermannsstølen.no eller les enda mer på vår hjemmeside www.nesfjellet.no.
Nesfjellet har siden 50-tallet har utviklet seg fra noen få hytter rundt de tradisjonsrike stølene Kuluset, Nystølen, Timmermannsstølen, Bøgaset og Natten, til å bli et av Fjellnorges mest populære hyttedestinasjoner. I dag har Nesfjellet et av Hallingdals største løypenett for langrenn. Ca. 15 mil prepareres i Nesfjellet og innover i høyfjellet. Du kan også krysse kommunegrensen mot Nore og Uvdal eller nå topper som Storevarden og Hallingnatten. Terrenget er kjent for både snilt terreng og rolige værforhold, på tross av at terrenget strekker seg opp mot 1.300 moh. I vinterhalvåret kan også Nesfjellet Alpin friste med varierende løyper for alle ferdighetsnivåer. I tillegg har Nesfjellet Skandinavias råeste stolheis med 8 seter, varme og vindskjerm. Det er for øvrig 6 heiser i Nesfjellet Alpin og mer enn 10 nedfarter. Nesfjellet Alpin ligger ca. 15 minutters kjøreing unna.
I sommerhalvåret er fjellheimen like vakker som om vinteren, og mange populære turmål venter på deg i høyfjellet. Frister det med variasjon kan Nesfjellet by på et av Norges beste stinett for sykkel. Herunder kan nevnes det som omtales som et fyrtårnet innen familieopplevelser på sykkel, Hallingspranget, som åpnet høsten 2021. Dette er en av Europas lengste sykkelstier på ca. 17 km, og med et samlet fall på ca. 1000 høydemeter fra toppen Syning, og ned til Nesbyen. I tillegg kan Nesfjellet tilby en flott 9-hulls høyfjellsbane for golf, samt en rekke andre aktiviteter.
Nesfjellet har i dag tre spisesteder med ulik karakter og atmosfære. Nystølkroken er storstua i den delen av Nesfjellet hvor Timmermannsstølen ligger, og er en kulturbærer i Nesfjellet. Her arrangeres påskeskirenn, en rekke konserter, og mange andre aktiviteter. I tilknytning til golfbanen ligger en helårsåpen kafe med ulike fristelser gjennom året. I tillegg har vi Skistua i alpinsentret med sitt pulserende miljø.
Nesbyen sentrum ligger kun 20 min unna dersom du skulle mangle noe under oppholdet på hytta. Her finnes flere dagligvarebutikker, bakeri, sporsbutikker, mm. Ca. 20 minutter unna ligger Langedrag som er en favoritt blant de yngste.
Se også
www.nesfjellet.no
www.timmermannsstølen.no
www.skisporet.no
www.visitnesbyen.no
Ønsker du å leie ut din nye hytte?
- NesfjelletBooking kan ta seg av logistikken og alt det praktiske
Når du investerer i fritidsbolig på Nesfjellet kan du ta kontakt med Nesfjellet Booking. Her treffer du et dedikert og lokalt team som håndterer alle praktiske oppgaver rundt utleie. De hjelper deg med utleie i de perioder du og dine ikke benytter hytta selv.
T: +47 901 02 863/+47 913 62 743
post@nesfjelletbooking.no
Innhold
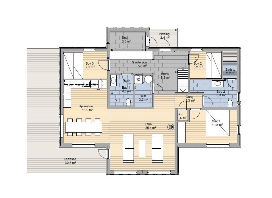
Hytten vil gå over to plan med 1. etasje og hemsetasje og innehar en meget praktisk og gjennomtenkt planløsning. Det kan blant annet nevnes 2 stuer, 2 bad, vaskerom, garderoberom og 5 soverom.
Oppholdsrommet er virkelig hjertet av hytta med hovedfokuset på utsikt. Store vindusflater i panoramastuen slipper utsikten, så vel som naturlig lys, inn. Den storslåtte utsikten er det første som slår deg i det du trer inn i stuen. Her er det god plass til både sofagruppe og spisestue. Både sofagruppen og spisestuen har sin naturlige plass i det store åpne rommet. Fra stuen er det utgang til terrasse hvor utsikten kan nytes ytterligere. I tillegg til oppholdssonen 1. etasje er det en romslig stue i hemsetasjen som passer perfekt som tv-stue og/eller oppholdsrom for barna/ungdommen. Hele hemsetasjen (midt på) har en takhøyde på 189 cm.
Mange som velger denne hyttemodellen setter spesielt pris på vaskerommet og garderoberommet. Her er det god plass til alt som hører med livet på hytta. Med en snedig løsning fra Rodegård Interiør blir garderoberommet mer enn et praktisk rom.
I forbindelse med inngangspartiet finner du den utvendige boden. Her er det også overbygg som gir tørrskodd tilgang til boden året rundt.
Standard
Hytta leveres av Hallinghytter og er modellen Skogshorn 124. Den selges komplett og innflyttingsklar, med gjennomgående god standard. Det finnes også valgmuligheter hva gjelder farger innvendig og utvendig. Det finnes også ulike valgmuligheter innen fliser, samt leveranse fra rørlegger og elektriker. All lysarmatur er levert i sort utførelse. Dette gir god match med mørke vinduer og dører. Hytta leveres ferdig behandlet innvendig og utvendig. Utvendig er hytta behandlet med impregnert behandling. Dette gir en fantastisk patina og nær vedlikeholdsfri standard. Kjøkken levers komplett fra Rodegård Interiør med alle hvitevarer inkl. Som en del av standarden levers hytta også med torvtak, varmepumpe og en tilvalgspakke fra elektriker til en verdi av ca. kr 70.000,-. Alt dette for å gi deg et så realistisk bildle på sluttprisen som mulig. Det skal ikke være nødvendig å gjøre dyre tilvalg for å ferdigstille din drømmehytte med dette utgangspunktet.
Hytten som er avbildet kan avvike noe fra standardleveranse.
Vesentlige opplysninger
Det gjøres oppmerksom på at hytten som er avbildet i bildeserien ikke er av hytten som er prosjektert, men av en tilsvarende modell. Vi tar forbehold om at avvik kan forekomme.
Ta kontakt med megler for komplett informasjon
Nyttige lenker
Nærområdet
Nesfjellet Prosjektutvikling AS
Annonsene kan være mangelfulle i forhold til lovpålagt opplysningsplikt. Før bindende avtale inngås oppfordres interessenter til å innhente komplett informasjon fra meglerforetaket, selger eller utleier.
































































