Bildegalleri

Oversikt
Hebnes / Ryfylke fjordhage - Koselig hytte - Barnevennlig beliggenhet - Godt utnyttet areal med hems (16kvm) - Båtplass
Prisantydning1 800 000 kr
- Omkostninger
- 46 390 kr
- Totalpris
- 1 846 390 kr
- Kommunale avg.
- 4 371 kr per år
- Formuesverdi
- 588 750 kr
Nøkkelinfo
- Beliggenhet
- Ved sjøen
- Boligtype
- Hytte
- Eieform
- Eier (Selveier)
- Internt bruksareal
- 34 m² (BRA-i)
- Bruksareal
- 36 m²
- Eksternt bruksareal
- 2 m² (BRA-e)
- Balkong/Terrasse
- 50 m² (TBA)
- Tomteareal
- 325 m² (festet)
- Festeavgift
- 12 000 kr
- Byggeår
- 2016
- Soverom
- 1
- Rom
- 2
- Energimerking
- D - Oransje
Fasiliteter
Innlagt vann
Balkong/Terrasse
Barnevennlig
Bilvei frem
Båtplass
Hage
Peis/Ildsted
Rolig
Bademulighet
Fiskemulighet
Innlagt strøm
Visning
onsdag, 28. januar
15:00 – 16:00
torsdag, 05. februar
17:00 – 18:00
Ved annonsert visning er det viktig at du melder deg på visningen ved å bruke visningspåmeldingsknappen eller kontakter megler. Annonserte visninger hvor det ikke er noen påmeldte innen kl. 16.00 dagen før visningsdagen vil ikke bli avholdt.
For visninger utover dette, ta direkte kontakt med megler.
Husk å lese komplett salgsoppgave før visning. Bestill komplett, utskriftsvennlig salgsoppgave.
VisningspåmeldingOm boligen
Ryfylke fjordhage - Hyttefelt med idyllisk beliggenhet ved sjøen. Her har en fredlige og landlige omgivelser med få minutter ned til sjøen.
Hebnes Vingard med vinranker grenser mot hyttefeltet.
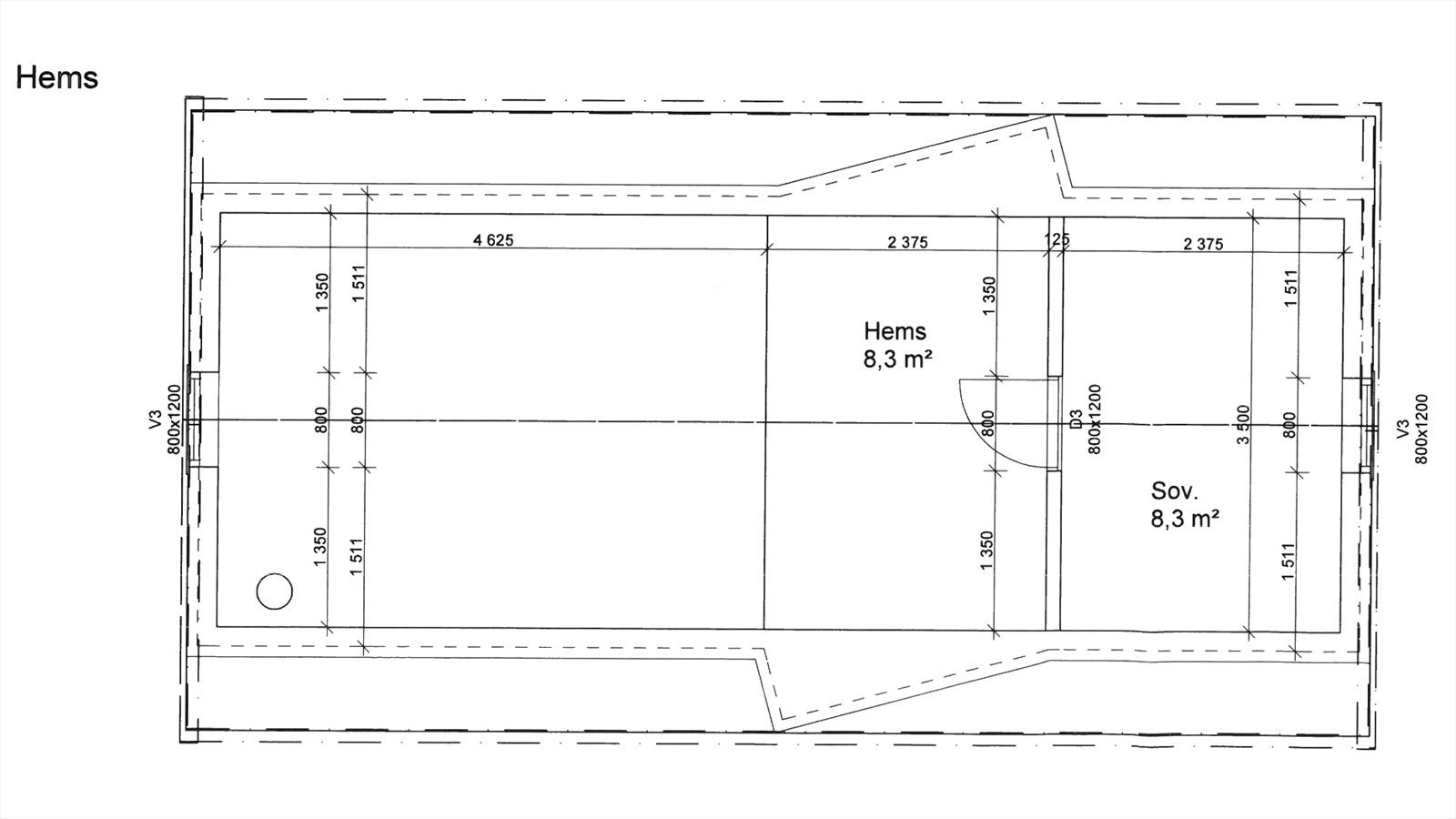
Effektivt utnyttet planløsning; hovedplan har gang, soverom med skyvedørsgarderobe, bad med dusj og opplegg vaskemaskin og stue/kjøkken med ekstra takhøyde som gir god romfølelse. Hems har ikke målbart areal pga takhøyde, men har 16 kvm gulvflate med oppholdsrom (åpent til stue), samt hemsrom benyttet for ekstra sengeplasser.
Romslig terrasse med plass til flere sittegrupper. Flott opparbeidet tomt og hyttefelt - svært barnevennlig.
Få minutter gange ned til sjøkanten; flott tilrettelagt med strand og brygge. Muligheter for å leie båtplass og naustbod.
Hebnes Vingard med vinranker grenser mot hyttefeltet.
Effektivt utnyttet planløsning; hovedplan har gang, soverom med skyvedørsgarderobe, bad med dusj og opplegg vaskemaskin og stue/kjøkken med ekstra takhøyde som gir god romfølelse. Hems har ikke målbart areal pga takhøyde, men har 16 kvm gulvflate med oppholdsrom (åpent til stue), samt hemsrom benyttet for ekstra sengeplasser.
Romslig terrasse med plass til flere sittegrupper. Flott opparbeidet tomt og hyttefelt - svært barnevennlig.
Få minutter gange ned til sjøkanten; flott tilrettelagt med strand og brygge. Muligheter for å leie båtplass og naustbod.
NB: Knappen for å vise hele beskrivelsen har kun en visuell effekt.
NB: Knappen for å vise hele beskrivelsen har kun en visuell effekt.
Salgsoppgaven beskriver vesentlig og lovpålagt informasjon om eiendommen
Se komplett salgsoppgaveNærområdet
Aktiv Sauda
Annonseinformasjon
| FINN-kode | 446904467 |
|---|---|
| Sist endret | 24. jan. 2026 13:47 |
| Referanse | 1402250090 |
Annonsene kan være mangelfulle i forhold til lovpålagt opplysningsplikt. Før bindende avtale inngås oppfordres interessenter til å innhente komplett informasjon fra meglerforetaket, selger eller utleier.












































































