Bildegalleri

Velkommen til Gullknappvegen 87, en eiendom presentert av EIE Fjellmegleren! Foto: Uthus Photography - EiE Fjellmegleren
Golsfjellet
Velkommen til denne storslåtte og spektakulære eiendommen ved Storefjell på Golsfjellet. Denne hytten har alt.
Prisantydning19 500 000 kr
- Omkostninger
- 488 900 kr
- Totalpris
- 19 988 900 kr
- Kommunale avg.
- 13 146 kr per år
- Eiendomsskatt
- 10 084 kr per år
Nøkkelinfo
- Boligtype
- Hytte
- Eieform
- Eier (Selveier)
- Internt bruksareal
- 390 m² (BRA-i)
- Bruksareal
- 390 m²
- Tomteareal
- 1 015 m² (eiet)
- Byggeår
- 2022
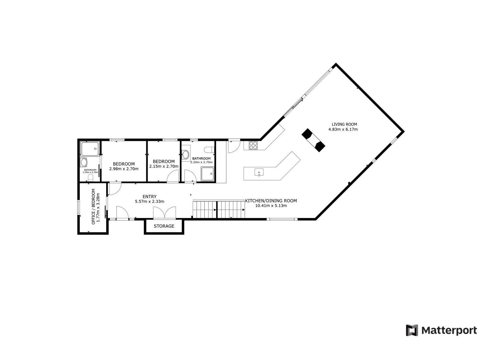
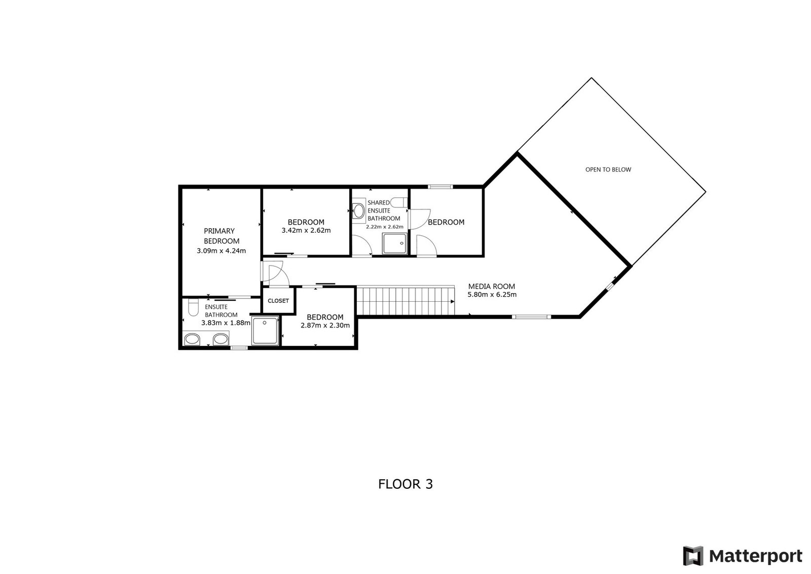
- Soverom
- 7
- Rom
- 6
- Energimerking
- B - Oransje
Fasiliteter
Balkong/Terrasse
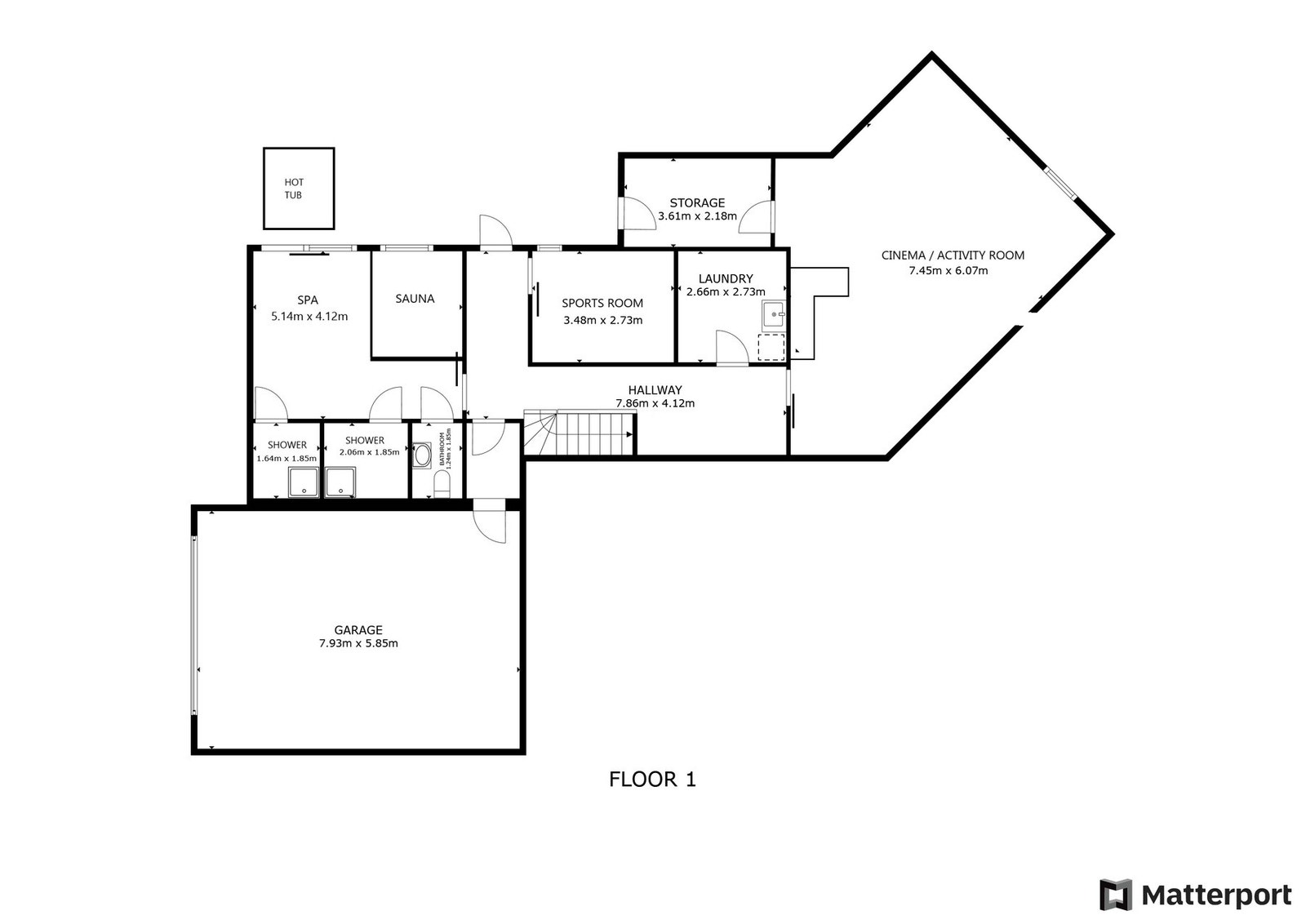
Garasje/P-plass
Peis/Ildsted
Turterreng
Utsikt
Alpinanlegg
Bilvei frem
Innlagt strøm
Innlagt vann
Lademulighet
Balansert ventilasjon
Visning
Ta kontakt for å avtale visning.Husk å lese komplett salgsoppgave før visning. Bestill komplett, utskriftsvennlig salgsoppgave.
VisningspåmeldingOm boligen
Velkommen til Gullknappvegen 87 på Storefjellstølen og Golsfjellet.
Denne hytten har alt hva man trenger og litt til. Materialvalg og løsninger er nøye planlagt av dagens eier. Hytta er bygget for å romme mange, men den føles lun og hyggelig om man bare er to.
Av viktige ting kan nevnes:
- helt på toppen av hyttefeltet
- 7 soverom og 5 bad
- Bunner tunnel-peis
- plassbygde senger
- kino/aktivitetsrom
- stor spaavdeling med saltvanns Jacuzzi for 9.pers. og badstue
- dobbel garasje m/ lader
- stort lydanlegg fra B&W i flere rom
- vannbåren jordvarme
- fjernstyring fra Homey/Tibber
Golsfjellet er et unikt utgangspunkt for aktiviteter sommer som vinter, Fra akkurat denne hytta har man direkte tilgang til det Golsfjellet har å by på - rett på utsiden av døren.
Velkommen til fjells!
Denne hytten har alt hva man trenger og litt til. Materialvalg og løsninger er nøye planlagt av dagens eier. Hytta er bygget for å romme mange, men den føles lun og hyggelig om man bare er to.
Av viktige ting kan nevnes:
- helt på toppen av hyttefeltet
- 7 soverom og 5 bad
- Bunner tunnel-peis
- plassbygde senger
- kino/aktivitetsrom
- stor spaavdeling med saltvanns Jacuzzi for 9.pers. og badstue
- dobbel garasje m/ lader
- stort lydanlegg fra B&W i flere rom
- vannbåren jordvarme
- fjernstyring fra Homey/Tibber
Golsfjellet er et unikt utgangspunkt for aktiviteter sommer som vinter, Fra akkurat denne hytta har man direkte tilgang til det Golsfjellet har å by på - rett på utsiden av døren.
Velkommen til fjells!
NB: Knappen for å vise hele beskrivelsen har kun en visuell effekt.
NB: Knappen for å vise hele beskrivelsen har kun en visuell effekt.
Salgsoppgaven beskriver vesentlig og lovpålagt informasjon om eiendommen
Se komplett salgsoppgaveNærområdet
EIE Fjellmegleren Gol / Nesbyen / Flå
Annonseinformasjon
| FINN-kode | 446890180 |
|---|---|
| Sist endret | 27. jan. 2026 08:41 |
| Referanse | 28250007 |
Annonsene kan være mangelfulle i forhold til lovpålagt opplysningsplikt. Før bindende avtale inngås oppfordres interessenter til å innhente komplett informasjon fra meglerforetaket, selger eller utleier.













































































