Bildegalleri

Velkommen til Kvitsandunet 7, presentert av Privatmegleren v/ Elias Kaulum!
Sjusjøen
Nyere helårshytte (2023) med 105 kvm gulvareal og nydelig Mjøsutsikt | 8-10 sengeplasser
Prisantydning2 890 000 kr
- Omkostninger
- 73 250 kr
- Totalpris
- 2 963 250 kr
- Kommunale avg.
- 3 187 kr per år
- Eiendomsskatt
- 2 954 kr per år
Nøkkelinfo
- Beliggenhet
- På fjellet
- Boligtype
- Hytte
- Eieform
- Eier (Selveier)
- Internt bruksareal
- 71 m² (BRA-i)
- Bruksareal
- 71 m²
- Balkong/Terrasse
- 13 m² (TBA)
- Tomteareal
- 613 m² (eiet)
- Byggeår
- 2023
- Soverom
- 2
- Rom
- 2
- Sengeplasser
- 8
- Energimerking
- C - Oransje
Fasiliteter
Balkong/Terrasse
Fiskemulighet
Peis/Ildsted
Turterreng
Bilvei frem
Innlagt strøm
Innlagt vann
Visning
Ta kontakt for å avtale visning.Husk å lese komplett salgsoppgave før visning. Bestill komplett, utskriftsvennlig salgsoppgave.
VisningspåmeldingOm boligen
Velkommen til Kvitsandtunet 7 - en moderne og mjøsnær helårshytte fra 2023, tilrettelagt for komfortable langtidsopphold med god plass til familie og venner. Hytten har en unik beliggenhet på en liten bakketopp, dette gir lite innsyn, gode solforhold og gir enda bedre utsikt mot Mjøsa. Ønsker man å ta et morgenbad så er mjøsa kun en tre minutters gange unna!
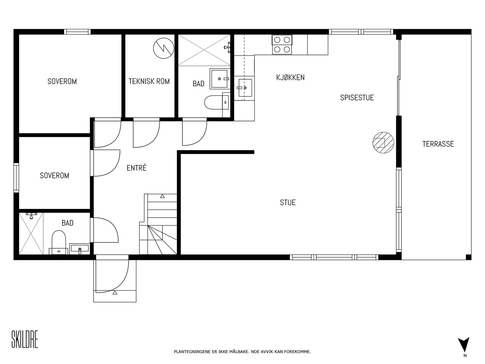
Planløsning er gjennomtenkt med to soverom, to hemsrom, to bad, romslig entré, teknisk rom og en stor, åpen stue- og kjøkkenløsning med god takhøyde og store vindusflater. Fra stuen er det utgang til en solrik, overbygd terrasse med utsikt mot Mjøsa. Kjøkkenet er moderne og stilrent med integrerte hvitevarer. Hytten byr på fleksible sengeplasser, gode oppbevaringsløsninger og en komfortabel ramme i rolige omgivelser.
Planløsning er gjennomtenkt med to soverom, to hemsrom, to bad, romslig entré, teknisk rom og en stor, åpen stue- og kjøkkenløsning med god takhøyde og store vindusflater. Fra stuen er det utgang til en solrik, overbygd terrasse med utsikt mot Mjøsa. Kjøkkenet er moderne og stilrent med integrerte hvitevarer. Hytten byr på fleksible sengeplasser, gode oppbevaringsløsninger og en komfortabel ramme i rolige omgivelser.
NB: Knappen for å vise hele beskrivelsen har kun en visuell effekt.
NB: Knappen for å vise hele beskrivelsen har kun en visuell effekt.
Salgsoppgaven beskriver vesentlig og lovpålagt informasjon om eiendommen
Se komplett salgsoppgaveNyttige lenker
Nærområdet
PrivatMegleren Hamar
Kun det beste på dine vegne
Annonseinformasjon
| FINN-kode | 445635236 |
|---|---|
| Sist endret | 26. jan. 2026 05:18 |
| Referanse | 320251007 |
Annonsene kan være mangelfulle i forhold til lovpålagt opplysningsplikt. Før bindende avtale inngås oppfordres interessenter til å innhente komplett informasjon fra meglerforetaket, selger eller utleier.








































