Bildegalleri

Velkommen til magiske Sjåstadleine 38!
Sjåstadfeltet.
Solid og flott tømmerhytte med nydelig beliggenhet og kanskje Hemsedals aller flotteste utsikt i Sjåstadleine.
Prisantydning27 000 000 kr
- Omkostninger
- 676 320 kr
- Totalpris
- 27 676 320 kr
- Kommunale avg.
- 29 251 kr per år
- Eiendomsskatt
- 12 829 kr per år
Nøkkelinfo
- Beliggenhet
- På fjellet
- Boligtype
- Hytte
- Eieform
- Eier (Selveier)
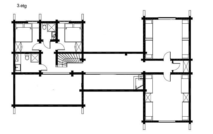
- Internt bruksareal
- 178 m² (BRA-i)
- Bruksareal
- 211 m²
- Eksternt bruksareal
- 33 m² (BRA-e)
- Balkong/Terrasse
- 62 m² (TBA)
- Tomteareal
- 1 062 m² (eiet)
- Byggeår
- 2012
- Soverom
- 7
- Rom
- 9
- Energimerking
- B - Oransje
Fasiliteter
Alpinanlegg
Balkong/Terrasse
Barnevennlig
Bilvei frem
Bredbåndstilknytning
Garasje/P-plass
Peis/Ildsted
Rolig
Utsikt
Offentlig vann/kloakk
Turterreng
Visning
Ta kontakt for å avtale visning.Husk å lese komplett salgsoppgave før visning. Bestill komplett, utskriftsvennlig salgsoppgave.
VisningspåmeldingOm boligen
Solid tømmerhytte med herlig lodgestil og en uslåelig utsikt utover Hemsedal og mot de mektige Nordfjella med topper som Kirkebønøse og Skurvefjell nærmest inn i stua. Denne utsikten må du oppleve!
Her har du hele 7 soverom, 6 bad, garasje og ikke minst nærhet til Hemsedals flotte skibakker og unike offpistemuligheter med ski inn fra legendariske Lille Matterhorn som troner i "bakgården".
Hytta har totalt gulvareal på 387 kvm. Kjeller er ikke godkjent for varig opphold, det er søkt om godkjenning
Her kan hele familien boltre seg, både med rikelig plass og nærhet til ski-, sykkel- og turmuligheter i umiddelbar nærhet. Hemsedals luftige Via Ferrate og Skarsnuten Mountain Resort er i gangavstand. Kort vei til nærmeste skiløype, og etter skidagen tar Skarsnutenheisen deg tilbake til hytta
Her har du hele 7 soverom, 6 bad, garasje og ikke minst nærhet til Hemsedals flotte skibakker og unike offpistemuligheter med ski inn fra legendariske Lille Matterhorn som troner i "bakgården".
Hytta har totalt gulvareal på 387 kvm. Kjeller er ikke godkjent for varig opphold, det er søkt om godkjenning
Her kan hele familien boltre seg, både med rikelig plass og nærhet til ski-, sykkel- og turmuligheter i umiddelbar nærhet. Hemsedals luftige Via Ferrate og Skarsnuten Mountain Resort er i gangavstand. Kort vei til nærmeste skiløype, og etter skidagen tar Skarsnutenheisen deg tilbake til hytta
NB: Knappen for å vise hele beskrivelsen har kun en visuell effekt.
NB: Knappen for å vise hele beskrivelsen har kun en visuell effekt.
Salgsoppgaven beskriver vesentlig og lovpålagt informasjon om eiendommen
Se komplett salgsoppgaveNyttige lenker
Nærområdet
EiendomsMegler 1 Fjellmegleren
Vi loser deg trygt gjennom hele boligsalget

Gjermund Svendsen-Rosendal
Eiendomsmegler MNEF/ Avd.leder nybygg/ Avd.leder Hemsedal
Annonseinformasjon
| FINN-kode | 443719661 |
|---|---|
| Sist endret | 02. jan. 2026 18:43 |
| Referanse | 1532250130 |
Annonsene kan være mangelfulle i forhold til lovpålagt opplysningsplikt. Før bindende avtale inngås oppfordres interessenter til å innhente komplett informasjon fra meglerforetaket, selger eller utleier.








































