Bildegalleri

Velkommen til Smådalskvæven 40 - En kjekk, praktisk hytte med langstrakte løyper like utenfor. Pusset opp i 2020.

Sinnes/Tjørhom

Fin, innholdsrik hytte med skiløypene og flott natur like utenfor

Prisantydning3 190 000 kr
Omkostninger
80 840 kr
Totalpris
3 270 840 kr
Kommunale avg.
17 233 kr per år

Nøkkelinfo

Beliggenhet
På fjellet
Boligtype
Hytte
Eieform
Eier (Selveier)
Internt bruksareal
67 m² (BRA-i)
Bruksareal
67 m²
Balkong/Terrasse
58 m² (TBA)
Tomt
Festet
Festeavgift
4 080 kr
Byggeår
1995
Soverom
3
Rom
4
Energimerking
D - Gul

Les mer om bruksareal her

Fasiliteter

Innlagt vann
Alpinanlegg
Balkong/Terrasse
Barnevennlig
Bilvei frem
Golfbane
Peis/Ildsted
Rolig
Bademulighet
Fiskemulighet
Innlagt strøm
Turterreng

Visning

søndag, 18. januar
13:00 – 14:00
OBS: PÅMELDINGSVISNING INNEN FREDAG 16/1 KL 1500 Ønsker du å delta på visningen ber vi deg melde deg på slik at vi vet at du kommer. Da kan vi bistå alle best mulig og gi deg tiden du trenger på visningen. Kontakt gjerne megler før visning hvis du har spørsmål. Visningen avholdes bare dersom det er påmeldte. Hvis det ikke er oppsatt visningstidspunkt eller tidspunkt ikke passer, kontakt megler. 

Husk å lese komplett salgsoppgave før visning. Bestill komplett, utskriftsvennlig salgsoppgave.

Visningspåmelding

Om boligen

Hytten er opprinnelig bygget i 1995 og fremstår med god, praktisk løsning og med plass nok til de fleste familier. Oppusset i 2020 med bl.a. overflater malt i tidsriktige farger, nytt kjøkken og bad. Varmepumpe fra 2023. Tak er antatt skiftet i 2008. Hytten selges delvis møblert.

Populær beliggenhet i Smaldalen, like ved Store Smådalskvæven i Foråsen. Umiddelbar nærhet til Foråsens løypenett, og
dermed også til resten av det flotte løypenettet i Sirdal. Kort vei til aktivitetssenteret på Sageneset, til Sinnes arena og dalens alpinanlegg.

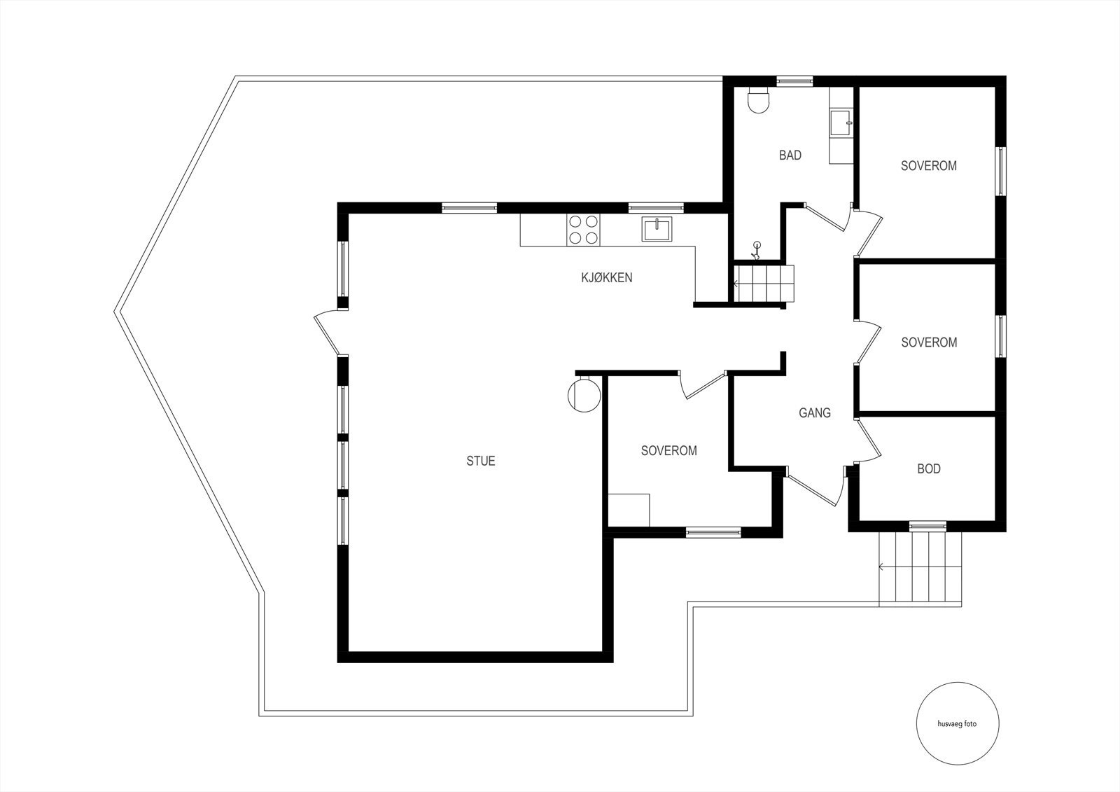
1 etasje BRA-i: Entré/trapperom, bod/teknisk rom, 3 soverom, bad, stue/kjøkken.

Loft/hems BRA-i: Hems innredet med 2 soverom *(Ikke målbart areal/godkjent)

Salgsoppgaven beskriver vesentlig og lovpålagt informasjon om eiendommen

Se komplett salgsoppgave

Nærområdet

Annonseinformasjon

FINN-kode443627432
Sist endret30. des. 2025 16:33
Referanse2205250422

Rapporter annonse

Annonsene kan være mangelfulle i forhold til lovpålagt opplysningsplikt. Før bindende avtale inngås oppfordres interessenter til å innhente komplett informasjon fra meglerforetaket, selger eller utleier.