Bildegalleri

- Velkommen til Bestestøylen 10 -
Hovden - Bestestøylen | Innholdsrik familiehytte på solrik tomt sentralt plassert på Hovden | 4 sov | garasje
Prisantydning5 890 000 kr
- Omkostninger
- 168 240 kr
- Totalpris
- 6 058 240 kr
- Kommunale avg.
- 14 288 kr per år
- Formuesverdi
- 617 095 kr
Nøkkelinfo
- Beliggenhet
- På fjellet
- Boligtype
- Hytte
- Eieform
- Eier (Selveier)
- Internt bruksareal
- 117 m² (BRA-i)
- Bruksareal
- 138 m²
- Eksternt bruksareal
- 21 m² (BRA-e)
- Balkong/Terrasse
- 24 m² (TBA)
- Tomteareal
- 343 m² (eiet)
- Byggeår
- 2001
- Soverom
- 4
- Rom
- 6
Fasiliteter
Alpinanlegg
Balkong/Terrasse
Barnevennlig
Bilvei frem
Bredbåndstilknytning
Garasje/P-plass
Peis/Ildsted
Rolig
Utsikt
Bademulighet
Fiskemulighet
Innlagt strøm
Offentlig vann/kloakk
Turterreng
Lademulighet
Om boligen
- Velkommen til Bestestøylen 10 -
Innholdsrik familiehytte med flott utsikt og gode solforhold!
Langrennsløypa (lysløype) går like forbi hytta og tar deg inn i det rike løypenettet på Hovden. Sommerstid er dette en flott turløype. Hartevatn og Hegni friluftsområdet ligger liger like bortenfor med mange god fiskeplasser og flotte badeplasser. En kort spasertur fra hytta har du Hovden sentrum med alle fasiliteter du trenger i fjellbygda. Samt nye det nye fjellbadet.
Hytta fremstår som lun og trivelig med god planløsning. Flott lunt og vestvendte terrasseområdet.
Innhold:
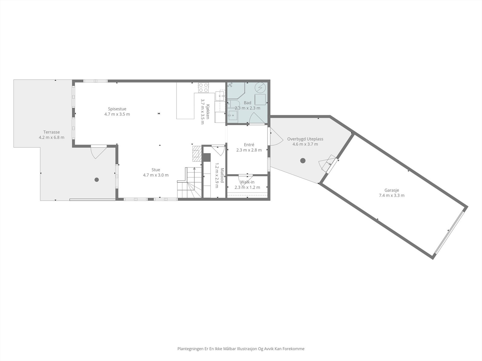
1. etasje: Entré, to boder, bad, kjøkken og stue.
2. etasje: Gang, fire soverom, bad og badstue.
Samt Garasje.
Innholdsrik familiehytte med flott utsikt og gode solforhold!
Langrennsløypa (lysløype) går like forbi hytta og tar deg inn i det rike løypenettet på Hovden. Sommerstid er dette en flott turløype. Hartevatn og Hegni friluftsområdet ligger liger like bortenfor med mange god fiskeplasser og flotte badeplasser. En kort spasertur fra hytta har du Hovden sentrum med alle fasiliteter du trenger i fjellbygda. Samt nye det nye fjellbadet.
Hytta fremstår som lun og trivelig med god planløsning. Flott lunt og vestvendte terrasseområdet.
Innhold:
1. etasje: Entré, to boder, bad, kjøkken og stue.
2. etasje: Gang, fire soverom, bad og badstue.
Samt Garasje.
NB: Knappen for å vise hele beskrivelsen har kun en visuell effekt.
NB: Knappen for å vise hele beskrivelsen har kun en visuell effekt.
Salgsoppgaven beskriver vesentlig og lovpålagt informasjon om eiendommen
Se komplett salgsoppgaveNyttige lenker
Nærområdet
Krogsveen Hovden AS
Verdien av en god megler.
Annonseinformasjon
| FINN-kode | 442857989 |
|---|---|
| Sist endret | 24. des. 2025 07:39 |
| Referanse | KR32.2570 |
Annonsene kan være mangelfulle i forhold til lovpålagt opplysningsplikt. Før bindende avtale inngås oppfordres interessenter til å innhente komplett informasjon fra meglerforetaket, selger eller utleier.




















































