Bildegalleri

Hytte med ski-in/ski-out sentralt på Gaustablikk | Tilpasset Danebu98
- Omkostninger
- 6 090 kr
- Totalpris
- 6 956 090 kr
Nøkkelinfo
- Beliggenhet
- På fjellet
- Boligtype
- Hytte
- Eieform
- Eier (Selveier)
- Internt bruksareal
- 89 m² (BRA-i)
- Bruksareal
- 94 m²
- Eksternt bruksareal
- 5 m² (BRA-e)
- Balkong/Terrasse
- 22 m² (TBA)
- Tomt
- Eiet
- Byggeår
- 2026
- Soverom
- 3
- Rom
- 4
- Meter over havet
- 900
Fasiliteter
Visning
Ta kontakt for å avtale visning.Om eiendommen
Beliggenhet
Løkjestaul ligger meget sentralt på Gaustablikk. Svært gode sol og utsiktsforhold. Det er umiddelbar avstand til skiløyper for langrenn og alpint, og det er gåavstand til cafeen Bygget og til Sportellet.
Adkomst/Tomteforhold
Fra Rjukan, følg skilting til Gaustablikk Skisenter. Hyttefeltet ligger på høyre side av veien, like etter at du har passert cafeen Bygget og Sportellet.
Generelt
Løkjestaul ligger meget sentralt på Gaustablikk. Svært gode sol og utsiktsforhold. Det er umiddelbar avstand til skiløyper for langrenn og alpint, og det er gåavstand til cafeen Bygget og til Sportellet.
Løkjestaul ligger sentralt på Gaustablikk med ski inn/ut for både alpint og langrenn. Herfra har du kort vei til alle fasiliteter både sommer og vinter. Vinterstid kan man spenne på seg skiene ved hytteveggen og gå ut i milevis med oppkjørte langrennsløyper på Gaustablikk. Det samme gjelder for alpint. Sommerstid er Gausta et ypperlig utgangspunkt for flotte turer på Hardangervidda. Ellers kan dere bare nyte solveggen på hytta!
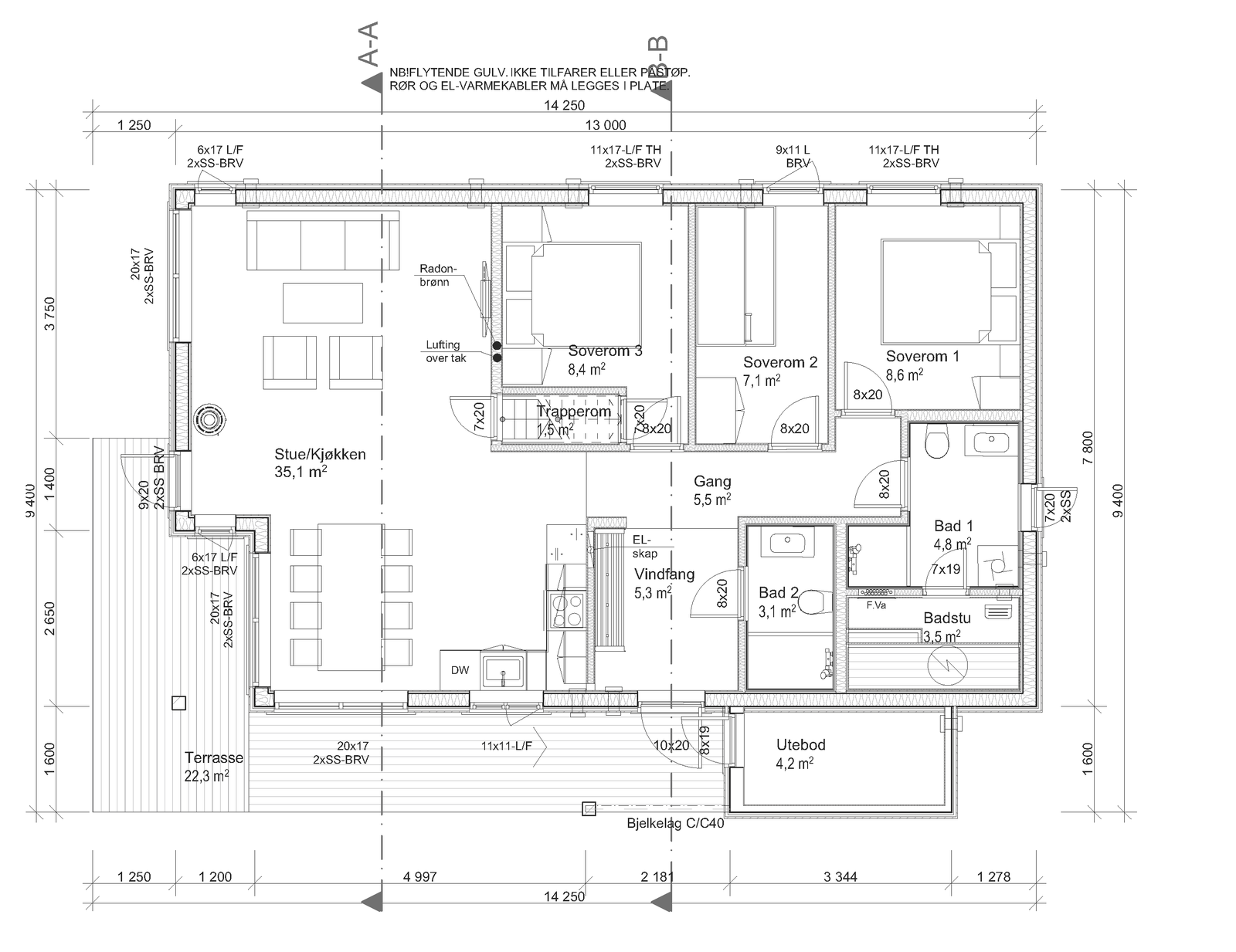
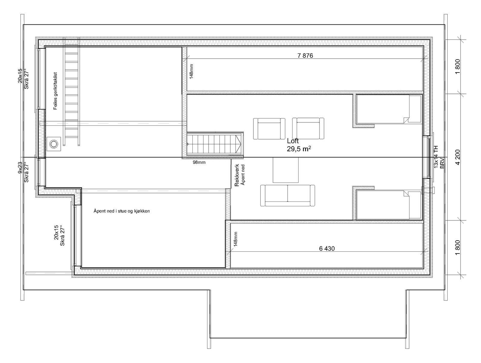
Hytta er en tilpasset Danebu 98 fra Tindehytter og har stor og romlig hems, et perfekt sted for ungdommen i huset. Her er det lagt opp til en soveavdeling og en luftig tv-stue. På hovedplan er det en funksjonell planløsning med tre store soverom, to bad, badstue, romslig stue med åpen kjøkkenløsning, og en flott sportsbod. Store vindusflater slipper inn mye lys og gir flott utsikt mot Gaustatoppen. Fra stuen er det utgang til terrasse med gode solforhold. Det er lagt opp til høy standard med enstavs eikeparkett, komplett kjøkken med integrerte hvitevarer og flislagte bad med moderne innredning. Peisovn i stue skaper lun stemning. Eiendommen har to parkeringsplasser
Generell utførelse
- Liggende V-fas på kledning, ferdig grunnet.
- Torvtak.
- Takstige og snøfangere der det er krav.
- Takrenner i sort stål.
- Isolasjon 25 cm i tak, 20 cm yttervegg og 10 cm i innervegger.
- Vinduer iht. tegning. 2-lag energiglass med gjennomgående sprosser.
- Terrasse leveres der det er vist på tegninger uten rekkverk.
- Flytende gulv med 13 mm eikeparkett 1-stavs, type Kährs.
- Innvendige furupanel fra Moelven: 13 mm Sprekkpanel på vegger og himling, behandlet i fargen?.
- Glatt standard listverk, behandlet i samme farge som vegg.
- Furu 3-speils innerdører.
- I badstue leveres benk i gran ubehandlet.
Kjøkken fra Aubo av typen Unik i fargen Sheer Grey (NCS S 3502-Y20R) med laminat benkeplate, slimline kjøkkenventilator, og integrerte hvitevarer.
Rørlegger/innvendig sanitær
Rørleggerarbeid med utstyr iht. standard rørleggeroppsett.
- Rette slagdører i dusjnisje evnt. dusjnisjedør (iht. tegning) med dusjgarnityr.
- Vegghengt toalett med innebygd sisterne.
- Slukrenne på bad.
- Baderomsinnredning m/skuffer, porselensvask og speil.
- Innredning med vask og speilskap leveres det det er separat WC rom.
- Varmtvannsbereder 200 liter.
- 1-greps blandebatterier på kjøkken, bad og evnt. andre våtrom.
- Lekkasjesikring/vannstoppeventil.
Murer, flis, pipe og ildsted
- Peisovn med sideglass m/glassplate på gulv montert på sort stålpipe.
- Flislagt gulv i vindfang med 30×60cm flis.
- Flislagt gulv på bad med 30×60 fliser. Ved eget WC-rom og badstue leveres det også 30×60 cm flis.
- Flislagte vegger med lik flis som på gulv.
Elektroinstallasjoner og utstyr
Elektrikerarbeid med utstyr iht. standard elektrikeroppsett.
- Inntaksskap og kabel mellom inntak og sikringsskap.
- Sikringsskap m/overbelastningsvern, jordfeilautomater og overspenningsvern.
- EL-punkter (iht. NEK 400).
- Varmekabler med termostat og føler i vindfang og våtrom.
- Astrour-styrte utelamper.
- Downlights leveres i vindfang, bad, WC og gang.
- Taklamper leveres i soverom.
- Panelovner, stikkontakter, komfyrvakt og badstuovn leveres i tråd med tegning.
Felles for alle leveranser
• Tinde Hytter har ansvar for byggesøknadsprosessen.
• Utførelse og leveranse i henhold til dagens tekniske krav.
• Garanti: 10% av kontraktssum i byggeperioden, 5% i reklamasjonstiden (5 år).
• Kontrakt fra Norsk Standard 3425 (med henvisninger til Bustadoppføringsloven).
• Trykktestet i henhold til Tek 17.
Ta kontakt for mer info.
Selger tar forbehold om endringer i omkostninger og avgifter. I tillegg tilkommer det årlig kommunale avgifter som hytteeier plikter å betale.
Selger tar forbehold om endringer i pris. Det tas forbehold om endring av tomtepris.
Prisen er for ferdig oppsatt hytte inkl. tomt og grunnarbeid. Tomteverdi fra kr 2 000 000,- Verdi grunnarbeid estimert kr 500 000,-
Prisene er beregnet med SSB sin sist kjente indeks og vil bli justert til enhver tids gjeldende indeks.
For pris, avgifter og div. kostnader - se https://www.tindehytter.no/hyttefelt/lokjestaul-gaustabklikk
Det tas forbehold om endelig godkjenning fra kommunen.
Salgsoppgaven beskriver vesentlig og lovpålagt informasjon om eiendommen
Se komplett salgsoppgaveNærområdet
Tindehytter AS
Annonsene kan være mangelfulle i forhold til lovpålagt opplysningsplikt. Før bindende avtale inngås oppfordres interessenter til å innhente komplett informasjon fra meglerforetaket, selger eller utleier.






















