Bildegalleri

Velkommen til Bjønnefaret 45!
Fjellhytte med Ski inn/ut | 4 soverom, 2 bad | Jacuzzi og badstue
Prisantydning2 950 000 kr
- Omkostninger
- 75 070 kr
- Totalpris
- 3 025 070 kr
- Kommunale avg.
- 20 412 kr per år
- Formuesverdi
- 639 424 kr
Nøkkelinfo
- Beliggenhet
- På fjellet
- Boligtype
- Hytte
- Eieform
- Eier (Selveier)
- Internt bruksareal
- 94 m² (BRA-i)
- Bruksareal
- 98 m²
- Eksternt bruksareal
- 4 m² (BRA-e)
- Tomteareal
- 1 000 m² (festet)
- Festeavgift
- 2 927 kr
- Byggeår
- 2004
- Soverom
- 4
- Rom
- 5
- Energimerking
- D - Oransje
Fasiliteter
Innlagt vann
Alpinanlegg
Balkong/Terrasse
Barnevennlig
Bilvei frem
Bredbåndstilknytning
Garasje/P-plass
Peis/Ildsted
Rolig
Utsikt
Innlagt strøm
Offentlig vann/kloakk
Turterreng
Visning
lørdag, 27. desember
11:00 – 12:00
Husk å lese komplett salgsoppgave før visning. Bestill komplett, utskriftsvennlig salgsoppgave.
VisningspåmeldingOm boligen
Velkommen til Bjønnefaret 45 - på første rekke fra alpinbakken!
Eiendommen ligger fint til i Uvdal Alpinsenter ca. 759 moh. Fra hytta kan man ta på seg skiene og skli rett inn i bakken, ski-in/ski-out.
Eiendommen ligger innerst i en blindvei, og har ingen gjenboere.
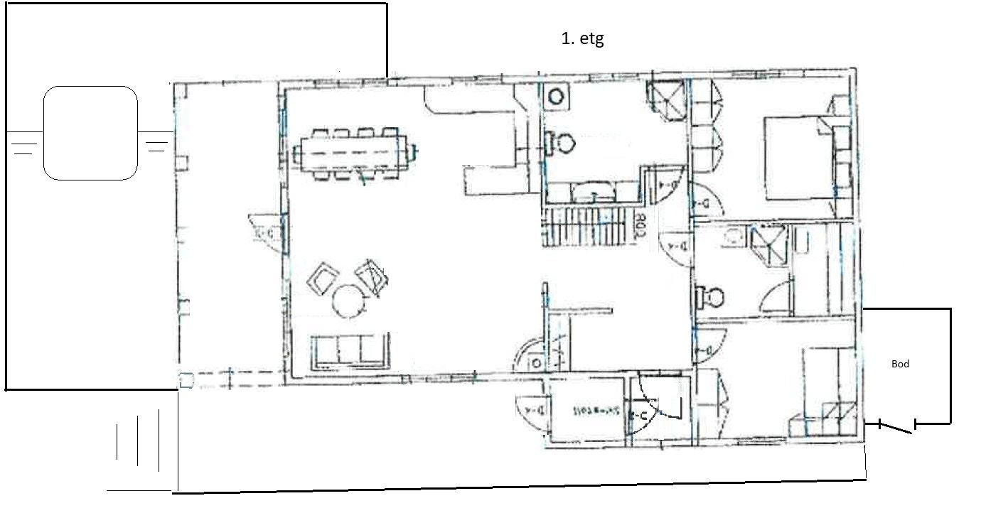
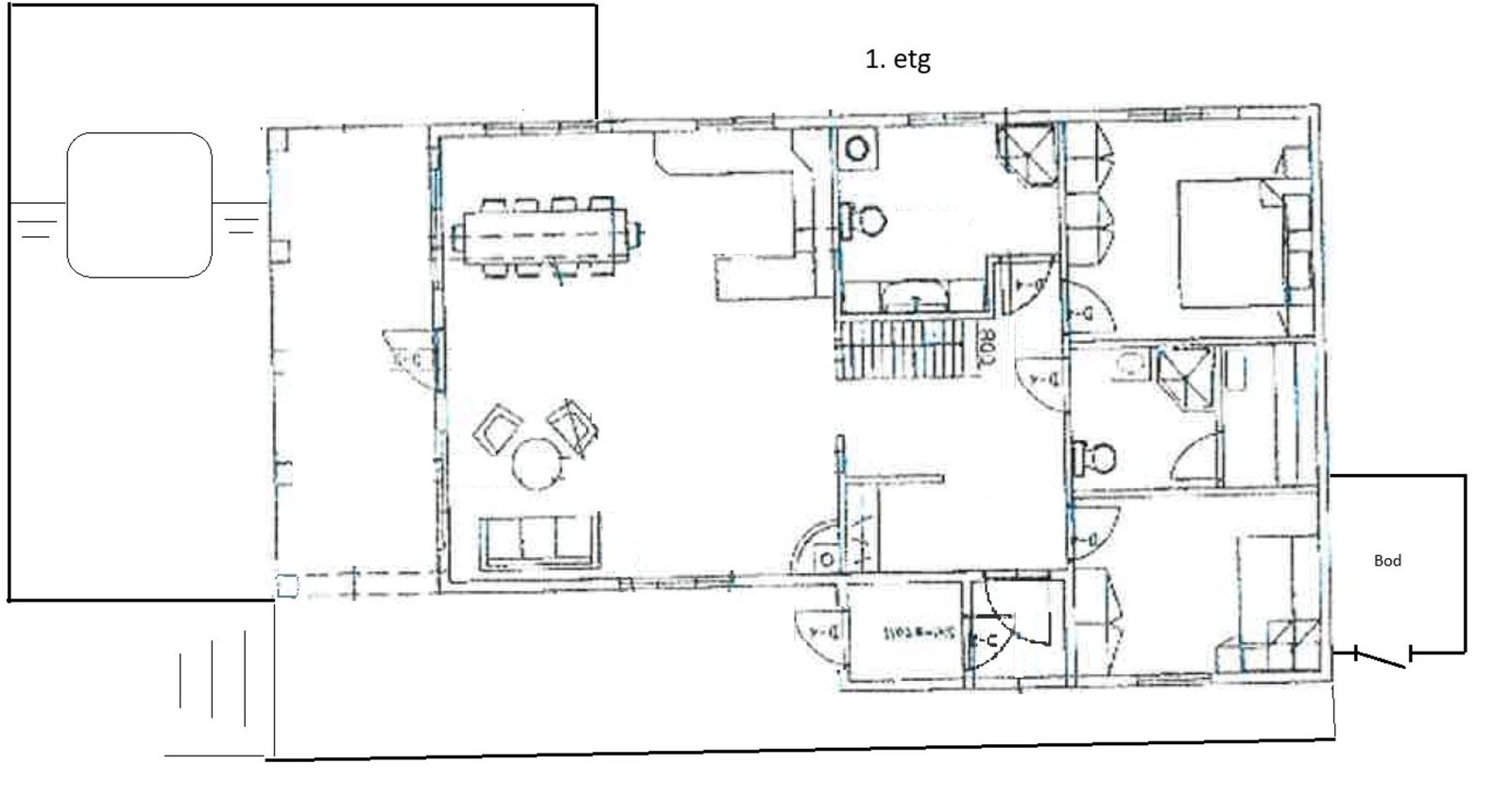
Hytta inneholder bl.a: Stue/kjøkken, 4 soverom, 2 bad, badstue og hemsstue.
Hytta har en stor terrasse med flere platåer og er delvis overbygd. Utgang til terrasse fra stue og inngangsparti. Videre tilgang fra terrassen til uisolert bod på ca. 5 kvm.
Fremhevede kvaliteter:
- Ski in/ski out - ca. 35 m fra alpinbakken
- 2 bad, ett med badstu
- Varmekabler i entre, hall og bad
- Overbygd terrasse med flott utsikt utover dalen
- Tradisjonell vedovn skaper varme og stemning i stua.
Velkommen på visning!
Eiendommen ligger fint til i Uvdal Alpinsenter ca. 759 moh. Fra hytta kan man ta på seg skiene og skli rett inn i bakken, ski-in/ski-out.
Eiendommen ligger innerst i en blindvei, og har ingen gjenboere.
Hytta inneholder bl.a: Stue/kjøkken, 4 soverom, 2 bad, badstue og hemsstue.
Hytta har en stor terrasse med flere platåer og er delvis overbygd. Utgang til terrasse fra stue og inngangsparti. Videre tilgang fra terrassen til uisolert bod på ca. 5 kvm.
Fremhevede kvaliteter:
- Ski in/ski out - ca. 35 m fra alpinbakken
- 2 bad, ett med badstu
- Varmekabler i entre, hall og bad
- Overbygd terrasse med flott utsikt utover dalen
- Tradisjonell vedovn skaper varme og stemning i stua.
Velkommen på visning!
NB: Knappen for å vise hele beskrivelsen har kun en visuell effekt.
NB: Knappen for å vise hele beskrivelsen har kun en visuell effekt.
Salgsoppgaven beskriver vesentlig og lovpålagt informasjon om eiendommen
Se komplett salgsoppgaveNyttige lenker
Nærområdet
EiendomsMegler 1 Fjellmegleren
Vi loser deg trygt gjennom hele boligsalget
Annonseinformasjon
| FINN-kode | 442556939 |
|---|---|
| Sist endret | 23. des. 2025 16:19 |
| Referanse | 1530250290 |
Annonsene kan være mangelfulle i forhold til lovpålagt opplysningsplikt. Før bindende avtale inngås oppfordres interessenter til å innhente komplett informasjon fra meglerforetaket, selger eller utleier.





































