Bildegalleri

Eiendomsmegler Ida Follinglo presenterer denne eiendommen. Foto: Christine Stokkebryn
Vaset
Innholdsrik hytte over 2,5 plan med fin utsikt og gode solforhold på Stubbeset/Vaset - 4 soverom og 2 bad - Badstue
Prisantydning5 800 000 kr
- Omkostninger
- 149 890 kr
- Totalpris
- 5 949 890 kr
- Kommunale avg.
- 21 621 kr per år
Nøkkelinfo
- Beliggenhet
- På fjellet
- Boligtype
- Hytte
- Eieform
- Selveier
- Internt bruksareal
- 210 m² (BRA-i)
- Bruksareal
- 210 m²
- Balkong/Terrasse
- 79 m² (TBA)
- Tomteareal
- 1 137 m²
- Byggeår
- 1999
- Soverom
- 4
- Rom
- 8
- Energimerking
- E - Oransje
Fasiliteter
Balkong/Terrasse
Garasje/P-plass
Fiskemulighet
Offentlig vann/kloakk
Peis/Ildsted
Turterreng
Utsikt
Alpinanlegg
Bilvei frem
Innlagt strøm
Innlagt vann
Visning
Ta kontakt for å avtale visning.Husk å lese komplett salgsoppgave før visning. Bestill komplett, utskriftsvennlig salgsoppgave.
VisningspåmeldingOm boligen
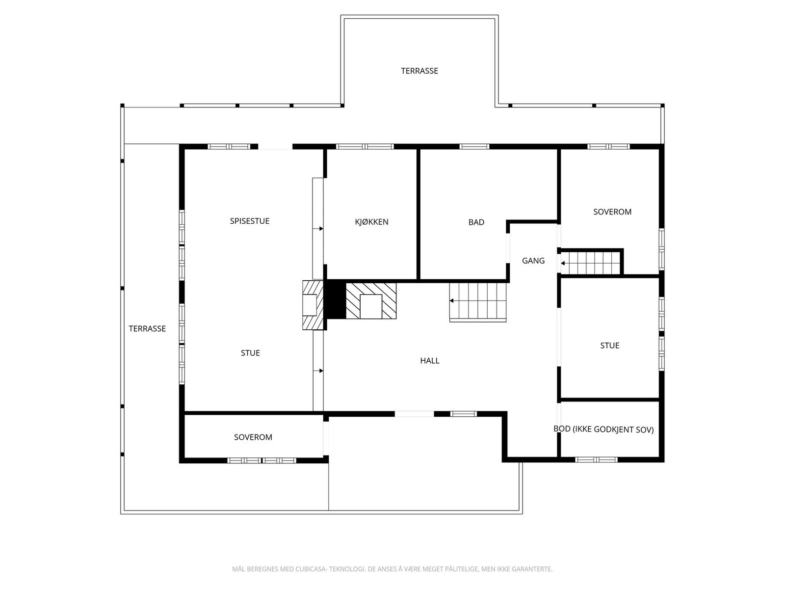
Velkommen til denne flotte og innholdsrike hytta - fjelleventyr i tradisjonell stil!
Hytta er over 2,5 plan og byr på en lun og koselig atmosfære. God harmoni og flyt mellom sonene/rommene gjør dette til en inkluderende hytte, men også med mulighet for privatliv.
- Stue og spiseplass med god takhøyde og gruepeis
- Gruepeis i hall ved godstolene
- Tv-stue
- 4 gode soverom
Kjellerplanet er ypperlig når man kommer tilbake fra dagens uteaktiviteter. Her kan man gå rett inn i en romslig hall med god plass til yttertøy og sko.
Egen sone med seng og TV - ypperlig for ungdommen.
Dusjrom og badstue samt eget toalettrom. God lagringsplass.
Fra terrasser, rom og tomten har man flott utsikt. Skiløypene går like ved og kan ta deg milevis av gårde.
Vaset er en helårsdestinasjon for hele familien.
Dagligvare med bredt utvalg av lokalmat, jernvare, leker, hytte- og friluftsutstyr.
Intersport tilbyr utleie av sykler og ski.
Mulighet for privatvisning i påsken, ta kontakt for å avtale tid!
Hytta er over 2,5 plan og byr på en lun og koselig atmosfære. God harmoni og flyt mellom sonene/rommene gjør dette til en inkluderende hytte, men også med mulighet for privatliv.
- Stue og spiseplass med god takhøyde og gruepeis
- Gruepeis i hall ved godstolene
- Tv-stue
- 4 gode soverom
Kjellerplanet er ypperlig når man kommer tilbake fra dagens uteaktiviteter. Her kan man gå rett inn i en romslig hall med god plass til yttertøy og sko.
Egen sone med seng og TV - ypperlig for ungdommen.
Dusjrom og badstue samt eget toalettrom. God lagringsplass.
Fra terrasser, rom og tomten har man flott utsikt. Skiløypene går like ved og kan ta deg milevis av gårde.
Vaset er en helårsdestinasjon for hele familien.
Dagligvare med bredt utvalg av lokalmat, jernvare, leker, hytte- og friluftsutstyr.
Intersport tilbyr utleie av sykler og ski.
Mulighet for privatvisning i påsken, ta kontakt for å avtale tid!
NB: Knappen for å vise hele beskrivelsen har kun en visuell effekt.
NB: Knappen for å vise hele beskrivelsen har kun en visuell effekt.
Salgsoppgaven beskriver vesentlig og lovpålagt informasjon om eiendommen
Se komplett salgsoppgaveNærområdet

PrivatMegleren Valdres
Kun det beste på dine vegne
Annonsene kan være mangelfulle i forhold til lovpålagt opplysningsplikt. Før bindende avtale inngås oppfordres interessenter til å innhente komplett informasjon fra meglerforetaket, selger eller utleier.









































































