Bildegalleri

Velkommen til Husefjellveien 66! Foto: Arve Gravdal
Suleskard Fjellgaard
Solid høyfjellshytte på toppen av feltet | Garasje | Anneks | 5 soverom
Prisantydning8 900 000 kr
- Omkostninger
- 223 850 kr
- Totalpris
- 9 123 850 kr
- Kommunale avg.
- 11 721 kr per år
- Formuesverdi
- 875 000 kr
Nøkkelinfo
- Beliggenhet
- På fjellet
- Boligtype
- Hytte
- Eieform
- Eier (Selveier)
- Internt bruksareal
- 168 m² (BRA-i)
- Bruksareal
- 194 m²
- Eksternt bruksareal
- 26 m² (BRA-e)
- Balkong/Terrasse
- 47 m² (TBA)
- Tomteareal
- 1 174 m² (eiet)
- Byggeår
- 2018
- Soverom
- 5
- Rom
- 7
- Energimerking
- C - Oransje
Fasiliteter
Balkong/Terrasse
Garasje/P-plass
Offentlig vann/kloakk
Peis/Ildsted
Turterreng
Utsikt
Bilvei frem
Innlagt strøm
Innlagt vann
Visning
søndag, 11. januar
13:00 – 14:00
For å yte premium rådgivning, har alle våre visninger påmelding. Dette sikrer at megler har god oversikt og tid til å imøtekomme alle interessenter på aller beste måte. Dersom ingen interessenter er påmeldt, kan visningen bli avlyst. Frist for å melde seg på visningen er fredag 9. januar kl. 16:00.
Husk å lese komplett salgsoppgave før visning. Bestill komplett, utskriftsvennlig salgsoppgave.
VisningspåmeldingOm boligen
Husefjellveien 66 er en solid høyfjellshytte beliggende på toppen av hyttefeltet. Her får du en luftig beliggenhet og en storslått utsikt utover dalen og mot Ådneram. Beliggenhet og mange andre kvaliteter gjør denne hytten til en drøm for naturelskere og vinterentusiaster - gled deg!
Innhold:
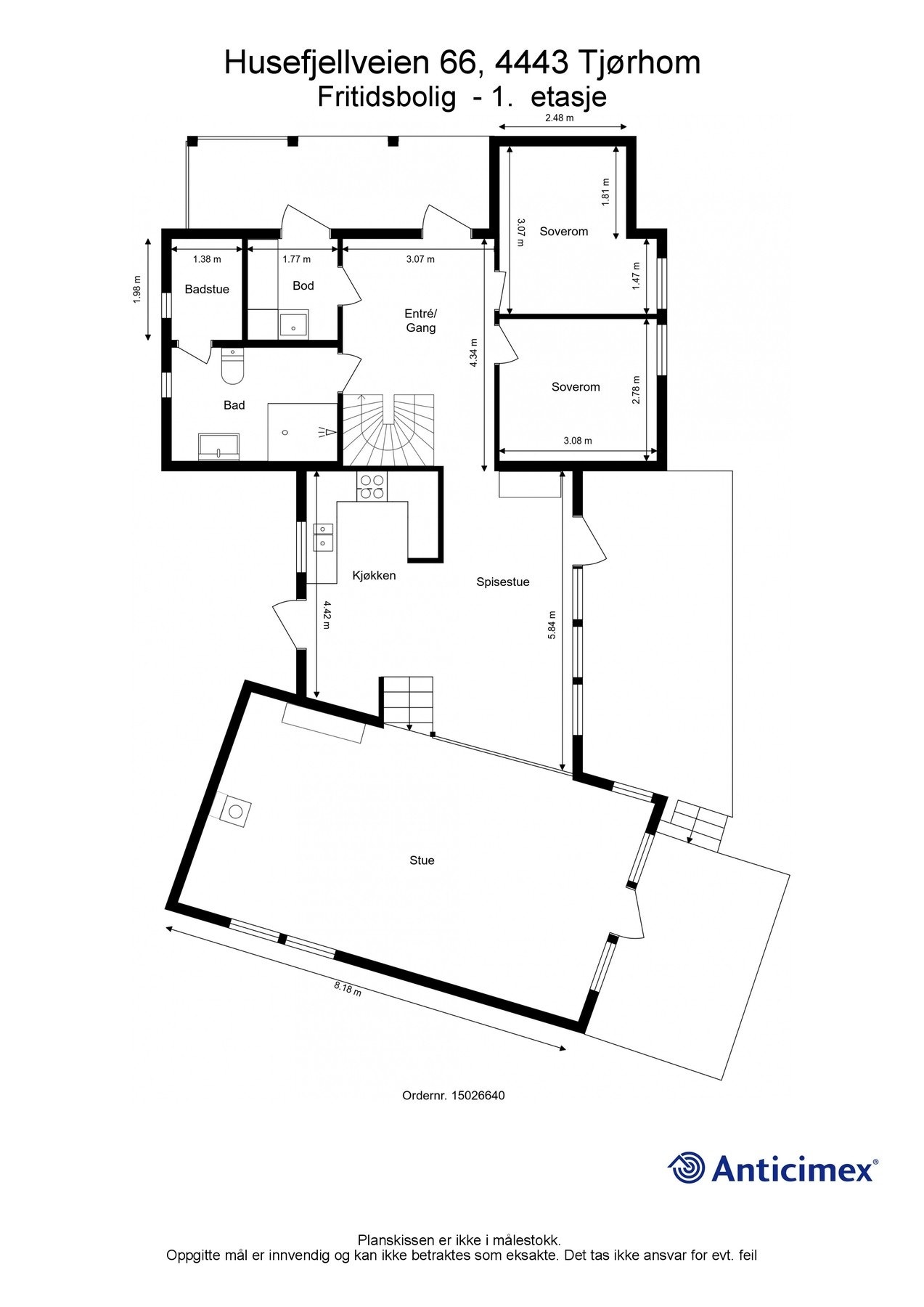
1. etg.: Entré, gang, stue, kjøkken/spisestue, 2 soverom, bad, badstue og bod.
2. etg.: Gang, 3 soverom og bad.
Anneks: Kjøkken/stue/sov og bad.
Kort fortalt:
- Solid høyfjellshytte
- Gjennomgåene god standard
- God planløsning
- 5 soverom
- Eget anneks som passer perfekt til gjestene
- Garasje og skibod på 26 kvm
- Flotte turområder året rundt og oppkjørte skiløyper like utenfor døren
- Kort vei til Ådneram skitrekk
Innhold:
1. etg.: Entré, gang, stue, kjøkken/spisestue, 2 soverom, bad, badstue og bod.
2. etg.: Gang, 3 soverom og bad.
Anneks: Kjøkken/stue/sov og bad.
Kort fortalt:
- Solid høyfjellshytte
- Gjennomgåene god standard
- God planløsning
- 5 soverom
- Eget anneks som passer perfekt til gjestene
- Garasje og skibod på 26 kvm
- Flotte turområder året rundt og oppkjørte skiløyper like utenfor døren
- Kort vei til Ådneram skitrekk
NB: Knappen for å vise hele beskrivelsen har kun en visuell effekt.
NB: Knappen for å vise hele beskrivelsen har kun en visuell effekt.
Salgsoppgaven beskriver vesentlig og lovpålagt informasjon om eiendommen
Se komplett salgsoppgaveNyttige lenker
Nærområdet
EIE eiendomsmegling - Espen Eide & Partnere AS
Annonseinformasjon
| FINN-kode | 442544078 |
|---|---|
| Sist endret | 30. des. 2025 10:03 |
| Referanse | 82251065 |
Annonsene kan være mangelfulle i forhold til lovpålagt opplysningsplikt. Før bindende avtale inngås oppfordres interessenter til å innhente komplett informasjon fra meglerforetaket, selger eller utleier.



















































