Bildegalleri

Fjellmegleren har gleden av å presentere Skigaarden bygg 6 leilighet 3 - Lekker leilighet med ski inn/ski ut og førsteklasses beliggenhet.
Skigaarden
Lekker leilighet på Skigaarden - Der eleganse møter høyfjellet. Ski inn/ski ut, tidløs design midt i fjellparadiset!
Prisantydning5 300 000 kr
- Omkostninger
- 133 820 kr
- Totalpris
- 5 433 820 kr
- Kommunale avg.
- 20 605 kr per år
- Felleskost/mnd.
- 1 605 kr
- Eiendomsskatt
- 9 707 kr per år
Nøkkelinfo
- Beliggenhet
- På fjellet
- Boligtype
- Leilighet
- Eieform
- Eier (Selveier)
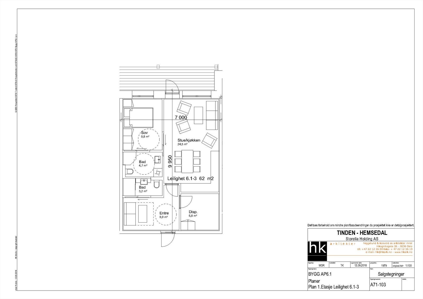
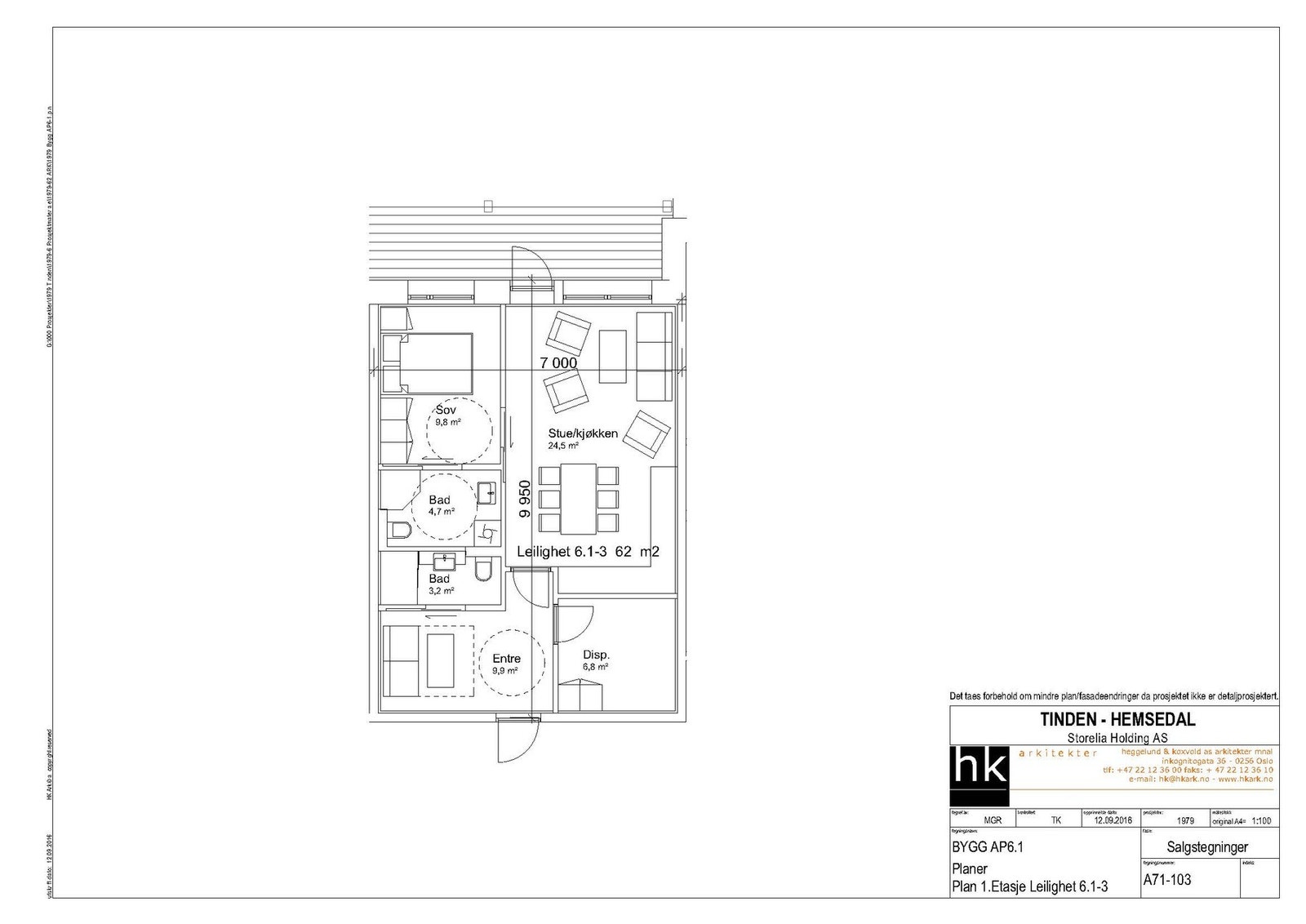
- Internt bruksareal
- 61 m² (BRA-i)
- Bruksareal
- 71 m²
- Eksternt bruksareal
- 10 m² (BRA-e)
- Balkong/Terrasse
- 20 m² (TBA)
- Tomteareal
- 1 264 m² (eiet)
- Byggeår
- 2018
- Soverom
- 1
- Rom
- 3
- Energimerking
- B - Mørkegrønn
Fasiliteter
Alpinanlegg
Bilvei frem
Bredbåndstilknytning
Garasje/P-plass
Kabel-TV
Utsikt
Offentlig vann/kloakk
Turterreng
Lademulighet
Visning
mandag, 29. desember
13:00 – 14:00
Dersom ikke oppsatt visningstidspunkt skulle passe. Ta kontakt med megler for å avtale privatvisning i juleferien! Velkommen til fjells!
Husk å lese komplett salgsoppgave før visning. Bestill komplett, utskriftsvennlig salgsoppgave.
VisningspåmeldingOm boligen
Velkommen til Skigaarden 6-3! En stilren leilighet med førsteklasses beliggenhet, umiddelbar tilgang til bakken og ekte fjellfølelse året rundt. Her bor du midt i bakken med ski inn/ut kombinert med fantastisk utsikt og gjennomført kvalitet i alle ledd. Perfekt for deg som vil kombinere alpint, natur og komfort i toppklasse midt i ett av Hemsedals mest ettertraktede områder.
Leilighetens innhold:
Entré/tv-stue, åpen stue/kjøkkenløsning med utgang til terrasse, delikat soverom og sovealkove, lekkert baderom og gjestebad. I tillegg stor skigarderobe rett over gangen.
Garasjeplass m/el-bil lader. Felles ski/sykkelbod.
Skigaarden har virkelig premium beliggenhet!
Her får du det beste av Hemsedal. Ski, smaker, stemning og gode opplevelser.
Alt samlet på ett sted!
Velkommen til visning!
Leilighetens innhold:
Entré/tv-stue, åpen stue/kjøkkenløsning med utgang til terrasse, delikat soverom og sovealkove, lekkert baderom og gjestebad. I tillegg stor skigarderobe rett over gangen.
Garasjeplass m/el-bil lader. Felles ski/sykkelbod.
Skigaarden har virkelig premium beliggenhet!
Her får du det beste av Hemsedal. Ski, smaker, stemning og gode opplevelser.
Alt samlet på ett sted!
Velkommen til visning!
NB: Knappen for å vise hele beskrivelsen har kun en visuell effekt.
NB: Knappen for å vise hele beskrivelsen har kun en visuell effekt.
Salgsoppgaven beskriver vesentlig og lovpålagt informasjon om eiendommen
Se komplett salgsoppgaveNyttige lenker
Nærområdet
EiendomsMegler 1 Fjellmegleren
Vi loser deg trygt gjennom hele boligsalget

Gjermund Svendsen-Rosendal
Eiendomsmegler MNEF/ Avd.leder nybygg/ Avd.leder Hemsedal
Annonseinformasjon
| FINN-kode | 442441299 |
|---|---|
| Sist endret | 22. des. 2025 07:23 |
| Referanse | 1532250217 |
Annonsene kan være mangelfulle i forhold til lovpålagt opplysningsplikt. Før bindende avtale inngås oppfordres interessenter til å innhente komplett informasjon fra meglerforetaket, selger eller utleier.




































