Bildegalleri

Hyttemodell - Litla Nillo (illustrasjonsbilde)
Prosjekterte hytter på Goddosen | Havutsikt og badestrand | Mulighet for båtplass og sjøbod | 8 solgte
- Omkostninger
- 10 250 kr
- Totalpris
- 3 260 250 kr
Nøkkelinfo
- Beliggenhet
- Ved sjøen
- Boligtype
- Hytte
- Eieform
- Eier (Selveier)
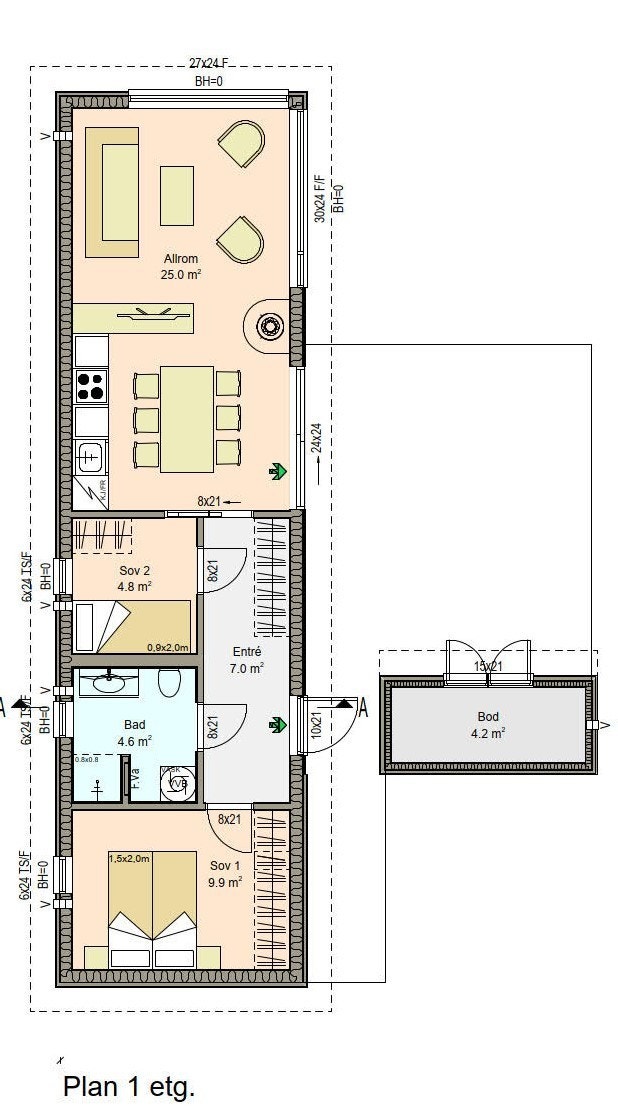
- Primærrom
- 54 m²
- Bruksareal
- 58 m²
- Tomt
- Eiet
- Soverom
- 2
Fasiliteter
Visning
Ta kontakt for å avtale visning.Om eiendommen
Beliggenhet
Generelt
Nøkkelferdige hytter i eit hyttefelt som lar naturen leggja ann føringane.
Hyttene er arkitektteikna av JK Arkitektur og skreddarsydd for landskapet sitt naturlege uttrykk.
Velg mellom tre ulike hyttetypar:
*Litla Nillo
*Nillo
*Lauritz
Kvar enkel hytte er nøysam plassert slik at dei skjermar for innsyn og vind, samstundes som dei slepp inn sol. Moglegheit for naustbod og båtplass. Eiga badestrand i hyttefeltet.
*Pris oppgitt i annonsa er for hyttemodellen Litla Nillo. Tomtepris kjem utanom.
Ta kontakt for detaljert pris og informasjon på dei ulike hyttemodellane.
I hyttefeltet er følgjande fellesareal: tråkk til sjø, leikeareal, naustbuer, strand, småbåtanlegg og parkering.
Området inkluderer 16 ferdig regulerte hyttetomter. Tomtene selges kvar for seg. Størrelsen på tomtene varierer mellom 588 m2 og 823 m2.
Tomtene leveres m/veg, vatn, avlaup og straum fram til tomtegrensa.
Ta deg ein tur og sjå det vakre landskapet i Goddosen. Me tar deg gjerne med på visning, når det passar for deg.
Bestill prospekt: https://goddosen.no
Med forbehold om feil i annonsa.
Adkomst/Tomteforhold
For å komma til Bømlo kjør E39 til Føyno og ta av mot vest. Føl vegen vidare mot Bremnes sentrum. Hytteområdet ligg ved fylkesveg 18. Når du kjem inn mot sentrum, ta av mot Urangsvåg og føl vegen vidare ut mot Goddo til du ser Goddosen hyttegrend på høgre side.
Innhold
Standard
Ta kontakt med megler for komplett informasjon
Nærområdet
Goddosen Panorama AS
Annonseinformasjon
| FINN-kode | 439032445 |
|---|---|
| Sist endret | 30. nov. 2025 16:30 |
| Referanse | 819994412 |
Annonsene kan være mangelfulle i forhold til lovpålagt opplysningsplikt. Før bindende avtale inngås oppfordres interessenter til å innhente komplett informasjon fra meglerforetaket, selger eller utleier.

























