Bildegalleri

- Nordvik Hardanger v/Sebastian Gjerde har gleden av å presentere Dalen 164 -
Kvamskogen
Sjarmerende og velholdt familiehytte på Kvamskogen! Praktisk planløsning. 51m² terrasse m/gode solforhold & utsikt! Hems
Prisantydning2 000 000 kr
- Omkostninger
- 51 380 kr
- Totalpris
- 2 051 380 kr
- Kommunale avg.
- 8 391 kr per år
- Eiendomsskatt
- 693 kr per år
Nøkkelinfo
- Beliggenhet
- På fjellet
- Boligtype
- Hytte
- Eieform
- Eier (Selveier)
- Internt bruksareal
- 35 m² (BRA-i)
- Bruksareal
- 38 m²
- Eksternt bruksareal
- 3 m² (BRA-e)
- Balkong/Terrasse
- 51 m² (TBA)
- Tomt
- Festet
- Festeavgift
- 6 095 kr
- Byggeår
- 1976
- Soverom
- 2
- Rom
- 3
- Energimerking
- F - Oransje
Fasiliteter
Innlagt vann
Balkong/Terrasse
Barnevennlig
Bredbåndstilknytning
Garasje/P-plass
Hage
Peis/Ildsted
Rolig
Utsikt
Innlagt strøm
Offentlig vann/kloakk
Turterreng
Visning
søndag, 08. februar
11:00 – 12:00
Husk å lese komplett salgsoppgave før visning. Bestill komplett, utskriftsvennlig salgsoppgave.
VisningspåmeldingOm boligen
Nordvik Hardanger har gleden av å presentere Dalen 164!
En velholdt og koselig fritidsbolig på Kvamskogen - vakkert plassert ved foten av Byrkjefjell. Her får du nærhet til ca. 60 km skiløyper, akebakke og flotte turmuligheter året rundt som Tveitakvitingen og Byrkjefjell. Et lunt fristed for deg som ønsker rekreasjon i vakre omgivelser
En velholdt og koselig fritidsbolig på Kvamskogen - vakkert plassert ved foten av Byrkjefjell. Her får du nærhet til ca. 60 km skiløyper, akebakke og flotte turmuligheter året rundt som Tveitakvitingen og Byrkjefjell. Et lunt fristed for deg som ønsker rekreasjon i vakre omgivelser
- Romslig terrasse på hele 51m² vendt mot ulike solretninger, men nydelig utsikt!
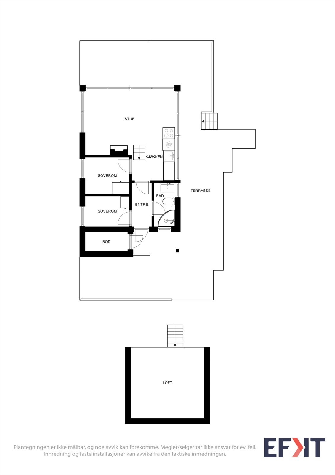
- Praktisk og familievennlig planløsning med 2 soverom + hems på 14m²
- Tinglyst rett til parkeringsplass
- 4 min kjøring eller kort gangavstand til Kvamskogen Landhandleri
- 15 min kjøring til Norheimsund
- 60 min kjøring fra Bergen
- Nærhet til nydelige tur- og friluftsmuligheter
Gang, bad, 2 sov, stue/kjøkken, bod + hems
NB: Knappen for å vise hele beskrivelsen har kun en visuell effekt.
NB: Knappen for å vise hele beskrivelsen har kun en visuell effekt.
Salgsoppgaven beskriver vesentlig og lovpålagt informasjon om eiendommen
Se komplett salgsoppgaveNyttige lenker
Nærområdet
Nordvik Hardanger
Vi vet hva det er verdt
Annonseinformasjon
| FINN-kode | 438083125 |
|---|---|
| Sist endret | 02. feb. 2026 18:44 |
| Referanse | 37-0139/25 |
Annonsene kan være mangelfulle i forhold til lovpålagt opplysningsplikt. Før bindende avtale inngås oppfordres interessenter til å innhente komplett informasjon fra meglerforetaket, selger eller utleier.




















