Bildegalleri

Solgt
Sjarmerende hytte fra 1910 - tilbygd i 2003 | Innlagt strøm og vann | Vei helt frem | Usjenert med nydelig havutsikt
Prisantydning790 000 kr
- Omkostninger
- 21 100 kr
- Totalpris
- 811 100 kr
- Kommunale avg.
- 6 913 kr per år
- Formuesverdi
- 206 666 kr
- Verditakst
- 800 000 kr
Nøkkelinfo
- Boligtype
- Hytte
- Eieform
- Selveier
- Internt bruksareal
- 71 m² (BRA-i)
- Bruksareal
- 71 m²
- Balkong/Terrasse
- 35 m² (TBA)
- Tomteareal
- 739 m² (eiet)
- Byggeår
- 1910
- Soverom
- 3
- Rom
- 4
Fasiliteter
Balkong/Terrasse
Turterreng
Utsikt
Bilvei frem
Innlagt strøm
Innlagt vann
Om boligen
EIE eiendomsmegling Harstad v/megler Vetle Larsen har gleden av å presentere Faksfjordveien 382, en sjarmerende og praktisk hytte i Dyrøy kommune. Usjenert beliggenhet rett havet med fantastisk naturlandskap og turterreng rundt. Med bad, kjøkken, innlagt strøm og vei helt frem er det godt tilrettelagt for hyttekos både i helger og ferier!
- Sjarmerende hytte fra 1910, tilbygd i 2003 med gang, bad, kjøkken og ekstra soverom
- Nydelig havutsikt og stor, solrik terrasse
- Mange sengeplasser - 3 romslige soverom
- Sikringskap fra 2003 og oppgradert elektrisk anlegg
- Utvendig kledning skiftet i 2005/2006 og vinduer i perioden 2003-2006
- 18 km til dagligvare og bensinstasjon i Brøstadbotn
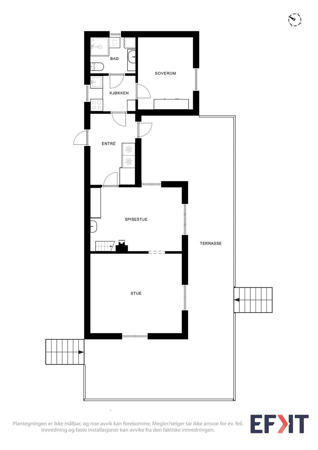
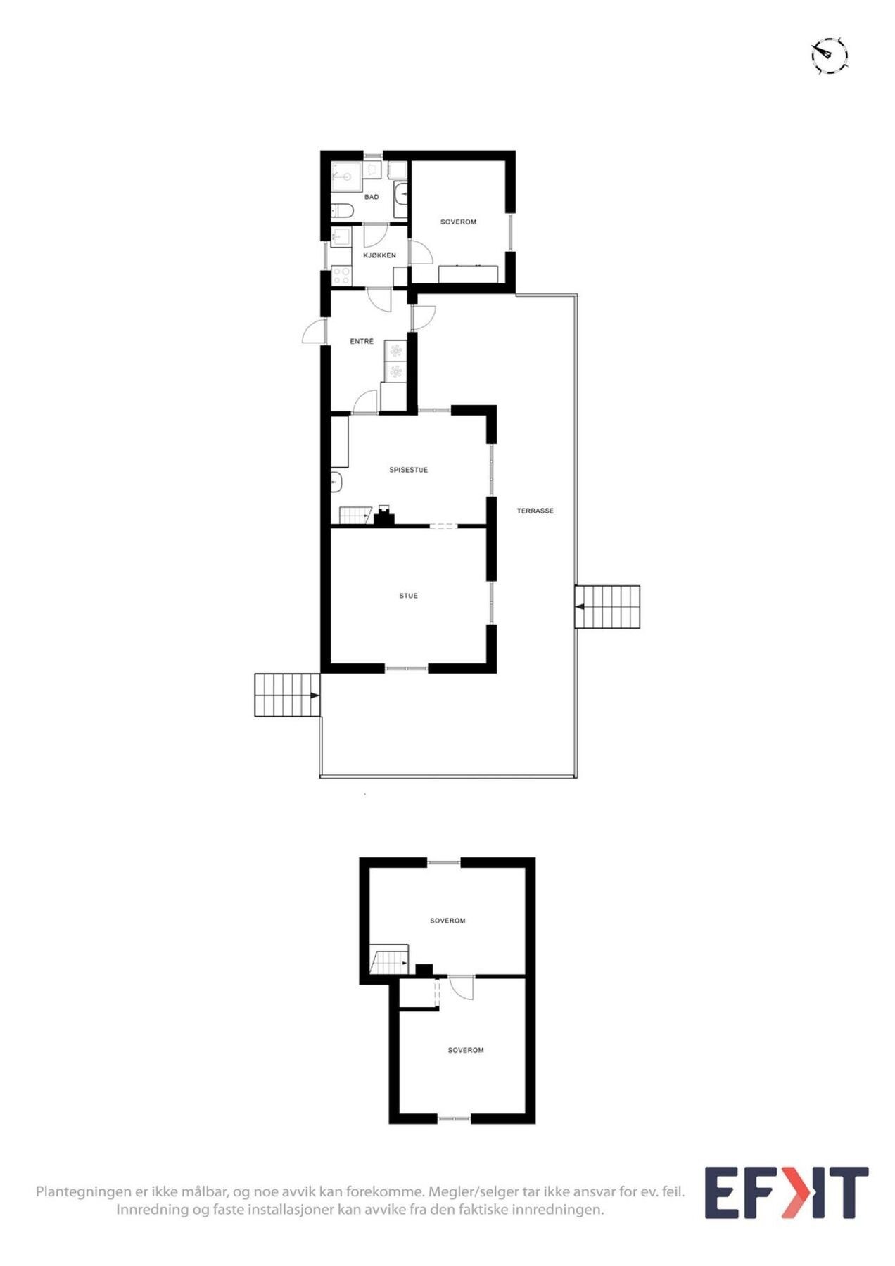
Hytta inneholder i 1. etasje - gang, stue, spisestue, kjøkken, bad og soverom. På loft - to soverom. Kjeller - to boder.
Velkommen til en trivelig visning!
NB: Knappen for å vise hele beskrivelsen har kun en visuell effekt.
NB: Knappen for å vise hele beskrivelsen har kun en visuell effekt.
Salgsoppgaven beskriver vesentlig og lovpålagt informasjon om eiendommen
Se komplett salgsoppgaveNyttige lenker
Nærområdet
EIE eiendomsmegling Harstad
Annonsene kan være mangelfulle i forhold til lovpålagt opplysningsplikt. Før bindende avtale inngås oppfordres interessenter til å innhente komplett informasjon fra meglerforetaket, selger eller utleier.













































