Bildegalleri

311355_DJI_20251030004711_0095_D.jpg
Hovden
Ny stor hytte på Djupetjønn - Fantastisk Utsikt! Høy standard. Nær ALT. Vid utsikt over Hovden.
Prisantydning4 890 000 kr
- Omkostninger
- 204 690 kr
- Totalpris
- 5 094 690 kr
- Kommunale avg.
- 11 893 kr per år
Nøkkelinfo
- Beliggenhet
- På fjellet
- Boligtype
- Hytte
- Eieform
- Eier (Selveier)
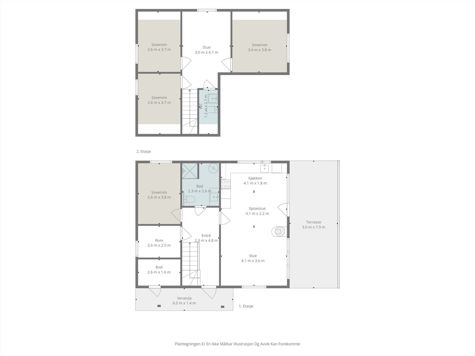
- Internt bruksareal
- 117 m² (BRA-i)
- Bruksareal
- 117 m²
- Tomteareal
- 286 m² (eiet)
- Byggeår
- 2025
- Soverom
- 4
Visning
Påmelding til visning
For å delta på visning må du melde deg på ved å bruke knappen nedenfor. Fristen for påmelding er senest kl. 12.00 samme dag som visningen. Det blir ikke gjennomført visning uten registrert påmelding.
Dersom tidspunktet ikke passer, ta gjerne kontakt med megler for å avtale en alternativ visning.
Vi anbefaler at du laster ned salgsoppgaven digitalt i forkant.
Velkommen til en hyggelig visning!
Husk å lese komplett salgsoppgave før visning. Bestill komplett, utskriftsvennlig salgsoppgave.
VisningspåmeldingOm boligen
Helt nye hytte beliggende på flott utsikttomt. Vid utsikt over Hovden - kort vei til sentrum / langrennsløyper / alpin anlegget etc.
Brede bord på kledning og panel innvendig. KUN kr 17.500 i omkostninger pga ny hytte (omk tomteverdi).
Ca solforhold Januar: Opp tidlig - ned kl 14.26. Påskeferien (15 april): Opp tidlig - ned kl 17.00. Sommerferien (juli): Opp tidlig - ned kl 19.29. Høstferien: Opp tidlig - ned kl 1600.
Brede bord på kledning og panel innvendig. KUN kr 17.500 i omkostninger pga ny hytte (omk tomteverdi).
Ca solforhold Januar: Opp tidlig - ned kl 14.26. Påskeferien (15 april): Opp tidlig - ned kl 17.00. Sommerferien (juli): Opp tidlig - ned kl 19.29. Høstferien: Opp tidlig - ned kl 1600.
NB: Knappen for å vise hele beskrivelsen har kun en visuell effekt.
NB: Knappen for å vise hele beskrivelsen har kun en visuell effekt.
Salgsoppgaven beskriver vesentlig og lovpålagt informasjon om eiendommen
Se komplett salgsoppgaveNyttige lenker
Nærområdet
Exbo Sørlandet AS
Annonseinformasjon
| FINN-kode | 435822951 |
|---|---|
| Sist endret | 06. nov. 2025 07:13 |
| Referanse | 1001250420 |
Annonsene kan være mangelfulle i forhold til lovpålagt opplysningsplikt. Før bindende avtale inngås oppfordres interessenter til å innhente komplett informasjon fra meglerforetaket, selger eller utleier.
















































