Bildegalleri

Hytta ligger flott til i et hyttefelt på Vatjønn mellom Hovden i Setesdal og Haukeli i Telemark.
Vamark - Vinje
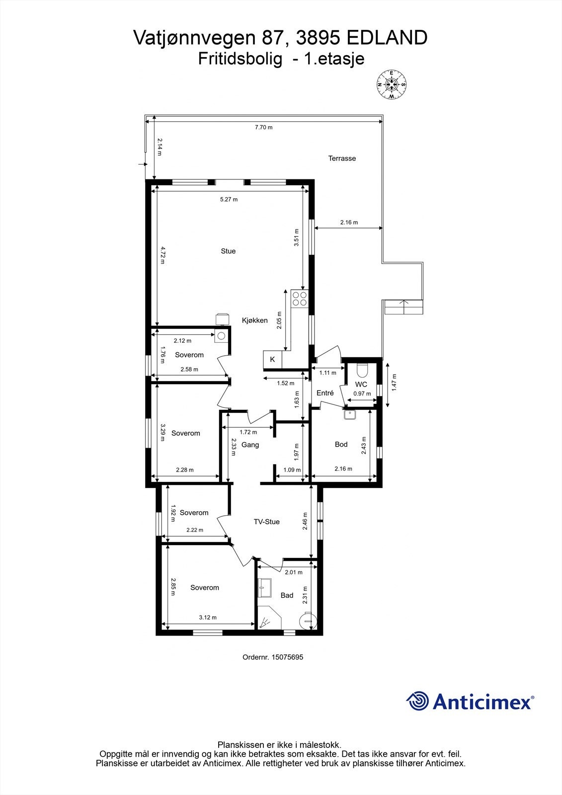
Fjellhytte med 4 soverom og anneks
Prisantydning2 500 000 kr
- Omkostninger
- 83 490 kr
- Totalpris
- 2 583 490 kr
- Kommunale avg.
- 3 366 kr per år
Pris på lån: fra 10 698 kr/mnd
Eff.rente 6,11 %. 1 500 000 o/20 år. Kostnad: 1 067 520 kr. Totalt 2 567 520 kr.
LånekalkulatorNøkkelinfo
- Beliggenhet
- På fjellet
- Boligtype
- Hytte
- Eieform
- Eier (Selveier)
- Internt bruksareal
- 86 m² (BRA-i)
- Bruksareal
- 104 m²
- Eksternt bruksareal
- 18 m² (BRA-e)
- Balkong/Terrasse
- 39 m² (TBA)
- Tomteareal
- 988 m² (festet)
- Festeavgift
- 3 000 kr
- Byggeår
- 1999
- Soverom
- 5
- Rom
- 7
- Energimerking
- D - Rød
- Overtakelse
- Etter nærmere avtale.
Fasiliteter
Bilvei frem
Garasje/P-plass
Rolig
Fiskemulighet
Innlagt strøm
Turterreng
Visning
Ta kontakt med megler for avtale om privatvisning.
Ønsker du kun å bli holdt orientert, kan du fra eiendommens hjemmeside få varsel om solgtpris, eller kontakte megler.
VisningspåmeldingOm boligen
Hytta ligger på et høydedrag mellom Hovden og Haukeli og er omgitt av snaufjell. Den ble bygget på slutten av 90-tallet og påbygget noen år etter, samtidig som det ble satt opp et anneks. Hytta er praktisk med egen TV-stue og 4 soverom.- Et perfekt sted for rekreasjon, peiskos og hyggelige samlinger rundt langbordet. Rett utenfor stuedøra finnes fine turområder og oppkjørte skiløyper om vinteren. Til Hovden er det ca. 20 min. med bil. og ned til Haukeli er det ca. 10 min.
NB: Knappen for å vise hele beskrivelsen har kun en visuell effekt.
NB: Knappen for å vise hele beskrivelsen har kun en visuell effekt.
Salgsoppgaven beskriver vesentlig og lovpålagt informasjon om eiendommen
Se komplett salgsoppgaveNyttige lenker
Nærområdet
Krogsveen Bamble og Porsgrunn
Velkommen til en enklere boligreise.
Annonseinformasjon
| FINN-kode | 435692105 |
|---|---|
| Sist endret | 17. nov. 2025 07:46 |
| Referanse | KR28.2585 |
Annonsene kan være mangelfulle i forhold til lovpålagt opplysningsplikt. Før bindende avtale inngås oppfordres interessenter til å innhente komplett informasjon fra meglerforetaket, selger eller utleier.




































