Bildegalleri

Velkommen til Sjusjøen-Brøttum 2495!
Inaktiv
Innholdsrik hytte på Sjusjøen m/ 2 soverom og hems | Ski-in/ski-out til langrennsløyper | Garasje og terrasse
Prisantydning3 750 000 kr
- Omkostninger
- 97 840 kr
- Totalpris
- 3 847 840 kr
- Kommunale avg.
- 10 905 kr per år
Nøkkelinfo
- Beliggenhet
- På fjellet
- Boligtype
- Hytte
- Eieform
- Eier (Selveier)
- Internt bruksareal
- 69 m² (BRA-i)
- Bruksareal
- 91 m²
- Eksternt bruksareal
- 22 m² (BRA-e)
- Balkong/Terrasse
- 27 m² (TBA)
- Tomteareal
- 1 000 m² (festet)
- Festeavgift
- 15 588 kr
- Byggeår
- 2010
- Soverom
- 2
- Rom
- 3
- Energimerking
- D - Oransje
Visning
Ta kontakt for å avtale visning.Husk å lese komplett salgsoppgave før visning. Bestill komplett, utskriftsvennlig salgsoppgave.
VisningspåmeldingOm boligen
Velkommen til Sjusjøen-Brøttum 2495! Her presenteres en flott fritidsbolig ombygd i 2010, beliggende i et populært hytteområde på Sjusjøen. Dette er en helårsdestinasjon som byr på fantastiske turmuligheter, enten du foretrekker langrenn, alpint eller sykling. Med umiddelbar nærhet til milevis med preparerte skiløyper, er dette en perfekt base for den aktive familien.
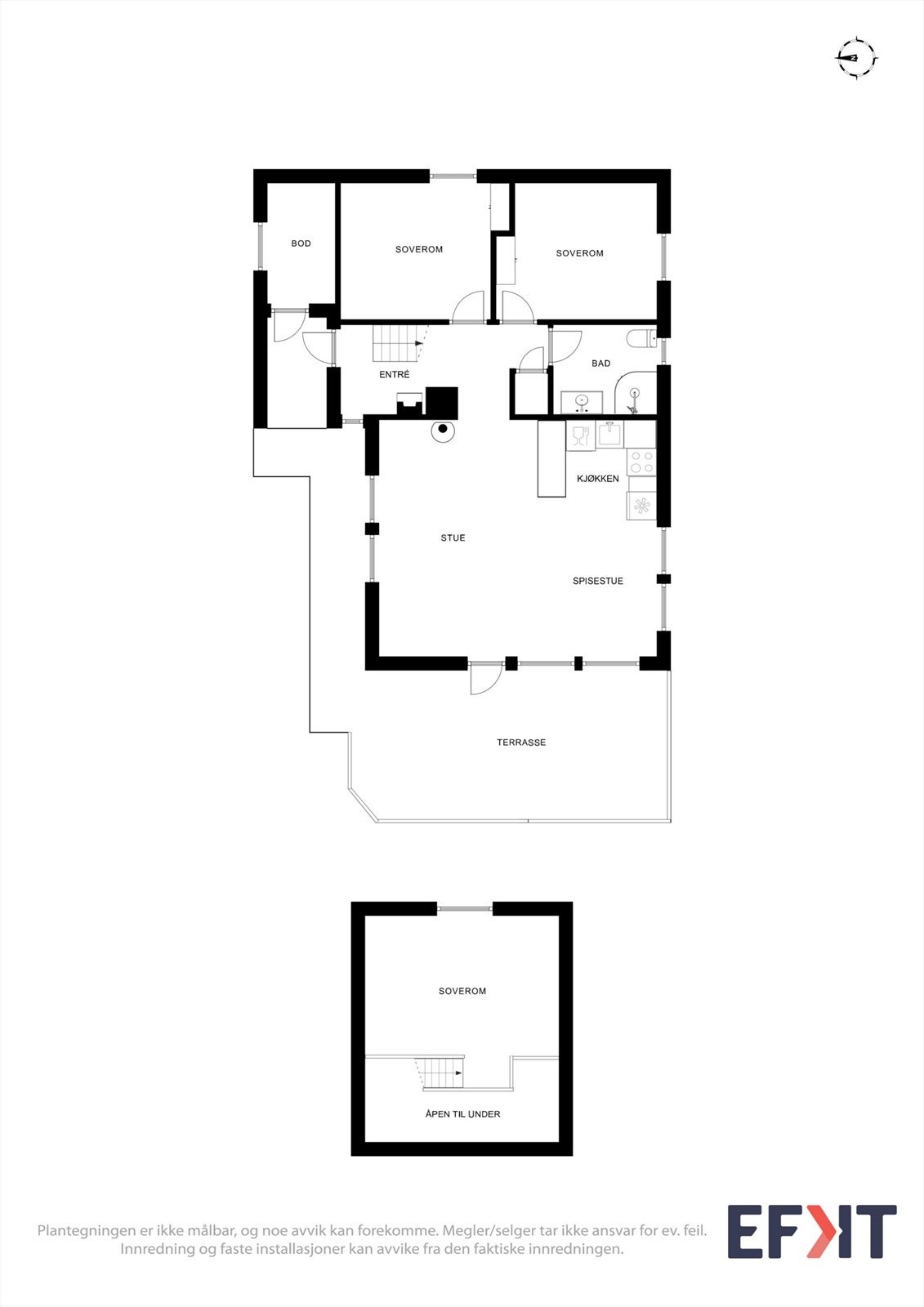
Hytta har en god planløsning og tradisjonell stil med panel og heltre gulv. Stue og kjøkken i åpen løsning skaper en sosial atmosfære, med en koselig peisovn som et naturlig samlingspunkt. Fra stuen er det utgang til en terrasse på 19 m². Hytta inneholder entré med peisovn, bad med gulvvarme, to soverom, hems, og utvendig bod. Eiendommen har også en frittstående garasje/uthus fra 2014.
Velkommen til visning!
Hytta har en god planløsning og tradisjonell stil med panel og heltre gulv. Stue og kjøkken i åpen løsning skaper en sosial atmosfære, med en koselig peisovn som et naturlig samlingspunkt. Fra stuen er det utgang til en terrasse på 19 m². Hytta inneholder entré med peisovn, bad med gulvvarme, to soverom, hems, og utvendig bod. Eiendommen har også en frittstående garasje/uthus fra 2014.
Velkommen til visning!
NB: Knappen for å vise hele beskrivelsen har kun en visuell effekt.
NB: Knappen for å vise hele beskrivelsen har kun en visuell effekt.
Salgsoppgaven beskriver vesentlig og lovpålagt informasjon om eiendommen
Se komplett salgsoppgaveNyttige lenker
Nærområdet
EiendomsMegler 1 Østlandet - avd. Lillehammer
Vi loser deg trygt gjennom hele boligsalget
Annonseinformasjon
| FINN-kode | 435685584 |
|---|---|
| Sist endret | 26. jan. 2026 09:01 |
| Referanse | 6027260012 |
Annonsene kan være mangelfulle i forhold til lovpålagt opplysningsplikt. Før bindende avtale inngås oppfordres interessenter til å innhente komplett informasjon fra meglerforetaket, selger eller utleier.







































