Bildegalleri

Svartskardvegen 212 B ved Mathias Ørnes & Christopher Lejonberg
Nyoppført hytte 950 moh. på Kvitfjell Vest. Høy standard. Utsikt. Ski inn/ut. Elbillader. Flos lyspakke. Stort kjøkken.
Prisantydning7 150 000 kr
- Omkostninger
- 6 090 kr
- Totalpris
- 7 156 090 kr
- Kommunale avg.
- 13 800 kr per år
Nøkkelinfo
- Boligtype
- Tomannsbolig
- Eieform
- Selveier
- Internt bruksareal
- 110 m² (BRA-i)
- Bruksareal
- 113 m²
- Eksternt bruksareal
- 2 m² (BRA-e)
- Tomteareal
- 1 335 m² (festet)
- Festeavgift
- 2 376 kr
- Byggeår
- 2024
- Soverom
- 3
- Rom
- 4
Fasiliteter
Balkong/Terrasse
Garasje/P-plass
Fiskemulighet
Offentlig vann/kloakk
Peis/Ildsted
Turterreng
Utsikt
Alpinanlegg
Bilvei frem
Innlagt strøm
Innlagt vann
Lademulighet
Balansert ventilasjon
Visning
Ta kontakt for å avtale visning.Husk å lese komplett salgsoppgave før visning. Bestill komplett, utskriftsvennlig salgsoppgave.
VisningspåmeldingOm boligen
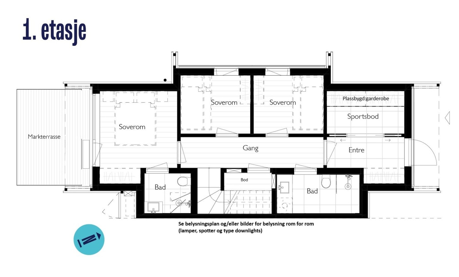
Flott og moderne vertikaldelt fritidsbolig på Kvitfjell Vest med gjennomgående høy standard og arkitektur signert R21. Arealeffektiv planløsning over to plan med 3 soverom, 2 bad og en lys oppholdsdel med store vindusflater, skråtak opp til 3,8 meter og peisinnsats. Kjøkken fra Bærum Kjøkkensenter med integrerte Miele-hvitevarer og god plass til både matlaging og sosiale samlinger. Ute finner du to balkonger og en terrasse med flott utsikt mot fjellandskapet.
Hytta ligger i et rolig tun på ca. 950 moh. med ski inn/ut til både alpint og langrenn. Området byr på gode solforhold, naturskjønne omgivelser og nærhet til restauranter og servicetilbud på Kvitfjell Vest.
Høydepunkter
Nyoppført, ikke tidligere tatt i bruk. Overtagelse etter avtale.
Svært lave kjøpsomkostninger.
Takhøyde i toppetasjen fra 2,8 til 3,8 meter.
Eksklusivt, stort og komplett kjøkken fra Bærum kjøkkensenter.
Peisinnsats fra danske Rais.
APP-styrt luft-til-luft varmepumpe
Det medfølger elbillader
ELKO plus
Hytta ligger i et rolig tun på ca. 950 moh. med ski inn/ut til både alpint og langrenn. Området byr på gode solforhold, naturskjønne omgivelser og nærhet til restauranter og servicetilbud på Kvitfjell Vest.
Høydepunkter
Nyoppført, ikke tidligere tatt i bruk. Overtagelse etter avtale.
Svært lave kjøpsomkostninger.
Takhøyde i toppetasjen fra 2,8 til 3,8 meter.
Eksklusivt, stort og komplett kjøkken fra Bærum kjøkkensenter.
Peisinnsats fra danske Rais.
APP-styrt luft-til-luft varmepumpe
Det medfølger elbillader
ELKO plus
NB: Knappen for å vise hele beskrivelsen har kun en visuell effekt.
NB: Knappen for å vise hele beskrivelsen har kun en visuell effekt.
Salgsoppgaven beskriver vesentlig og lovpålagt informasjon om eiendommen
Se komplett salgsoppgaveNyttige lenker
Nærområdet
Landkreditt Eiendom
NÅR KOMPETANSE TELLER
Annonseinformasjon
| FINN-kode | 434747409 |
|---|---|
| Sist endret | 28. apr. 2026 10:10 |
| Referanse | 328250010 |
Annonsene kan være mangelfulle i forhold til lovpålagt opplysningsplikt. Før bindende avtale inngås oppfordres interessenter til å innhente komplett informasjon fra meglerforetaket, selger eller utleier.




































































