Bildegalleri

Velkommen til Øvre Sprenåsen 30 på Turufjell, under to timer fra Oslo - Presentert av Nordvik Bolig / Christer Barman Gabrielsen - 950 41 364 - Foto Ole Edvin Tangen
Turufjell- Under to timer fra Oslo
Nyere hytte med stor hems og mange sengeplasser- inkl møbler. Ligger solrikt mot friområde - Utsikt - Skiløype like ved
Prisantydning5 300 000 kr
- Omkostninger
- 133 850 kr
- Totalpris
- 5 433 850 kr
- Eiendomsskatt
- 5 852 kr per år
Nøkkelinfo
- Beliggenhet
- På fjellet
- Boligtype
- Hytte
- Eieform
- Eier (Selveier)
- Internt bruksareal
- 91 m² (BRA-i)
- Bruksareal
- 95 m²
- Eksternt bruksareal
- 4 m² (BRA-e)
- Balkong/Terrasse
- 100 m² (TBA)
- Tomteareal
- 846 m² (eiet)
- Byggeår
- 2023
- Soverom
- 2
- Rom
- 3
- Energimerking
- C - Oransje
Fasiliteter
Innlagt vann
Alpinanlegg
Balkong/Terrasse
Barnevennlig
Bilvei frem
Bredbåndstilknytning
Garasje/P-plass
Hage
Kabel-TV
Peis/Ildsted
Rolig
Utsikt
Vaktmester-/vektertjeneste
Bademulighet
Fiskemulighet
Innlagt strøm
Offentlig vann/kloakk
Turterreng
Lademulighet
Visning
Visning avholdes kun ved påmelding. Ta kontakt for en hyggelig hytteprat og for å bekrefte avtale om visning.
Nordvik Bolig - Christer Barman Gabrielsen 950 41 364
Husk å lese komplett salgsoppgave før visning. Bestill komplett, utskriftsvennlig salgsoppgave.
VisningspåmeldingOm boligen
Rålekker hytte på Turufjell, inkl. møbler, i blindvei med utsikt og gode solforhold.
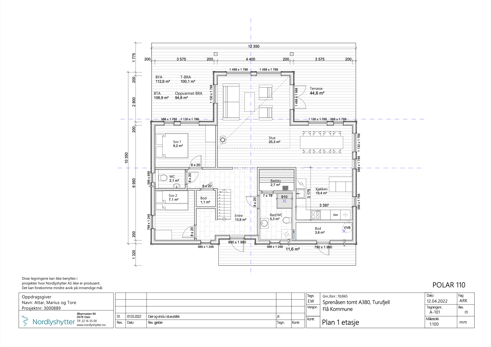
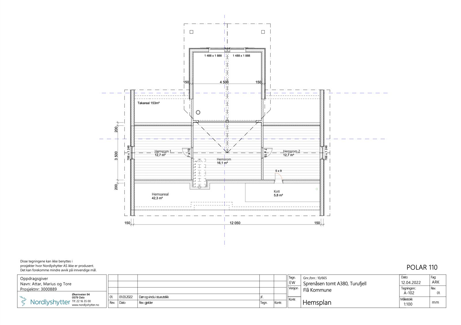
Hytta er en populær modell, Polar 110 fra Nordlyshytter og har et moderne uttrykk med panoramavindu i front som slipper naturen inn. Hytta er meget innholdsrik med mange sengeplasser og bad med badstu. Godt med oppbevaringsplass og praktiske løsninger.
Det kan nevnes
Hytta er en populær modell, Polar 110 fra Nordlyshytter og har et moderne uttrykk med panoramavindu i front som slipper naturen inn. Hytta er meget innholdsrik med mange sengeplasser og bad med badstu. Godt med oppbevaringsplass og praktiske løsninger.
Det kan nevnes
- Tiltalende hytte fra 2023
- God standard med gode og påkostede løsninger og detaljer
- Fantastisk beliggende i rolig blindvei
- Sol helt til sen kveld
- Friområde i front av hytta
- Høy standard
- Mørke vinduer og detaljer
- Varmekabler i alle flislagte rom
- Flere oppholdssoner og mange sengeplasser
- Pent opparbeidet rundt hytta
- Stor inngjerdet terrasse
- Klargjort for Jacuzzi
- Klargjort for garasje
NB: Knappen for å vise hele beskrivelsen har kun en visuell effekt.
NB: Knappen for å vise hele beskrivelsen har kun en visuell effekt.
Salgsoppgaven beskriver vesentlig og lovpålagt informasjon om eiendommen
Se komplett salgsoppgaveNyttige lenker
Nærområdet
Nordvik Majorstuen
Annonseinformasjon
| FINN-kode | 431342877 |
|---|---|
| Sist endret | 24. jan. 2026 21:35 |
| Referanse | 8-0207/25 |
Annonsene kan være mangelfulle i forhold til lovpålagt opplysningsplikt. Før bindende avtale inngås oppfordres interessenter til å innhente komplett informasjon fra meglerforetaket, selger eller utleier.



























































































