Bildegalleri

Eiendomsmegler Siri Lyseng Solberg presenterer denne eiendommen. Foto: Christine Stokkebryn
Ølnesseter
Hytte i flott turområde - Kort vei til langrennsløyper - Gode solforhold - Solcelle - Helårsvei
Prisantydning1 300 000 kr
- Omkostninger
- 33 590 kr
- Totalpris
- 1 333 590 kr
- Kommunale avg.
- 4 843 kr per år
Nøkkelinfo
- Beliggenhet
- På fjellet
- Boligtype
- Hytte
- Eieform
- Eier (Selveier)
- Internt bruksareal
- 49 m² (BRA-i)
- Bruksareal
- 49 m²
- Balkong/Terrasse
- 13 m² (TBA)
- Tomteareal
- 1 152 m² (eiet)
- Byggeår
- 2009
- Soverom
- 2
- Rom
- 3
- Energimerking
- D - Oransje
Fasiliteter
Balkong/Terrasse
Garasje/P-plass
Peis/Ildsted
Turterreng
Utsikt
Bilvei frem
Visning
Ta kontakt for å avtale visning.Husk å lese komplett salgsoppgave før visning. Bestill komplett, utskriftsvennlig salgsoppgave.
VisningspåmeldingOm boligen
Hytte med enkel standard oppført i 2009 med fin beliggenhet ca. 905 moh. på Ølneseter, et område som byr på gode turmuligheter året rundt. I sommerhalvåret er det idylliske fjellområdet tørt og fint, og ideelt for turvandring og stisykling. Bjødalsfjellet og Ølnesseterfjellet byr på mange topper på over 1000 m og har utsikt mot store deler av Valdres, Jotunheimen og Hallingdal.
Løypenettet i området er enormt og knytter seg bl. a mot Søndre og Nordre Fjellstølen, Hellebekk, Tisleidalen og Golsfjellet. Langrennsløypene finner man kun ca. 250 meter fra eiendommen.
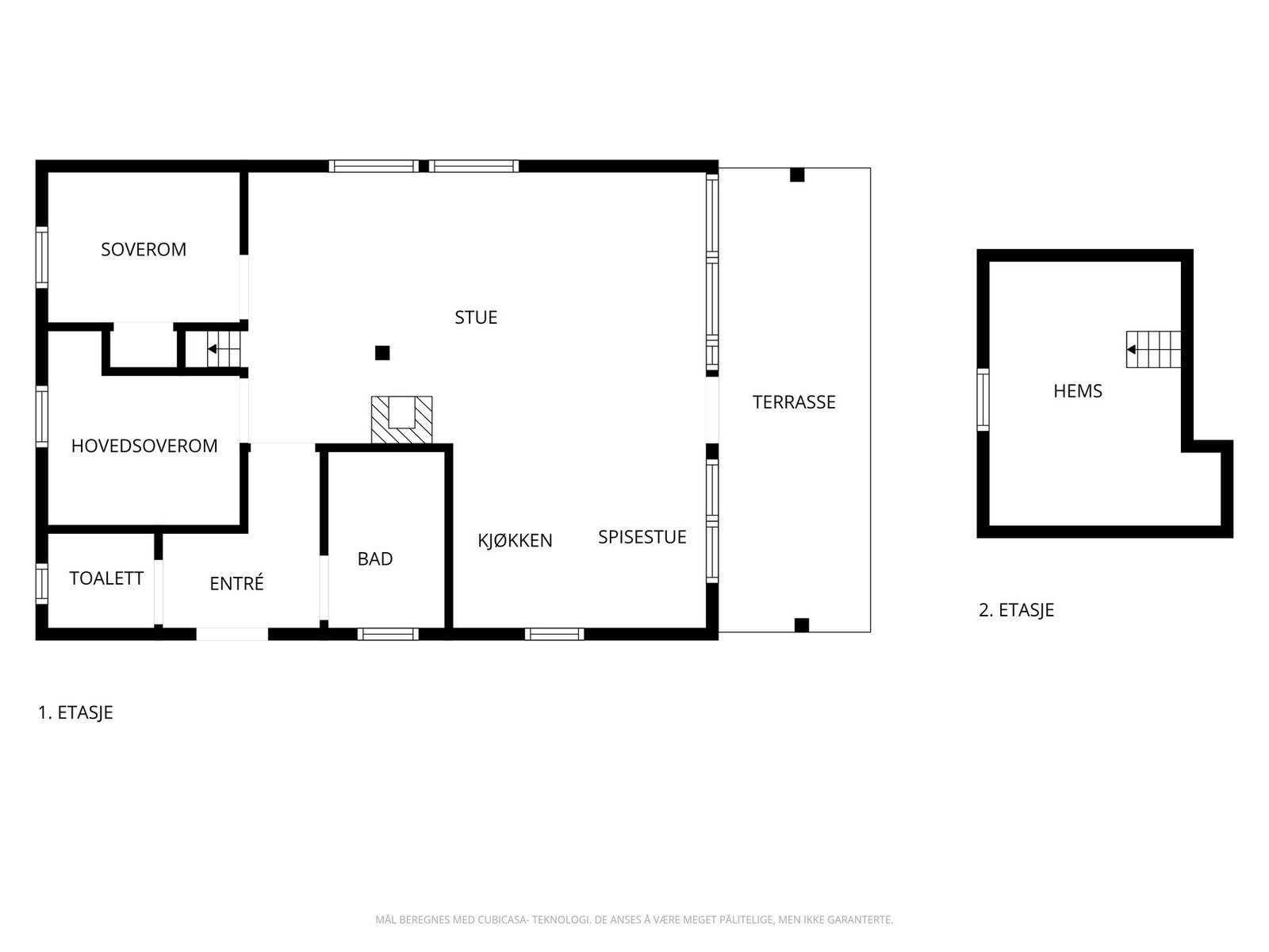
På hytten finner man to soverom og en hems med mange bruksmuligheter.
Åpen stue/kjøkkenløsning med god takhøyde og store vindusflater. Vedovn sørger for fin og lun stemning i stua. Her er også Wallas-ovn med mulighet for Ring hytta varm. Deilig å kunne komme til oppvarmet hytte.
Solcelleanlegg med batteriløsning. Aggregat for lading av batteri medfølger.
Velkommen til Ølnesetervegen 274.
Løypenettet i området er enormt og knytter seg bl. a mot Søndre og Nordre Fjellstølen, Hellebekk, Tisleidalen og Golsfjellet. Langrennsløypene finner man kun ca. 250 meter fra eiendommen.
På hytten finner man to soverom og en hems med mange bruksmuligheter.
Åpen stue/kjøkkenløsning med god takhøyde og store vindusflater. Vedovn sørger for fin og lun stemning i stua. Her er også Wallas-ovn med mulighet for Ring hytta varm. Deilig å kunne komme til oppvarmet hytte.
Solcelleanlegg med batteriløsning. Aggregat for lading av batteri medfølger.
Velkommen til Ølnesetervegen 274.
NB: Knappen for å vise hele beskrivelsen har kun en visuell effekt.
NB: Knappen for å vise hele beskrivelsen har kun en visuell effekt.
Salgsoppgaven beskriver vesentlig og lovpålagt informasjon om eiendommen
Se komplett salgsoppgaveNærområdet

PrivatMegleren Valdres
Kun det beste på dine vegne
Annonseinformasjon
| FINN-kode | 431301307 |
|---|---|
| Sist endret | 13. nov. 2025 11:26 |
| Referanse | 71251152 |
Annonsene kan være mangelfulle i forhold til lovpålagt opplysningsplikt. Før bindende avtale inngås oppfordres interessenter til å innhente komplett informasjon fra meglerforetaket, selger eller utleier.





























