Bildegalleri

Privatmegleren ved Morten Liavaag har gleden av å presentere denne sjarmerende og innbydende leilighet på Guriset.
Golsfjellet
Sjarmerende og innbydende leilighet på Guriset - Rolig og skjermet beliggenhet i bygget!
Prisantydning2 290 000 kr
- Omkostninger
- 58 340 kr
- Totalpris
- 2 348 340 kr
- Felleskost/mnd.
- 1 600 kr
Nøkkelinfo
- Beliggenhet
- På fjellet
- Boligtype
- Leilighet
- Eieform
- Eier (Selveier)
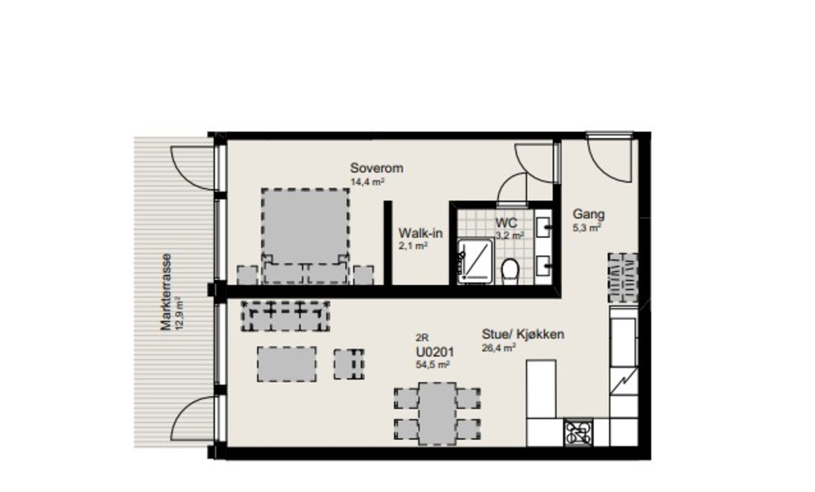
- Internt bruksareal
- 54 m² (BRA-i)
- Bruksareal
- 54 m²
- Balkong/Terrasse
- 13 m² (TBA)
- Tomteareal
- 2 635 m² (eiet)
- Byggeår
- 2022
- Soverom
- 1
- Rom
- 2
- Sengeplasser
- 2
Fasiliteter
Balkong/Terrasse
Garasje/P-plass
Turterreng
Utsikt
Alpinanlegg
Bilvei frem
Innlagt strøm
Innlagt vann
Lademulighet
Visning
Ta kontakt for å avtale visning.Husk å lese komplett salgsoppgave før visning. Bestill komplett, utskriftsvennlig salgsoppgave.
VisningspåmeldingOm boligen
Velkommen til en ny og moderne ferieleilighet på idylliske Guriset - et perfekt fristed for deg som ønsker å kombinere fjellets ro med komfort i høy klasse.
Leiligheten byr på en lun og sjarmerende atmosfære, med entre, stue, kjøkken, bad og soverom - alt gjennomført med nøye utvalgte kvalitetsmaterialer. Gulvene er kledd med herdet eikeparkett med hele 20 års garanti, mens badet er helfliset i en tidløs og elegant stil. Veggene kombinerer malt gips og beiset panel, noe som gir en harmonisk balanse mellom tradisjonell fjellhyttefølelse og moderne design. De mørke vindusrammene fremhever utsikten og skaper en vakker innramming av naturen utenfor.
Kjøkkenet er levert av Studio Sigdal og er fullt utstyrt med integrerte hvitevarer, inkludert oppvaskmaskin, komfyr, platetopp og kjøleskap med fryser. Moderne løsninger som ventilasjonsanlegg og smart varmestyring via app gjør at du alltid kan komme opp til en varm og behagelig leilighet.
Leiligheten byr på en lun og sjarmerende atmosfære, med entre, stue, kjøkken, bad og soverom - alt gjennomført med nøye utvalgte kvalitetsmaterialer. Gulvene er kledd med herdet eikeparkett med hele 20 års garanti, mens badet er helfliset i en tidløs og elegant stil. Veggene kombinerer malt gips og beiset panel, noe som gir en harmonisk balanse mellom tradisjonell fjellhyttefølelse og moderne design. De mørke vindusrammene fremhever utsikten og skaper en vakker innramming av naturen utenfor.
Kjøkkenet er levert av Studio Sigdal og er fullt utstyrt med integrerte hvitevarer, inkludert oppvaskmaskin, komfyr, platetopp og kjøleskap med fryser. Moderne løsninger som ventilasjonsanlegg og smart varmestyring via app gjør at du alltid kan komme opp til en varm og behagelig leilighet.
NB: Knappen for å vise hele beskrivelsen har kun en visuell effekt.
NB: Knappen for å vise hele beskrivelsen har kun en visuell effekt.
Salgsoppgaven beskriver vesentlig og lovpålagt informasjon om eiendommen
Se komplett salgsoppgaveNyttige lenker
Nærområdet
PrivatMegleren Hallingdal
Kun det beste på dine vegne
Annonseinformasjon
| FINN-kode | 430864177 |
|---|---|
| Sist endret | 03. des. 2025 11:34 |
| Referanse | 96251193 |
Annonsene kan være mangelfulle i forhold til lovpålagt opplysningsplikt. Før bindende avtale inngås oppfordres interessenter til å innhente komplett informasjon fra meglerforetaket, selger eller utleier.









