Bildegalleri

Privatmegleren ved Morten Liavaag har gleden av å presentere denne lekre leiligheten på Guriset!
Inaktiv
Lekker leilighet på Guriset - Flott utsikt og høye kvaliteter - 2soverom + Hems - 2 bad!
Prisantydning4 750 000 kr
- Omkostninger
- 119 840 kr
- Totalpris
- 4 869 840 kr
- Felleskost/mnd.
- 1 600 kr
Nøkkelinfo
- Beliggenhet
- På fjellet
- Boligtype
- Leilighet
- Eieform
- Selveier
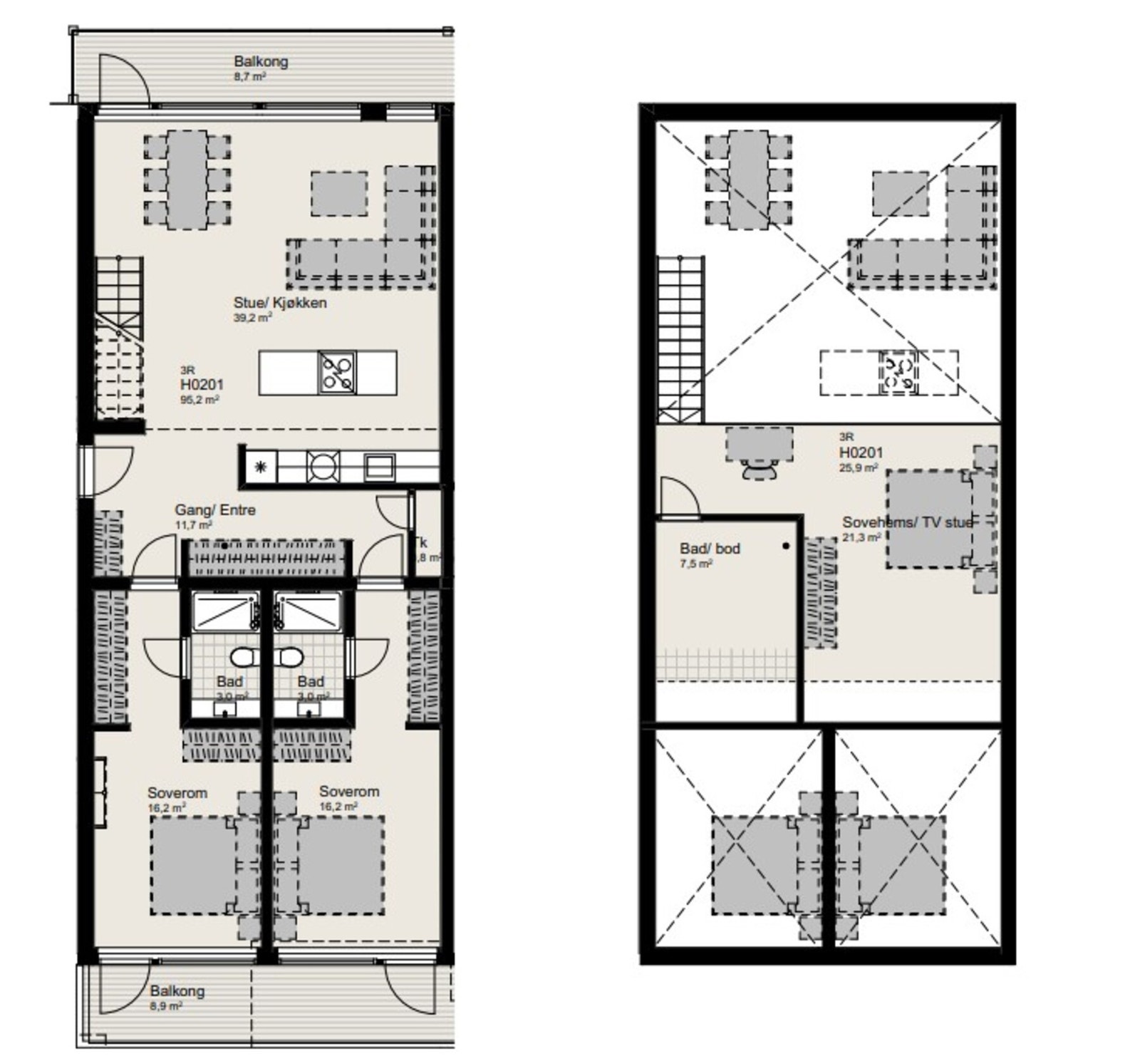
- Internt bruksareal
- 121 m² (BRA-i)
- Bruksareal
- 121 m²
- Balkong/Terrasse
- 17 m² (TBA)
- Tomteareal
- 2 635 m² (eiet)
- Byggeår
- 2022
- Soverom
- 2
- Rom
- 3
- Sengeplasser
- 6
Fasiliteter
Balkong/Terrasse
Garasje/P-plass
Turterreng
Utsikt
Alpinanlegg
Bilvei frem
Innlagt strøm
Innlagt vann
Lademulighet
Visning
Ta kontakt for å avtale visning.Husk å lese komplett salgsoppgave før visning. Bestill komplett, utskriftsvennlig salgsoppgave.
VisningspåmeldingOm boligen
Drømmer du om et sted hvor du kan senke skuldrene, nyte fjellets ro og samtidig ha moderne komfort? Da er denne leiligheten på Guriset det perfekte valget for deg.
Her får du en moderne fritidsleilighet med to soverom, romslig hems, to bad og en åpen løsning mellom stue og kjøkken. Den lune og innbydende atmosfæren understrekes av en gjennomgående høy standard på materialvalg og håndverk. Gulvene er belagt med herdet eikeparkett med 20 års garanti, og badene er helflisede i en elegant og tidløs stil. Veggene består av malt gips, som gir en harmonisk balanse mellom tradisjonell fjellhyttefølelse og moderne design. De mørke vindusrammene fremhever utsikten og rammer inn naturen på en vakker måte.
Leiligheten har et fullt utstyrt kjøkken fra Studio Sigdal, med integrerte hvitevarer som oppvaskmaskin, komfyr, platetopp og kjøleskap med fryser. Praktiske løsninger som eget ventilasjonsanlegg og smart varmestyring via app.
Her får du en moderne fritidsleilighet med to soverom, romslig hems, to bad og en åpen løsning mellom stue og kjøkken. Den lune og innbydende atmosfæren understrekes av en gjennomgående høy standard på materialvalg og håndverk. Gulvene er belagt med herdet eikeparkett med 20 års garanti, og badene er helflisede i en elegant og tidløs stil. Veggene består av malt gips, som gir en harmonisk balanse mellom tradisjonell fjellhyttefølelse og moderne design. De mørke vindusrammene fremhever utsikten og rammer inn naturen på en vakker måte.
Leiligheten har et fullt utstyrt kjøkken fra Studio Sigdal, med integrerte hvitevarer som oppvaskmaskin, komfyr, platetopp og kjøleskap med fryser. Praktiske løsninger som eget ventilasjonsanlegg og smart varmestyring via app.
NB: Knappen for å vise hele beskrivelsen har kun en visuell effekt.
NB: Knappen for å vise hele beskrivelsen har kun en visuell effekt.
Salgsoppgaven beskriver vesentlig og lovpålagt informasjon om eiendommen
Se komplett salgsoppgaveNyttige lenker
Nærområdet
PrivatMegleren Hallingdal
Kun det beste på dine vegne
Annonseinformasjon
| FINN-kode | 430863582 |
|---|---|
| Sist endret | 07. apr. 2026 18:41 |
| Referanse | 96251194 |
Annonsene kan være mangelfulle i forhold til lovpålagt opplysningsplikt. Før bindende avtale inngås oppfordres interessenter til å innhente komplett informasjon fra meglerforetaket, selger eller utleier.

























