Bildegalleri

EiendomsMegler 1v/Margareth Jensen har gleden av å presentere denne lekre fritidsboligen designet av arkitekt Tommie Wilhelmsen.
Åsane hyttegrend
Lekker, moderne fritidsbolig tegnet av arkitekt Tommie Wilhelmsen. 3(4) soverom.
Prisantydning7 250 000 kr
- Omkostninger
- 182 340 kr
- Totalpris
- 7 432 340 kr
- Kommunale avg.
- 16 859 kr per år
Nøkkelinfo
- Beliggenhet
- På fjellet
- Boligtype
- Hytte
- Eieform
- Eier (Selveier)
- Internt bruksareal
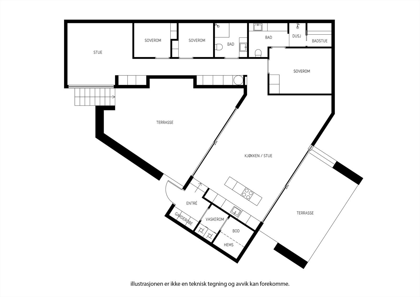
- 113 m² (BRA-i)
- Bruksareal
- 113 m²
- Balkong/Terrasse
- 72 m² (TBA)
- Tomteareal
- 638 m² (festet)
- Festeavgift
- 6 689 kr
- Byggeår
- 2012
- Soverom
- 3
- Rom
- 5
- Energimerking
- C - Oransje
Fasiliteter
Innlagt vann
Balkong/Terrasse
Bilvei frem
Bredbåndstilknytning
Garasje/P-plass
Peis/Ildsted
Rolig
Utsikt
Innlagt strøm
Turterreng
Visning
For visning ta kontakt med megler på telefon 928 06 446.
Husk å lese komplett salgsoppgave før visning. Bestill komplett, utskriftsvennlig salgsoppgave.
VisningspåmeldingOm boligen
Vi presenterer en eksklusiv fritidsbolig tegnet av anerkjente Tommie Wilhelmsen, vakkert plassert i Sauda med fantastisk utsikt til sjø og fjell. Hytta har en av områdets beste plasseringer med optimale solforhold og vindskjerming. Med store vindusflater og Schüco foldedører som åpner stuen mot uteområdet, knyttes inne- og uterom sammen. Materialene er nøye utvalgt, som bjørkefinér og betong for et moderne og stilrent uttrykk. Hytta har Kvikk-kjøkken med steinplater, peis fra Jøtul (giljotin-åpning), privat badstue med fjordutsikt og senket jacuzzi, i tillegg til skreddersydde møbler. God takhøyde, unike detaljer og lysdesign fra Concept design skaper en eksklusiv atmosfære. Praktiske løsninger inkluderer bla. varme i alle gulv, ventilasjonsanlegg, sentralstøvsuger, boder, hems. Velkommen.
NB: Knappen for å vise hele beskrivelsen har kun en visuell effekt.
NB: Knappen for å vise hele beskrivelsen har kun en visuell effekt.
Salgsoppgaven beskriver vesentlig og lovpålagt informasjon om eiendommen
Se komplett salgsoppgaveNyttige lenker
Nærområdet
EiendomsMegler 1 Sola
En del av Sparebank 1 Sør-Norge
Annonseinformasjon
| FINN-kode | 429996781 |
|---|---|
| Sist endret | 02. feb. 2026 11:41 |
| Referanse | 2210250116 |
Annonsene kan være mangelfulle i forhold til lovpålagt opplysningsplikt. Før bindende avtale inngås oppfordres interessenter til å innhente komplett informasjon fra meglerforetaket, selger eller utleier.






























































