Bildegalleri

Velkommen til Hovdeåsvegen 10
Kvisle Skog
Koselig hytte med en flott beliggenhet med tilgang på alt Trillemarka har å by på - Gode jakt og fiskemuligheter!
Prisantydning1 150 000 kr
- Omkostninger
- 29 840 kr
- Totalpris
- 1 179 840 kr
- Kommunale avg.
- 5 242 kr per år
- Formuesverdi
- 279 425 kr
- Verditakst
- 1 150 000 kr
Nøkkelinfo
- Beliggenhet
- På fjellet
- Boligtype
- Hytte
- Eieform
- Eier (Selveier)
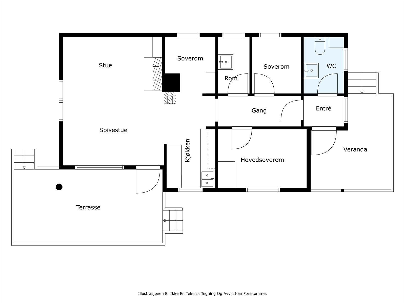
- Internt bruksareal
- 59 m² (BRA-i)
- Bruksareal
- 72 m²
- Eksternt bruksareal
- 13 m² (BRA-e)
- Balkong/Terrasse
- 27 m² (TBA)
- Tomteareal
- 1 000 m² (festet)
- Festeavgift
- 3 886 kr
- Byggeår
- 1979
- Soverom
- 2
- Rom
- 3
- Overtakelse
- Etter nærmere avtale med selger.
Fasiliteter
Balkong/Terrasse
Barnevennlig
Bilvei frem
Peis/Ildsted
Rolig
Utsikt
Fiskemulighet
Turterreng
Visning
Ta kontakt med megler for å avtale visning så finner vi gode løsninger.
Husk å lese komplett salgsoppgave før visning. Bestill komplett, utskriftsvennlig salgsoppgave.
VisningspåmeldingOm boligen
Velkommen til Hovdeåsvegen 10
Hytta ligger fint til i naturskjønne omgivelser ca. 700 moh. Hytta har en usjenert beliggenhet med gode turmuligheter rett utenfor døra, både sommer og vinter. På vinteren har du nærhet til merkede skiløyper i området og om sommeren er det gode bade- og fiskemuligheter, samt fine muligheter for fotturer i skog og mark. Det er badeplass ved Metjønn som ligger kun en liten spasertur fra hytta. Mellom de to dalførene Sigdal og Numedal ligger Trillemarka-Rollagsfjell naturreservat, som med sine 148 kvadratkilometer er Norges største skogreservat. Vergjedalen grenser til Trillemarka. Det er og gode jaktmuligheter for hytteeierne i Kvisle skog hvor alle har mulighet til å kjøpe årskort, se nærmere informajson på velforeningens hjemmeside: https://www.kvisleskog.no
Hytta ligger fint til i naturskjønne omgivelser ca. 700 moh. Hytta har en usjenert beliggenhet med gode turmuligheter rett utenfor døra, både sommer og vinter. På vinteren har du nærhet til merkede skiløyper i området og om sommeren er det gode bade- og fiskemuligheter, samt fine muligheter for fotturer i skog og mark. Det er badeplass ved Metjønn som ligger kun en liten spasertur fra hytta. Mellom de to dalførene Sigdal og Numedal ligger Trillemarka-Rollagsfjell naturreservat, som med sine 148 kvadratkilometer er Norges største skogreservat. Vergjedalen grenser til Trillemarka. Det er og gode jaktmuligheter for hytteeierne i Kvisle skog hvor alle har mulighet til å kjøpe årskort, se nærmere informajson på velforeningens hjemmeside: https://www.kvisleskog.no
NB: Knappen for å vise hele beskrivelsen har kun en visuell effekt.
NB: Knappen for å vise hele beskrivelsen har kun en visuell effekt.
Salgsoppgaven beskriver vesentlig og lovpålagt informasjon om eiendommen
Se komplett salgsoppgaveNærområdet
Aktiv Kongsberg
Annonseinformasjon
| FINN-kode | 429942809 |
|---|---|
| Sist endret | 16. okt. 2025 13:00 |
| Referanse | 1305250104 |
Annonsene kan være mangelfulle i forhold til lovpålagt opplysningsplikt. Før bindende avtale inngås oppfordres interessenter til å innhente komplett informasjon fra meglerforetaket, selger eller utleier.









































