Bildegalleri

Flott hyttetun med panoramautsikt over fjellheimen.
Unikt hyttetun øverst på Musdalssætra - Panoramautsikt fra øst til vest - Spaavdeling - Dobbel garasje
Prisantydning15 900 000 kr
- Omkostninger
- 398 590 kr
- Totalpris
- 16 298 590 kr
- Kommunale avg.
- 40 396 kr per år
Nøkkelinfo
- Beliggenhet
- På fjellet
- Boligtype
- Hytte
- Eieform
- Eier (Selveier)
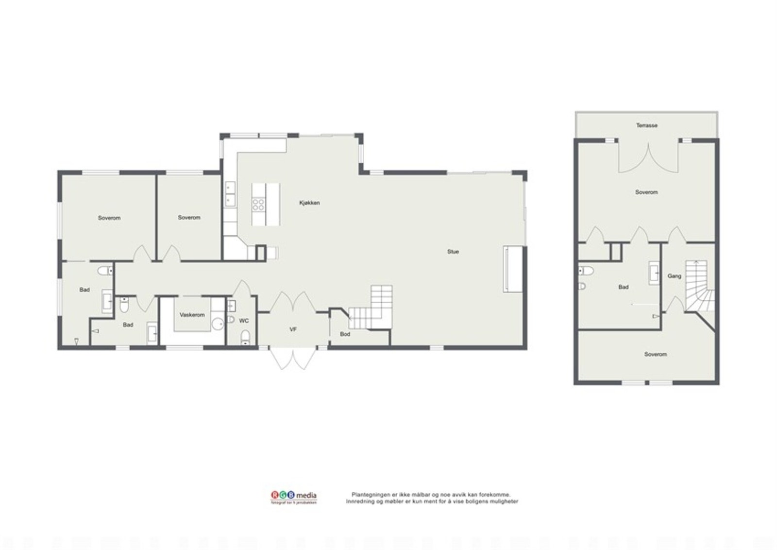
- Internt bruksareal
- 351 m² (BRA-i)
- Bruksareal
- 351 m²
- Balkong/Terrasse
- 167 m² (TBA)
- Tomteareal
- 4 108 m² (eiet)
- Byggeår
- 2010
- Soverom
- 7
- Rom
- 8
- Energimerking
- B - Lysegrønn
Fasiliteter
Balkong/Terrasse
Garasje/P-plass
Peis/Ildsted
Turterreng
Utsikt
Bilvei frem
Innlagt strøm
Visning
Ta kontakt for å avtale visning.Husk å lese komplett salgsoppgave før visning. Bestill komplett, utskriftsvennlig salgsoppgave.
VisningspåmeldingOm boligen
Unik og vesentlig påkostet fritidseiendom bestående av hovedhytte, gjestehytte/anneks med egen spaavdeling og garasje, beliggende på toppen av Musdalssæter hyttegrend. Eiendommen har høy standard på materialer og utførte arbeider. Gjennomførte bygg med moderne tekniske installasjoner, jordvarme med varme via en varmepumpe som fordeler til begge hyttene.
Hyttetundet ligger 880 m.o.h i landlige og usjenerte omgivelser midt mellom Hafjell, Kvitfjell og Skei. Hytta ligger øverst i hyttefeltet med panoramautsikt mot Hafjell i øst, Synnfjellet i vest og Skeikampen i Nord. Her har man sol fra morgen til kveld. Det er kort avstand til Tretten og Skei med dagligvarehandel, samt ca 40 km til Lillehammer med alle sentrumsfasiliteter og 205 km til Oslo.
Hyttetundet ligger 880 m.o.h i landlige og usjenerte omgivelser midt mellom Hafjell, Kvitfjell og Skei. Hytta ligger øverst i hyttefeltet med panoramautsikt mot Hafjell i øst, Synnfjellet i vest og Skeikampen i Nord. Her har man sol fra morgen til kveld. Det er kort avstand til Tretten og Skei med dagligvarehandel, samt ca 40 km til Lillehammer med alle sentrumsfasiliteter og 205 km til Oslo.
NB: Knappen for å vise hele beskrivelsen har kun en visuell effekt.
NB: Knappen for å vise hele beskrivelsen har kun en visuell effekt.
Salgsoppgaven beskriver vesentlig og lovpålagt informasjon om eiendommen
Se komplett salgsoppgaveNyttige lenker
Nærområdet

PrivatMegleren Lillehammer
Kun det beste på dine vegne
Annonseinformasjon
| FINN-kode | 429925719 |
|---|---|
| Sist endret | 20. nov. 2025 08:24 |
| Referanse | 55251357 |
Annonsene kan være mangelfulle i forhold til lovpålagt opplysningsplikt. Før bindende avtale inngås oppfordres interessenter til å innhente komplett informasjon fra meglerforetaket, selger eller utleier.





















































































