Bildegalleri

307494_DJI_20250919202432_0218_D.jpg
Hovden
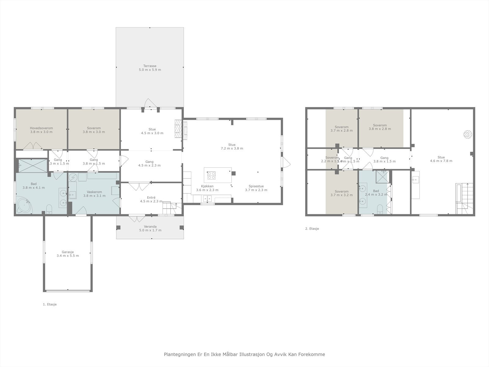
Meget eksklusiv stor familiehytte i laft - sentralt på solsiden, utsikt til fjell og vidder! Garasje. 222 kvm BRA
Prisantydning15 000 000 kr
- Omkostninger
- 390 290 kr
- Totalpris
- 15 390 290 kr
- Kommunale avg.
- 13 832 kr per år
- Formuesverdi
- 2 250 000 kr
Nøkkelinfo
- Beliggenhet
- På fjellet
- Boligtype
- Hytte
- Eieform
- Eier (Selveier)
- Internt bruksareal
- 222 m² (BRA-i)
- Bruksareal
- 222 m²
- Balkong/Terrasse
- 55 m² (TBA)
- Tomteareal
- 1 485 m² (eiet)
- Byggeår
- 2018
- Soverom
- 5
Visning
Påmelding til visning
For å delta på visning må du melde deg på ved å bruke knappen nedenfor. Fristen for påmelding er senest kl. 12.00 samme dag som visningen. Det blir ikke gjennomført visning uten registrert påmelding.
Dersom tidspunktet ikke passer, ta gjerne kontakt med megler for å avtale en alternativ visning.
Vi anbefaler at du laster ned salgsoppgaven digitalt i forkant.
Velkommen til en hyggelig visning!
Husk å lese komplett salgsoppgave før visning. Bestill komplett, utskriftsvennlig salgsoppgave.
VisningspåmeldingOm boligen
Meget eksklusiv stor familiehytte i laft - sentralt på Solsiden, utsikt til fjell og vidder! Garasje. 222 kvm BRA Gulvareal 243 kvm
Området er kjent for flott utsikt mot skitrekket, fjell og vidde. Beliggenheten gir gode solforhold hele dagen.
Hovdekleivi er et rolig område med kort vei til natur, turterreng. og skiløyper.
Gåavstand til sentrum med butikker og restauranter, badeland, skiløyper og alpinanlegg.
Om sommeren byr området på turstier, fiskevann og naturopplevelser. Bading og padling i Hegni. Elverafting i otraelva, Sykkelstier i alpinanlegget. Hovden har blitt en fin sommerdestinasjon med mange aktiviteter.
Infrastruktur og vei gjør området lett tilgjengelig året rundt. Solsiden har blitt et populært område.
Her kombineres fjellro med komfort og nærhet til aktiviteter.
Området er kjent for flott utsikt mot skitrekket, fjell og vidde. Beliggenheten gir gode solforhold hele dagen.
Hovdekleivi er et rolig område med kort vei til natur, turterreng. og skiløyper.
Gåavstand til sentrum med butikker og restauranter, badeland, skiløyper og alpinanlegg.
Om sommeren byr området på turstier, fiskevann og naturopplevelser. Bading og padling i Hegni. Elverafting i otraelva, Sykkelstier i alpinanlegget. Hovden har blitt en fin sommerdestinasjon med mange aktiviteter.
Infrastruktur og vei gjør området lett tilgjengelig året rundt. Solsiden har blitt et populært område.
Her kombineres fjellro med komfort og nærhet til aktiviteter.
NB: Knappen for å vise hele beskrivelsen har kun en visuell effekt.
NB: Knappen for å vise hele beskrivelsen har kun en visuell effekt.
Salgsoppgaven beskriver vesentlig og lovpålagt informasjon om eiendommen
Se komplett salgsoppgaveNyttige lenker
Nærområdet
Exbo Sørlandet AS
Annonseinformasjon
| FINN-kode | 428901157 |
|---|---|
| Sist endret | 26. des. 2025 17:32 |
| Referanse | 1001250355 |
Annonsene kan være mangelfulle i forhold til lovpålagt opplysningsplikt. Før bindende avtale inngås oppfordres interessenter til å innhente komplett informasjon fra meglerforetaket, selger eller utleier.






































































