Bildegalleri

Velkommen til Søre Einarsetlie 30 på Golsfjellet! Foto: 360Foto v/Frank Tolpinrud.
Einarset - En flott, nyoppført tømmerhytte med 5 soverom og 2 bad! Like ved Storefjell Høyfjellshotell! Flott utsikt!
Prisantydning6 875 000 kr
- Omkostninger
- 173 220 kr
- Totalpris
- 7 048 220 kr
Nøkkelinfo
- Beliggenhet
- På fjellet
- Boligtype
- Hytte
- Eieform
- Eier (Selveier)
- Internt bruksareal
- 145 m² (BRA-i)
- Bruksareal
- 151 m²
- Eksternt bruksareal
- 6 m² (BRA-e)
- Tomteareal
- 2 118 m² (eiet)
- Byggeår
- 2024
- Soverom
- 5
- Rom
- 6
- Energimerking
- B - Gul
Fasiliteter
Balkong/Terrasse
Garasje/P-plass
Fiskemulighet
Peis/Ildsted
Turterreng
Utsikt
Aircondition
Alpinanlegg
Bilvei frem
Innlagt strøm
Innlagt vann
Visning
Ta kontakt for å avtale visning.Husk å lese komplett salgsoppgave før visning. Bestill komplett, utskriftsvennlig salgsoppgave.
VisningspåmeldingOm boligen
I Einarset Hyttegrend finner du denne nyoppførte tømmerhytta! Fra hytteveggen er det direkte adkomst til fjelleventyret året rundt, og hytta ligger like ved Storefjell Høyfjellshotell. Hytta ligger flott til med vid og fin utsikt utover Golsfjellet!
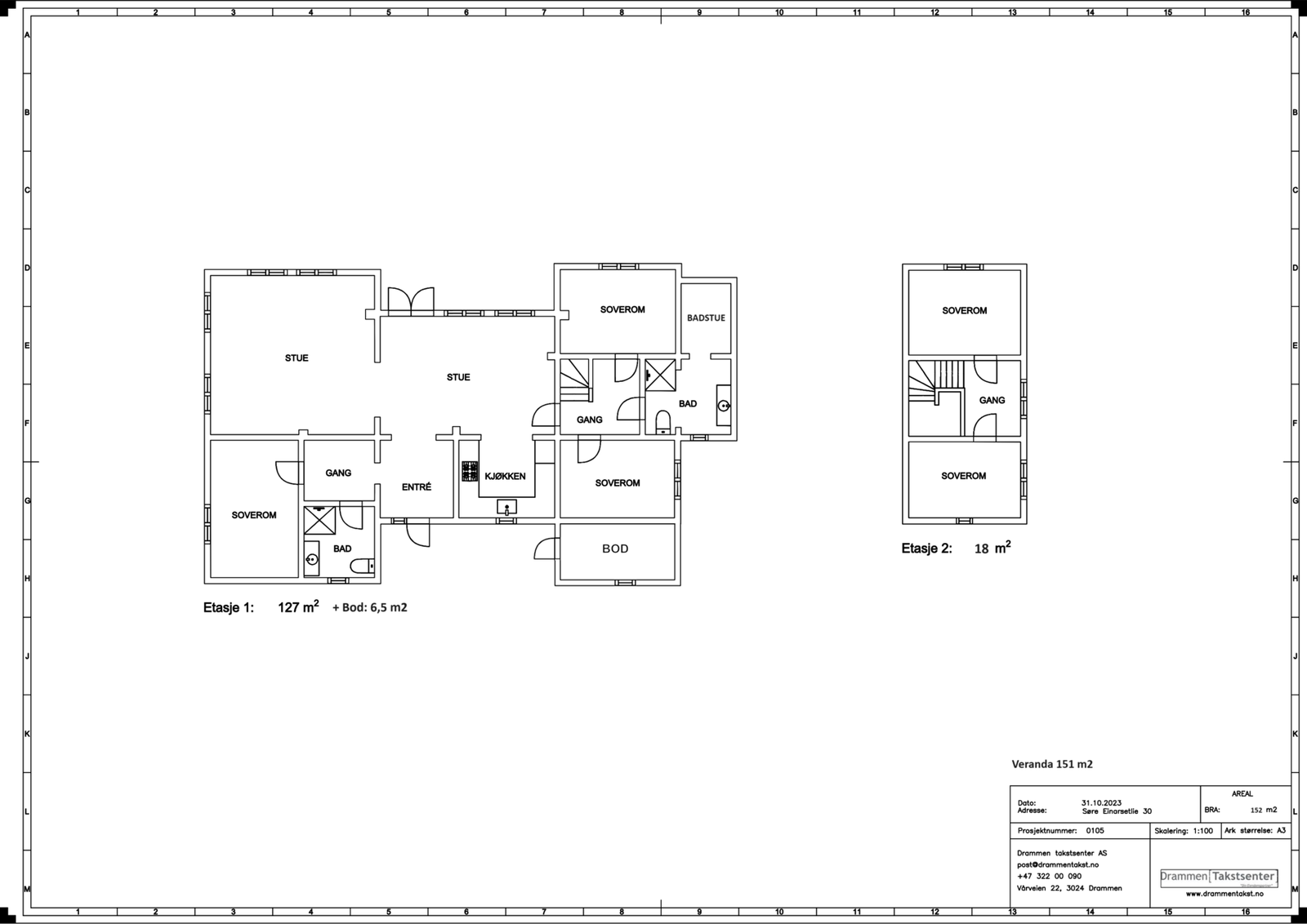
Hytta har en god planløsning, går over 2 etasjer og inneholder flislagt entré med inngang til ett av hyttas soverom samt bad. Videre kommer man inn i et stort oppholdsrom med kjøkken, spisestue og stue. Fra kjøkkenet kommer man inn i en soveromsfløy med to soverom. Videre er det hyttas hovedbad med opplegg for vaskemaskin og mulighet for badstue eller bod. I 2. etasje er det to soverom. Teknisk rom/bod i tilknytning til inngangspartiet.
Velkommen til fjells og på visning!
Hytta har en god planløsning, går over 2 etasjer og inneholder flislagt entré med inngang til ett av hyttas soverom samt bad. Videre kommer man inn i et stort oppholdsrom med kjøkken, spisestue og stue. Fra kjøkkenet kommer man inn i en soveromsfløy med to soverom. Videre er det hyttas hovedbad med opplegg for vaskemaskin og mulighet for badstue eller bod. I 2. etasje er det to soverom. Teknisk rom/bod i tilknytning til inngangspartiet.
Velkommen til fjells og på visning!
NB: Knappen for å vise hele beskrivelsen har kun en visuell effekt.
NB: Knappen for å vise hele beskrivelsen har kun en visuell effekt.
Salgsoppgaven beskriver vesentlig og lovpålagt informasjon om eiendommen
Se komplett salgsoppgaveNyttige lenker
Nærområdet
EIE Fjellmegleren Gol / Nesbyen / Flå
Annonseinformasjon
| FINN-kode | 428635568 |
|---|---|
| Sist endret | 13. jan. 2026 12:02 |
| Referanse | 28250047 |
Annonsene kan være mangelfulle i forhold til lovpålagt opplysningsplikt. Før bindende avtale inngås oppfordres interessenter til å innhente komplett informasjon fra meglerforetaket, selger eller utleier.





































