Bildegalleri

Velkommen til Gramstølen 87 presentert av Eiendomsmegler Norge v/ Kenneth Bjørk.
Flott og moderne hytte frå 2021 omkransa av majestetiske fjell og spektakulær natur.
Prisantydning3 650 000 kr
- Omkostninger
- 109 840 kr
- Totalpris
- 3 759 840 kr
- Kommunale avg.
- 2 668 kr per år
- Formuesverdi
- 600 000 kr
- Verditakst
- 3 650 000 kr
Nøkkelinfo
- Beliggenhet
- På fjellet
- Boligtype
- Hytte
- Eieform
- Selveier
- Internt bruksareal
- 109 m² (BRA-i)
- Bruksareal
- 109 m²
- Balkong/Terrasse
- 38 m² (TBA)
- Tomteareal
- 1 074 m² (eiet)
- Byggeår
- 2021
- Soverom
- 2
- Energimerking
- G - Rød
Visning
Velkommen til visning! Husk å melde deg på visningen ved å trykke på knappen visningspåmelding under, eller ta kontakt med megler for å gjøre en avtale. Visninger uten påmeldte blir avlyst.
Husk å lese komplett salgsoppgave før visning. Bestill komplett, utskriftsvennlig salgsoppgave.
VisningspåmeldingOm boligen
Velkomen til Gramstølen 87!
Ein nyare og flott fritidseigedom med fin beliggenheit på Gramstølen i Lærdal. Eigedomen ligg sørvendt i solrikt område med fri og fin utsikt over dei omkringliggande fjellområda. Plasseringa er svært attraktiv med si sentrale beliggenheit langs E16 midt mellom Oslo og Bergen og enkel tilkomst heile året. Frå hytta har du umiddelbar tilgang til flotte turområde både sommar og vinter, med flott turterreng rett utanfor døra og kort veg til Tyin-Filefjell skisenter.
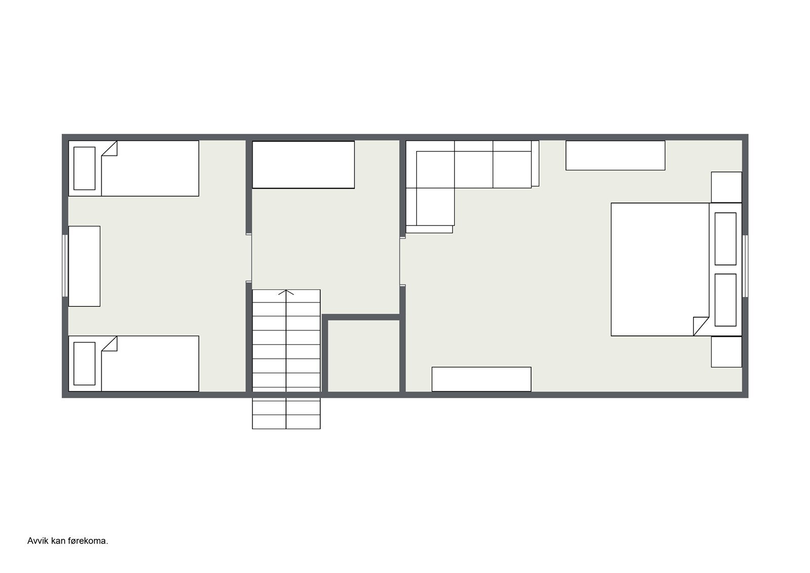
Hytta går over to plan med ei arealeffektiv planløysing og inneheld blant anna stove og kjøkken i delvis open løysing, to gode soverom og bad med tilkomst til badstue i 1. etasje. Enkel tilkomst og gode parkeringstilhøve på eigedomen.
Velkomen til visning!
Ein nyare og flott fritidseigedom med fin beliggenheit på Gramstølen i Lærdal. Eigedomen ligg sørvendt i solrikt område med fri og fin utsikt over dei omkringliggande fjellområda. Plasseringa er svært attraktiv med si sentrale beliggenheit langs E16 midt mellom Oslo og Bergen og enkel tilkomst heile året. Frå hytta har du umiddelbar tilgang til flotte turområde både sommar og vinter, med flott turterreng rett utanfor døra og kort veg til Tyin-Filefjell skisenter.
Hytta går over to plan med ei arealeffektiv planløysing og inneheld blant anna stove og kjøkken i delvis open løysing, to gode soverom og bad med tilkomst til badstue i 1. etasje. Enkel tilkomst og gode parkeringstilhøve på eigedomen.
Velkomen til visning!
NB: Knappen for å vise hele beskrivelsen har kun en visuell effekt.
NB: Knappen for å vise hele beskrivelsen har kun en visuell effekt.
Salgsoppgaven beskriver vesentlig og lovpålagt informasjon om eiendommen
Se komplett salgsoppgaveNyttige lenker
Nærområdet
Eiendomsmegler Norge Sogndal
Best der du bor
Annonseinformasjon
| FINN-kode | 426700738 |
|---|---|
| Sist endret | 23. feb. 2026 06:40 |
| Referanse | 17250060 |
Annonsene kan være mangelfulle i forhold til lovpålagt opplysningsplikt. Før bindende avtale inngås oppfordres interessenter til å innhente komplett informasjon fra meglerforetaket, selger eller utleier.





































