Bildegalleri

Krogsveen v/Vindum har gleden av å presentere Vesletjønnvegen 26!
Vrådal Panorama
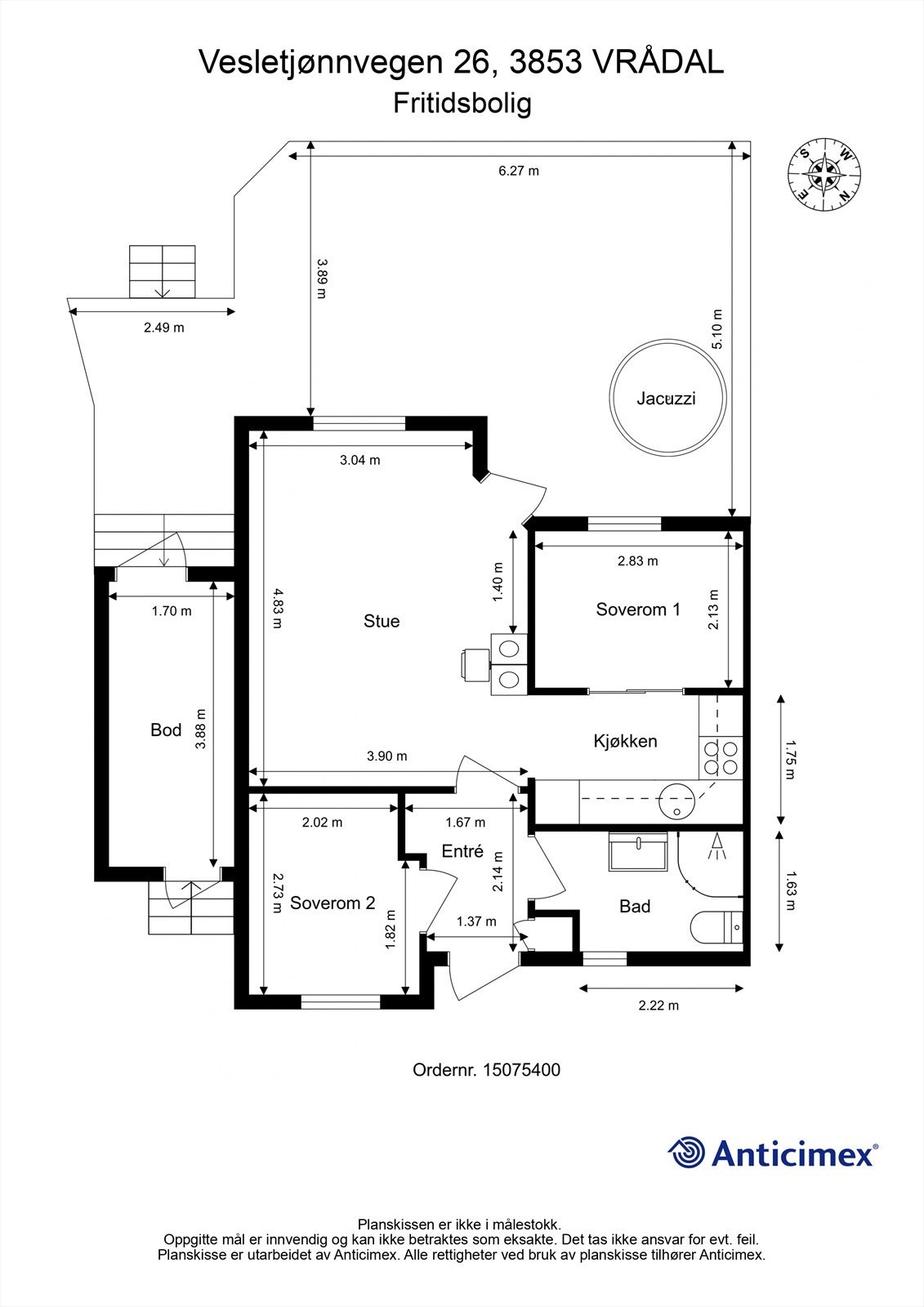
Delikat og koselig innredet hytteleilighet - Stor veranda (38 kvm) med boblebad, svært gode solforhold og utsikt
Prisantydning1 690 000 kr
- Omkostninger
- 53 290 kr
- Totalpris
- 1 743 290 kr
- Kommunale avg.
- 13 211 kr per år
- Felleskost/mnd.
- 500 kr
- Formuesverdi
- 484 410 kr
Nøkkelinfo
- Beliggenhet
- På fjellet
- Boligtype
- Hytte
- Eieform
- Eier (Selveier)
- Internt bruksareal
- 46 m² (BRA-i)
- Bruksareal
- 56 m²
- Eksternt bruksareal
- 10 m² (BRA-e)
- Balkong/Terrasse
- 38 m² (TBA)
- Tomteareal
- 996 m² (eiet)
- Byggeår
- 2005
- Soverom
- 2
- Rom
- 1
- Energimerking
- D - Oransje
Fasiliteter
Innlagt vann
Alpinanlegg
Balkong/Terrasse
Barnevennlig
Bilvei frem
Garasje/P-plass
Golfbane
Peis/Ildsted
Rolig
Utsikt
Bademulighet
Fiskemulighet
Innlagt strøm
Offentlig vann/kloakk
Turterreng
Lademulighet
Visning
For å delta på visning, ber vi om at du melder deg på. Da sikrer vi at du får nødvendig informasjon og at det er satt av tilstrekkelig med tid. Kontakt megler dersom annet tidspunkt ønskes. Husk å lese salgsoppgaven før visningen, så du stiller forberedt. NB. Visning utgår dersom det ikke er noen påmeldte.
Ta kontakt med megler for avtale om privatvisning.
Ønsker du kun å bli holdt orientert, kan du fra eiendommens hjemmeside få varsel om solgtpris, eller kontakte megler.
VisningspåmeldingOm boligen
Krogsveen v/Vindum presenterer Vesletjønnvegen 26 i vrådal.
- Koselig og lettholdt fritidsleilighet beliggende i 1. etasje
- Her er en god romløsning med to soverom, bad og stue/kjøkken i åpen løsning
- Smakfullt innredet med tidløse, varme fargevalg og en praktisk romløsning
- 2 boder slik at man har god lagringsplass
- Gode muligheter for utleie
- Stor veranda på ca 38 kvm med gode sol- og utsiktsforhold. Boblebad medfølger!
- Ski in/Ski out
- Sentralt beliggende på området med nærhet til ski, tur, bading, lekeområde og golf
- Koselig og lettholdt fritidsleilighet beliggende i 1. etasje
- Her er en god romløsning med to soverom, bad og stue/kjøkken i åpen løsning
- Smakfullt innredet med tidløse, varme fargevalg og en praktisk romløsning
- 2 boder slik at man har god lagringsplass
- Gode muligheter for utleie
- Stor veranda på ca 38 kvm med gode sol- og utsiktsforhold. Boblebad medfølger!
- Ski in/Ski out
- Sentralt beliggende på området med nærhet til ski, tur, bading, lekeområde og golf
NB: Knappen for å vise hele beskrivelsen har kun en visuell effekt.
NB: Knappen for å vise hele beskrivelsen har kun en visuell effekt.
Salgsoppgaven beskriver vesentlig og lovpålagt informasjon om eiendommen
Se komplett salgsoppgaveNyttige lenker
Nærområdet
Krogsveen Sandefjord
Verdien av en god megler.
Annonseinformasjon
| FINN-kode | 426563156 |
|---|---|
| Sist endret | 09. jan. 2026 06:24 |
| Referanse | KR22.25340 |
Annonsene kan være mangelfulle i forhold til lovpålagt opplysningsplikt. Før bindende avtale inngås oppfordres interessenter til å innhente komplett informasjon fra meglerforetaket, selger eller utleier.







































