Bildegalleri

Prosjektert Ålhytte og Tomt H3 Reinsjøfjell - levering sommer 2026
- Omkostninger
- 27 500 kr
- Totalpris
- 5 257 500 kr
Nøkkelinfo
- Beliggenhet
- På fjellet
- Boligtype
- Hytte
- Eieform
- Eier (Selveier)
- P-plasser
- 2
- Tomt
- Eiet
- Bruttoareal
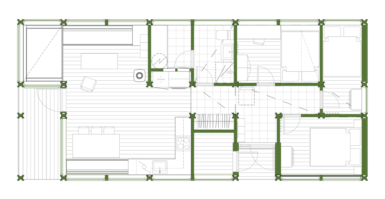
- 92 m²
- Byggeår
- 2025
- Soverom
- 3
- Sengeplasser
- 7
- Meter over havet
- 850
Fasiliteter
Visning
Ta kontakt for å avtale visning.Om eiendommen
Beliggenhet
Reinsjøfjell ligger på fjellet mellom Hallingdal og Eggedal / Sigdal nær Haglebu. Det er et godt utgangspunkt for turer hele året.
Flotte skiløyper bringer deg østover mot Haglebu, Gråfjell, Høgevarde, Tempelseter og Norefjell. Vestover mot Reinsjøen og Hallingnatten. Haglebu skisenter, med flere nedfarter, varmestue og kafeteria ligger kun en 5 minutters biltur unna.
Generelt
Prøvebo:
Tilsvarende hytte har vi som prøvebo hytte på Ål i Hallingdal. Kontakt selger for å bli kjent og teste denne hytte modellen.
https://www.aalhytta.no/provebohyttene/leveldaasen-ny
Tomt, grunnarbeid og fundamentering:
Tomt H3 er på ca 1200 m2, har helårsvei, vann, avløp og strøm og leveres med parkeringsplass for 2 biler. Åpen tomt med flott utsikt og gode solforhold. Hytta er fundamentert på støpt plate.
Hytteleveransen:
Prosjektert Ålhytte med 3 soverom, 7 sengeplasser, åpen stue/kjøkkenløsning, hems, stort bad med dusjnisje. Innendørs bod samt bod utendørs. Terrasse, uthus og interiør inngår ikke i dette prospekt, men komplett Ålhytteinteriør leveres hvis ønskelig.
- Se også Ålhytta sin hjemmeside, for flere hytte løsninger. www.aalhytta.no/hytter
Strøm, vann og avløp.
El og VVS leveres komplett med rør og avløp, dusj, toalett, servanter og armatur. El-installasjoner inkluderer hovedinntak, hovedtavle, alle nødvendige kurser og jordsikringer, samt 3 varmekabler.
Prisantydning er basert på indeks pr. juli 2025.
Ålhytta tilbyr sine potensielle kunder å prøvebo hyttene sine: www.aalhytta.no/provebo
Adkomst/Tomteforhold
Innhold
Ålhytteinteriøret oppsto i skjæringspunktet mellom plassutnyttelse og estetikk. Tegnet og utviklet for å utnytte plassen optimalt, samtidig som man ivaretar hyttas rene linjer. Her er ingenting overlatt til tilfeldighetene.
Sitteplasser, enten det er faste sofabenker eller løse stoler, gir siktlinjer i tråd med vinduenes format og plassering. Skuffer under sengene sørger for nødvendig lagringsplass.
Ålhytta kjøkken
Tegnet og utviklet for å utnytte plassen optimalt. Kan leveres med ulike overflatebehandlinger.
Ålhytta stue
Ålhytteinteriøret er tegnet og utviklet for å utnytte plassen optimalt. Sitteplasser enten det er faste sofabenker eller løse stoler, gir siktlinjer i tråd med vinduenes format og plassering.
Soverommene
I Ålhytta har du alle muligheter for å få en god natt søvn. Sengene er tegnet og utviklet for å utnytte plassen optimalt. Trenger du soveplass til gjestene kan en praktisk nisjeseng være løsninger. Andre løsninger er familiekøye, køyeseng, veggfast dobbeltseng med skuffer eller vanlig dobbeltseng. Vi nevner også Kube hyllene som er perfekte nattbord.
Små detaljer og små justeringer gir smarte løsninger.
Standard
Hvorfor Ålhytta?
Ålhytta produseres på Ål i Halllingdal. Interiøret til Ålhytta er norskprodusert.
Ålhyttas stramme arkitektur, slanke hyttekropp og lave mønehøyde gir en dempet hytte. Ålhytter skriker ikke etter oppmerksomhet, men oppsummerer: Hvorfor bygge stort når man kan bygge smart? . Et redusert behov for areal og høyde gir en hytte som tar hensyn til naturen vi bygger i.
Og akkurat det er vel poenget? Vi reiser på hytta for å komme nærmere naturen, ikke distansere oss fra den.
Systugu
I tillegg har Ålhytta en egen systue, Systugu, som produserer alt av madrasser, seilduksgardiner, puter til stoler, sofa og krakk til Ålhytta.
Les mer om Systugu på www.aalsystugu.no
Ålhytta ble definert som moderne arkitektur da den kom i 1966 og står trygt plassert på samme sted i dag, snart 60 år senere.
Ta kontakt med megler for komplett informasjon
Nærområdet
Ålhytta
Annonsene kan være mangelfulle i forhold til lovpålagt opplysningsplikt. Før bindende avtale inngås oppfordres interessenter til å innhente komplett informasjon fra meglerforetaket, selger eller utleier.

































