Bildegalleri

Hjem Eiendomsmegling v/ eiendomsmegler Robin I. Martinsen presenterer Skogsbærveien 4-6!
Målselv fjellandsby
Romslig fjellhytte i klassiske utførelse på hele 121 BRA | Ekstra tomt inkludert! | 126m2 terrasser | Badstu | Vaskerom
Prisantydning3 990 000 kr
- Omkostninger
- 101 100 kr
- Totalpris
- 4 091 100 kr
- Kommunale avg.
- 16 499 kr per år
Nøkkelinfo
- Beliggenhet
- På fjellet
- Boligtype
- Hytte
- Eieform
- Eier (Selveier)
- Internt bruksareal
- 106 m² (BRA-i)
- Bruksareal
- 121 m²
- Eksternt bruksareal
- 15 m² (BRA-e)
- Balkong/Terrasse
- 126 m² (TBA)
- Tomteareal
- 1 885 m² (eiet)
- Byggeår
- 2009
- Soverom
- 4
- Rom
- 6
- Energimerking
- D - Oransje
- Overtakelse
- Eiendommen overleveres etter avtale. Spesifiser ønsket overtakelsesdato i kjøpetilbud.
Fasiliteter
Innlagt vann
Alpinanlegg
Balkong/Terrasse
Barnevennlig
Bredbåndstilknytning
Peis/Ildsted
Rolig
Utsikt
Innlagt strøm
Offentlig vann/kloakk
Turterreng
Visning
Vi ønsker visninger med høyest mulig servicegrad og forutsigbarhet. Derfor har vi alltid påmelding til visning. Meld deg på visning via lenken Visningspåmelding eller kontakt meg på tlf. eller e-post for å avtale tidspunkt. Visninger uten påmeldte deltagere vil bli avlyst.
Husk å lese komplett salgsoppgave før visning. Bestill komplett, utskriftsvennlig salgsoppgave.
VisningspåmeldingOm boligen
Innholdsrik og stor fritidsbolig beliggende sentralt i hyttefeltet. Nabo til ski-inn og ski-ut. Fin utsikt og svært gode solforhold.
Salget inkluderer også Skogsbærveien 4 (gnr.25 bnr. 97) og fremtidig eier kan selv velge om den skal selges, bebygges eller bare være del av egen eiendom.
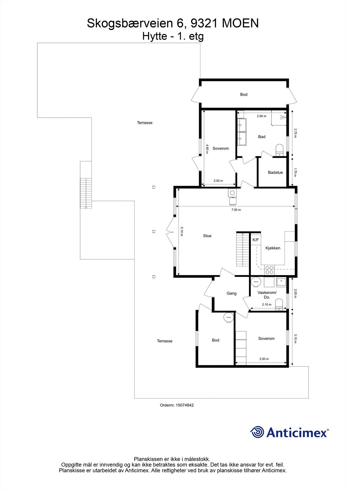
Boligen inneholder blant annet 2 stuer, ene på loft med en magisk utsikt. I tillegg har den badstue, vaskerom, 4 soverom og et romslig uteområde i flere nivåer. Romslige boder.
Gjennomgående god standard, hovedsakelig fra byggeår 2008. Gulvvarme i alle rom 1. etasje, bortsett fra soverommene. Selvsagt vedovn montert i stue.
Kjøkken og innredninger for øvrig er i moderne og praktisk utførelse. God planløsning for en middels til større familie. Her er det fint å være flere sammen på hytta!
Meld på visnin
Salget inkluderer også Skogsbærveien 4 (gnr.25 bnr. 97) og fremtidig eier kan selv velge om den skal selges, bebygges eller bare være del av egen eiendom.
Boligen inneholder blant annet 2 stuer, ene på loft med en magisk utsikt. I tillegg har den badstue, vaskerom, 4 soverom og et romslig uteområde i flere nivåer. Romslige boder.
Gjennomgående god standard, hovedsakelig fra byggeår 2008. Gulvvarme i alle rom 1. etasje, bortsett fra soverommene. Selvsagt vedovn montert i stue.
Kjøkken og innredninger for øvrig er i moderne og praktisk utførelse. God planløsning for en middels til større familie. Her er det fint å være flere sammen på hytta!
Meld på visnin
NB: Knappen for å vise hele beskrivelsen har kun en visuell effekt.
NB: Knappen for å vise hele beskrivelsen har kun en visuell effekt.
Salgsoppgaven beskriver vesentlig og lovpålagt informasjon om eiendommen
Se komplett salgsoppgaveNærområdet
Hjem Eiendomsmegling
Annonseinformasjon
| FINN-kode | 425433399 |
|---|---|
| Sist endret | 25. okt. 2025 09:18 |
| Referanse | 1-0263/25 |
Annonsene kan være mangelfulle i forhold til lovpålagt opplysningsplikt. Før bindende avtale inngås oppfordres interessenter til å innhente komplett informasjon fra meglerforetaket, selger eller utleier.
















































