Bildegalleri

EiendomsMegler 1 har gleden av å presentere en koselig tømmerhytte på Fjellsætra! Foto: Lillys Studio (Lill Kristin Vold)
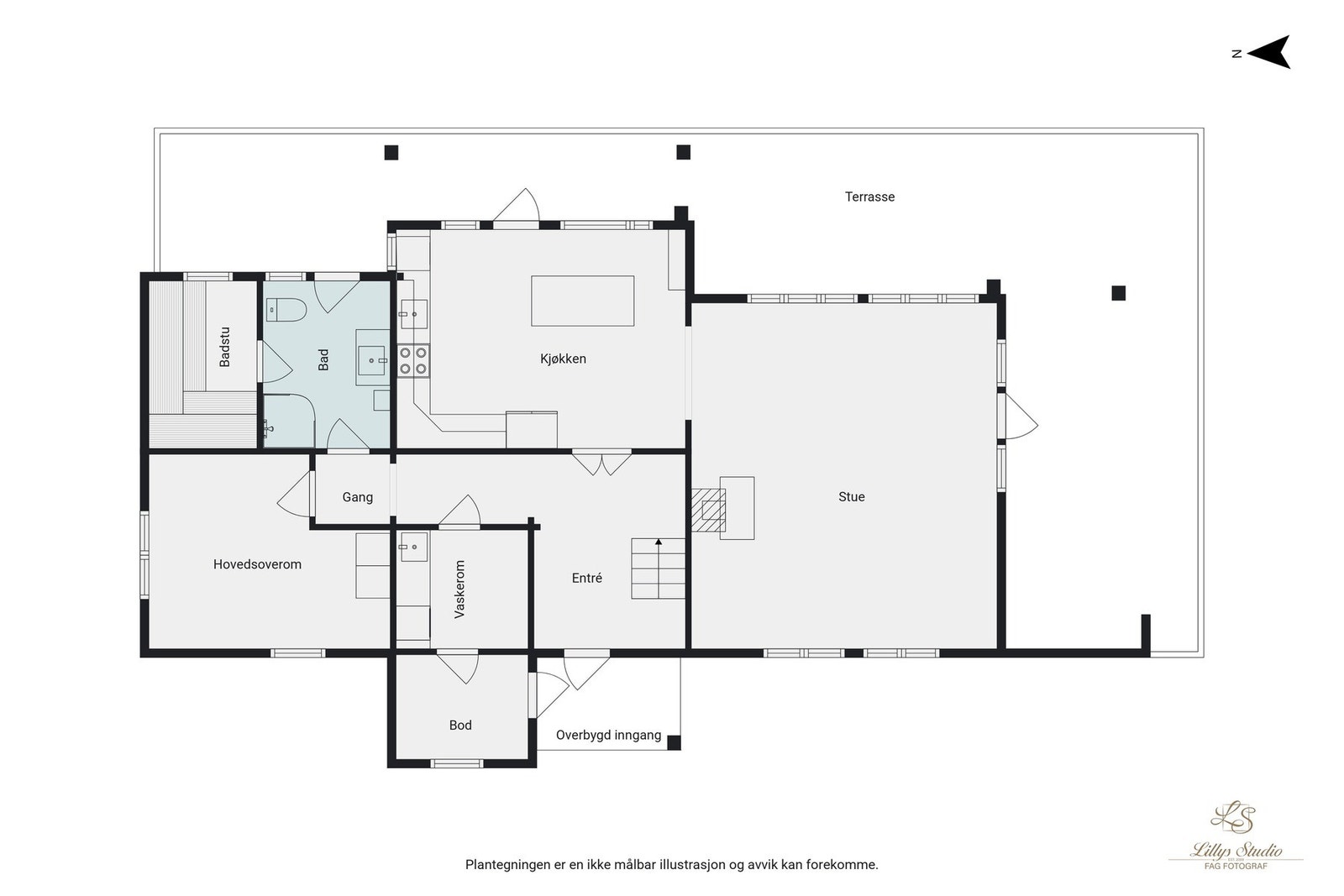
Flott tømmerhytte fra 2013 på Fjellsætra - flott beliggenhet i ved trekket - Badstue - 2 bad
Prisantydning5 300 000 kr
- Omkostninger
- 133 590 kr
- Totalpris
- 5 433 590 kr
- Kommunale avg.
- 3 876 kr per år
- Eiendomsskatt
- 4 990 kr per år
- Formuesverdi
- 1 650 000 kr
- Verditakst
- 5 500 000 kr
Nøkkelinfo
- Boligtype
- Hytte
- Eieform
- Eier (Selveier)
- Internt bruksareal
- 142 m² (BRA-i)
- Bruksareal
- 142 m²
- Balkong/Terrasse
- 68 m² (TBA)
- Tomteareal
- 1 277 m² (eiet)
- Byggeår
- 2013
- Soverom
- 3
- Rom
- 5
- Sengeplasser
- 6
- Energimerking
- D - Oransje
Fasiliteter
Balkong/Terrasse
Garasje/P-plass
Peis/Ildsted
Turterreng
Utsikt
Bilvei frem
Innlagt strøm
Innlagt vann
Visning
Ta kontakt for å avtale visning.Husk å lese komplett salgsoppgave før visning. Bestill komplett, utskriftsvennlig salgsoppgave.
VisningspåmeldingOm boligen
Velkommen til denne trivelige fritidsboligen oppført i 2013! Hytta er bygget i tradisjonell tømmerstil og strekker seg over to plan med 1. etasje og loft.
I første etasje finner du en romslig stue og kjøkken med utgang til en stor terrasse på ca. 61 m² - perfekt for hyggelige sammenkomster og rolige stunder ute. Fra loftstuen er det utgang til en koselig veranda på ca. 7 m², hvor du kan nyte utsikten og frisk fjelluft.
Dette er et sted som passer godt for deg som ønsker en aktiv fritidsbolig med ski og natur i fokus - velkommen til en hyggelig visning!
I første etasje finner du en romslig stue og kjøkken med utgang til en stor terrasse på ca. 61 m² - perfekt for hyggelige sammenkomster og rolige stunder ute. Fra loftstuen er det utgang til en koselig veranda på ca. 7 m², hvor du kan nyte utsikten og frisk fjelluft.
Dette er et sted som passer godt for deg som ønsker en aktiv fritidsbolig med ski og natur i fokus - velkommen til en hyggelig visning!
NB: Knappen for å vise hele beskrivelsen har kun en visuell effekt.
NB: Knappen for å vise hele beskrivelsen har kun en visuell effekt.
Salgsoppgaven beskriver vesentlig og lovpålagt informasjon om eiendommen
Se komplett salgsoppgaveNærområdet
EiendomsMegler 1 Ålesund, St Olavs Plass
Vi loser deg trygt gjennom hele boligsalget
Annonseinformasjon
| FINN-kode | 425134537 |
|---|---|
| Sist endret | 18. jan. 2026 08:01 |
| Referanse | 16250168 |
Annonsene kan være mangelfulle i forhold til lovpålagt opplysningsplikt. Før bindende avtale inngås oppfordres interessenter til å innhente komplett informasjon fra meglerforetaket, selger eller utleier.





























