Bildegalleri

Hjem Eiendomsmegling v/ eiendomsmegler Robin I Martinsen presenterer Blokkebærveien 10!
Målselv fjellandsby
Flott nyere familiehytte | Nydelig utsikt | God soveplass kapasitet | God standard
Prisantydning3 950 000 kr
- Omkostninger
- 100 100 kr
- Totalpris
- 4 050 100 kr
- Kommunale avg.
- 17 836 kr per år
Nøkkelinfo
- Beliggenhet
- På fjellet
- Boligtype
- Hytte
- Eieform
- Eier (Selveier)
- Internt bruksareal
- 87 m² (BRA-i)
- Bruksareal
- 91 m²
- Eksternt bruksareal
- 4 m² (BRA-e)
- Balkong/Terrasse
- 8 m² (TBA)
- Tomteareal
- 966 m² (eiet)
- Byggeår
- 2024
- Soverom
- 4
- Rom
- 5
Fasiliteter
Innlagt vann
Alpinanlegg
Balkong/Terrasse
Barnevennlig
Bilvei frem
Peis/Ildsted
Rolig
Utsikt
Innlagt strøm
Offentlig vann/kloakk
Turterreng
Visning
Vi ønsker visninger med høyest mulig servicegrad og forutsigbarhet. Derfor har vi alltid påmelding til visning. Meld deg på visning via lenken Visningspåmelding eller kontakt meg på tlf. eller e-post for å avtale tidspunkt.
Husk å lese komplett salgsoppgave før visning. Bestill komplett, utskriftsvennlig salgsoppgave.
VisningspåmeldingOm boligen
Meget pen hytte, forholdsvis nyoppført - ferdigattest 2024!
Nydelig beliggenhet, med svært god utsikt i et rolig hjørne av fjellandsbyen. Den ligger nord i feltet med noen få naboer rundt og mulighet for Ski-ut til turløypa.
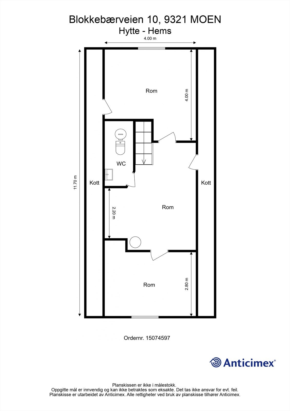
God plass til familien. Praktisk planløsning med romslig stue og kjøkkendel. Gjennomgående god standard. Påkostet kjøkken med god plass på benk og i skap. Gulvfliser i skifer, gjennomgående i baderom og entre. Sorte detaljer og fine innredninger på baderom som har utgang til mark. Ekstra toalett, som er praktisk å ha når det er flere på hytta. Godt med lagringsplass i to boder og knekott. Hems har rikelig med soveplasser i to rom, dog er det ikke målbart areal grunnet takhøyde.
Uteområde har et flott potensial for å sette sitt preg!
Ta kontakt for visning!
Nydelig beliggenhet, med svært god utsikt i et rolig hjørne av fjellandsbyen. Den ligger nord i feltet med noen få naboer rundt og mulighet for Ski-ut til turløypa.
God plass til familien. Praktisk planløsning med romslig stue og kjøkkendel. Gjennomgående god standard. Påkostet kjøkken med god plass på benk og i skap. Gulvfliser i skifer, gjennomgående i baderom og entre. Sorte detaljer og fine innredninger på baderom som har utgang til mark. Ekstra toalett, som er praktisk å ha når det er flere på hytta. Godt med lagringsplass i to boder og knekott. Hems har rikelig med soveplasser i to rom, dog er det ikke målbart areal grunnet takhøyde.
Uteområde har et flott potensial for å sette sitt preg!
Ta kontakt for visning!
NB: Knappen for å vise hele beskrivelsen har kun en visuell effekt.
NB: Knappen for å vise hele beskrivelsen har kun en visuell effekt.
Salgsoppgaven beskriver vesentlig og lovpålagt informasjon om eiendommen
Se komplett salgsoppgaveNærområdet
Hjem Eiendomsmegling
Annonseinformasjon
| FINN-kode | 425129845 |
|---|---|
| Sist endret | 20. jan. 2026 08:33 |
| Referanse | 1-0254/25 |
Annonsene kan være mangelfulle i forhold til lovpålagt opplysningsplikt. Før bindende avtale inngås oppfordres interessenter til å innhente komplett informasjon fra meglerforetaket, selger eller utleier.












































