Bildegalleri

Velkommen til Skvaldra 67!
SKVALDRA - Familievennlig hytte med anneks og solcelleanlegg i flotte Ringsakerfjellet.
Prisantydning2 400 000 kr
- Omkostninger
- 61 350 kr
- Totalpris
- 2 461 350 kr
- Kommunale avg.
- 4 226 kr per år
- Eiendomsskatt
- 2 184 kr per år
- Formuesverdi
- 352 608 kr
Nøkkelinfo
- Beliggenhet
- På fjellet
- Boligtype
- Hytte
- Eieform
- Eier (Selveier)
- Internt bruksareal
- 59 m² (BRA-i)
- Bruksareal
- 87 m²
- Eksternt bruksareal
- 28 m² (BRA-e)
- Balkong/Terrasse
- 76 m² (TBA)
- Tomteareal
- 1 004 m² (eiet)
- Byggeår
- 1975
- Soverom
- 4
- Energimerking
- F - Rød
- Overtakelse
- Overtakelse etter avtale med selger. Dersom budgiver har ønske/krav knyttet til overtakelsestidspunkt, skal dette angis i kjøpetilbudet.
Fasiliteter
Balkong/Terrasse
Barnevennlig
Bilvei frem
Peis/Ildsted
Rolig
Utsikt
Turterreng
Visning
Ved annonsert visning er det viktig at du melder deg på visningen ved å bruke visningspåmeldingsknappen eller kontakter megler. Annonserte visninger hvor det ikke er noen påmeldte innen kl. 16.00 dagen før visningsdagen vil ikke bli avholdt.
For visninger utover dette, ta direkte kontakt med megler.
Husk å lese komplett salgsoppgave før visning. Bestill komplett, utskriftsvennlig salgsoppgave.
VisningspåmeldingOm boligen
Velkommen til Skvaldra 67!
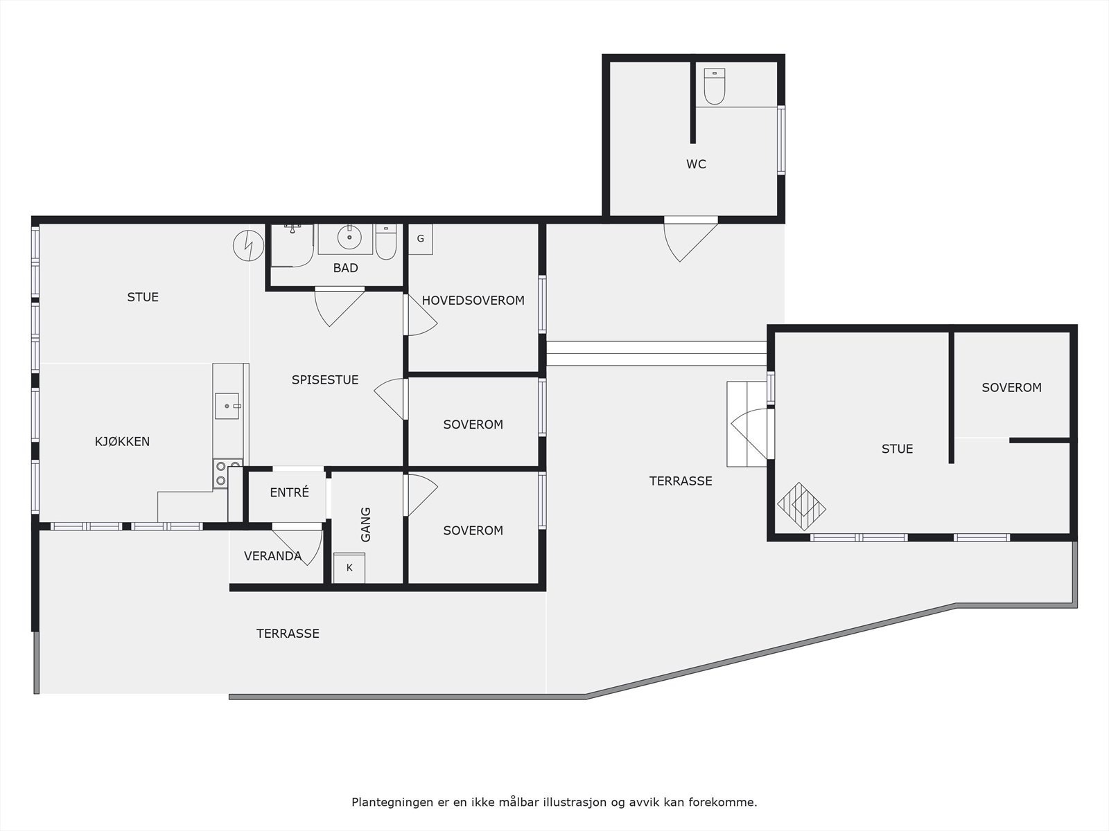
På Skvaldra i Ringsakerfjellet finner du denne koselige og familievennlige hytta, perfekt plassert midt i flott natur. Her får du både ro og nærhet til aktiviteter med skiløyper og turstier like utenfor døren.
Hytta har en gjennomtenkt og funksjonell planløsning med blant annet 4 soverom, stue og kjøkken. Det gir god plass til både familie og gjester. Et stort pluss er annekset med både soverom og stue perfekt som gjestehus eller et ekstra oppholdssted.
For deg som ønsker en hytte med en kombinasjon av komfort og enkelhet, er det verdt å merke seg at hytta er utstyrt med solcellepanel og batteripakke, installert i 2015.
Merk deg dette:
- Solcellepanel
- 4 soverom
- Fin om vinteren og sommeren
- Gode turmuligheter
- kort veg til snaufjellet
På Skvaldra i Ringsakerfjellet finner du denne koselige og familievennlige hytta, perfekt plassert midt i flott natur. Her får du både ro og nærhet til aktiviteter med skiløyper og turstier like utenfor døren.
Hytta har en gjennomtenkt og funksjonell planløsning med blant annet 4 soverom, stue og kjøkken. Det gir god plass til både familie og gjester. Et stort pluss er annekset med både soverom og stue perfekt som gjestehus eller et ekstra oppholdssted.
For deg som ønsker en hytte med en kombinasjon av komfort og enkelhet, er det verdt å merke seg at hytta er utstyrt med solcellepanel og batteripakke, installert i 2015.
Merk deg dette:
- Solcellepanel
- 4 soverom
- Fin om vinteren og sommeren
- Gode turmuligheter
- kort veg til snaufjellet
NB: Knappen for å vise hele beskrivelsen har kun en visuell effekt.
NB: Knappen for å vise hele beskrivelsen har kun en visuell effekt.
Salgsoppgaven beskriver vesentlig og lovpålagt informasjon om eiendommen
Se komplett salgsoppgaveNærområdet
Aktiv Innlandet
Annonseinformasjon
| FINN-kode | 424940117 |
|---|---|
| Sist endret | 09. sep. 2025 12:22 |
| Referanse | 1214250102 |
Annonsene kan være mangelfulle i forhold til lovpålagt opplysningsplikt. Før bindende avtale inngås oppfordres interessenter til å innhente komplett informasjon fra meglerforetaket, selger eller utleier.


































