Bildegalleri

PrivatMegleren har gleden av å presentere Kråmvikvegen 113 - Idyllisk hytteeiendom med svært usjenert beliggenhet!
Flott hytteeiendom med eventyrlig utsikt over Totak | Usjenert beliggenhet | 2 soverom & anneks
Prisantydning2 190 000 kr
- Omkostninger
- 54 750 kr
- Totalpris
- 2 244 750 kr
- Kommunale avg.
- 3 366 kr per år
Nøkkelinfo
- Beliggenhet
- På fjellet
- Boligtype
- Hytte
- Eieform
- Eier (Selveier)
- Internt bruksareal
- 59 m² (BRA-i)
- Bruksareal
- 29 m²
- Eksternt bruksareal
- 29 m² (BRA-e)
- Balkong/Terrasse
- 28 m² (TBA)
- Tomteareal
- 759 m² (eiet)
- Byggeår
- 1954
- Soverom
- 2
- Rom
- 3
- Energimerking
- G - Oransje
Fasiliteter
Balkong/Terrasse
Peis/Ildsted
Turterreng
Utsikt
Innlagt vann
Visning
Ta kontakt for å avtale visning.Husk å lese komplett salgsoppgave før visning. Bestill komplett, utskriftsvennlig salgsoppgave.
VisningspåmeldingOm boligen
Svært idyllisk hytteeiendom med usjenert beliggenhet i Kråmviki på Rauland. Hytta har en eventyrlig utsikt over Totak og fjellene. Skiløyper, snøscooterløyper, toppturer, multemyrer og fiske/badevann i umiddelbar nærhet. 7 min til Rauland sentrum og kun 15 min til Rauland Skisenter. Hytta passer utmerket for de som ønsker i pose og sekk - med friluftsliv samtidig som at man har alle fasiliteter i nærheten.
Hytta har innlagt vann og strøm samt forbrennings toalett. Sommervei helt frem til hytta. Vinterstid er det 500 meter fra brøytet parkeringsplass og frem til hytta via preparert løype (ski, snøscooter eller til fots.
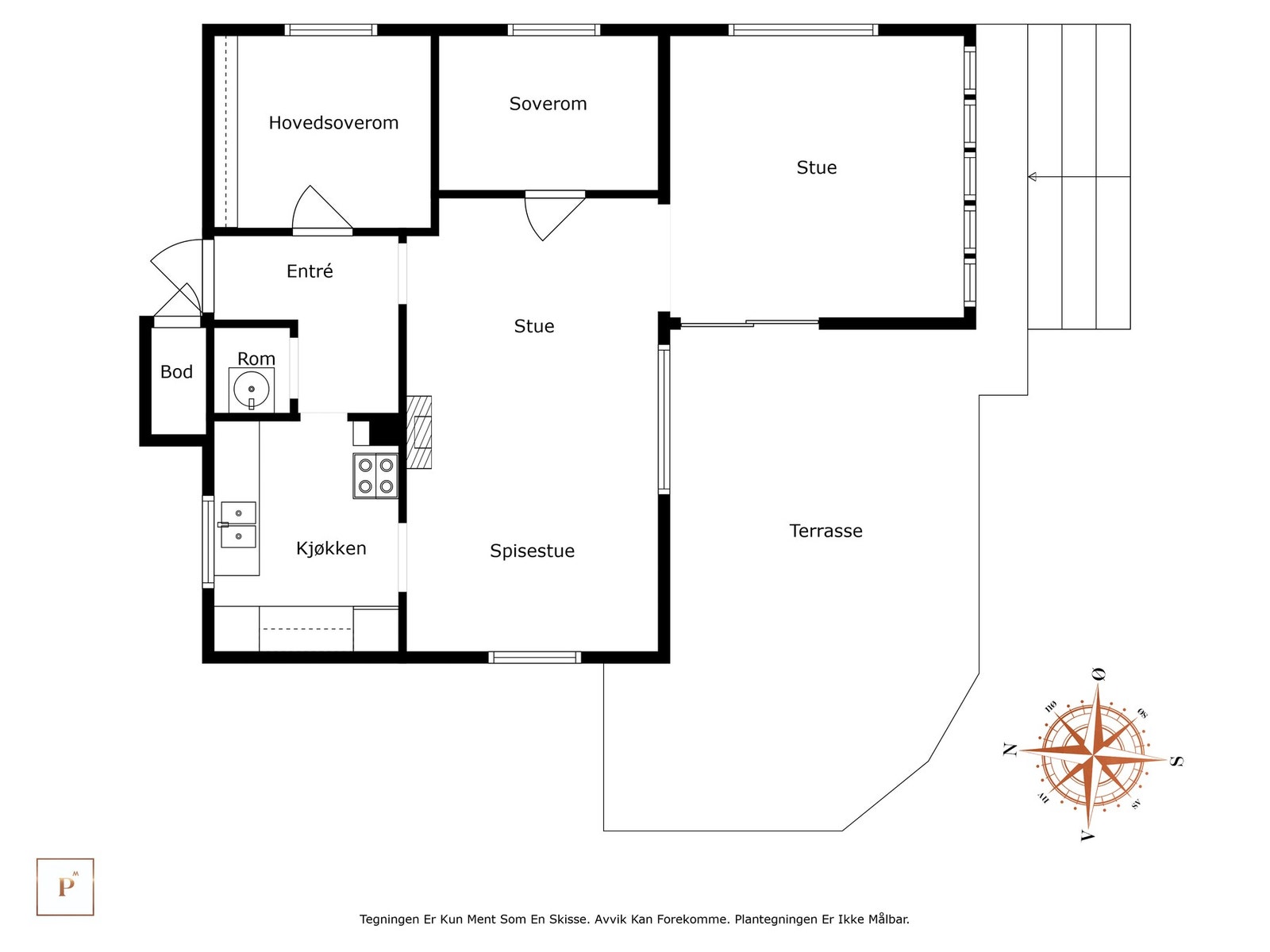
Hytta inneholder: Entré, kjøkken, spisestue, stue og 2 soverom. I tillegg er det oppført et anneks (2016) på eiendommen med bad og soverom. Hytta må ses - Velkommen!
Hytta har innlagt vann og strøm samt forbrennings toalett. Sommervei helt frem til hytta. Vinterstid er det 500 meter fra brøytet parkeringsplass og frem til hytta via preparert løype (ski, snøscooter eller til fots.
Hytta inneholder: Entré, kjøkken, spisestue, stue og 2 soverom. I tillegg er det oppført et anneks (2016) på eiendommen med bad og soverom. Hytta må ses - Velkommen!
NB: Knappen for å vise hele beskrivelsen har kun en visuell effekt.
NB: Knappen for å vise hele beskrivelsen har kun en visuell effekt.
Salgsoppgaven beskriver vesentlig og lovpålagt informasjon om eiendommen
Se komplett salgsoppgaveNyttige lenker
Nærområdet
PrivatMegleren Telemark
Kun det beste på dine vegne
Annonseinformasjon
| FINN-kode | 424544041 |
|---|---|
| Sist endret | 01. des. 2025 09:27 |
| Referanse | 201250101 |
Annonsene kan være mangelfulle i forhold til lovpålagt opplysningsplikt. Før bindende avtale inngås oppfordres interessenter til å innhente komplett informasjon fra meglerforetaket, selger eller utleier.



































