Bildegalleri

Velkommen til Søndre St. Olav 142! Romslig og innbydende fritidsbolig med flott beliggenhet på et attraktivt og veletablert hyttefelt. (Foto: EFKT v/ Kristian Haug)
Vangsåsen
Flott familiehytte med attraktiv beliggenhet på Søndre St. Olav - Ski, tur og sykling rett utenfor døren!
Prisantydning3 150 000 kr
- Omkostninger
- 103 640 kr
- Totalpris
- 3 253 640 kr
- Kommunale avg.
- 7 210 kr per år
- Eiendomsskatt
- 2 042 kr per år
Nøkkelinfo
- Beliggenhet
- Innlandet
- Boligtype
- Hytte
- Eieform
- Eier (Selveier)
- Internt bruksareal
- 82 m² (BRA-i)
- Bruksareal
- 87 m²
- Eksternt bruksareal
- 5 m² (BRA-e)
- Balkong/Terrasse
- 21 m² (TBA)
- Tomt
- Festet
- Festeavgift
- 6 700 kr
- Byggeår
- 2009
- Soverom
- 3
- Rom
- 4
- Energimerking
- D - Oransje
- Overtakelse
- Etter nærmere avtale.
Fasiliteter
Balkong/Terrasse
Barnevennlig
Bilvei frem
Garasje/P-plass
Peis/Ildsted
Rolig
Innlagt strøm
Turterreng
Visning
For å delta på visning, ber vi om at du melder deg på. Da sikrer vi at du får nødvendig informasjon og at det er satt av tilstrekkelig med tid. Kontakt megler dersom annet tidspunkt ønskes. Husk å lese salgsoppgaven før visningen, så du stiller forberedt. NB. Visning utgår dersom det ikke er noen påmeldte.
Ønsker du kun å bli holdt orientert, kan du fra eiendommens hjemmeside få varsel om solgtpris, eller kontakte megler.
VisningspåmeldingOm boligen
Velkommen til Søndre St. Olav 142!
Romslig og innbydende fritidsbolig på hyttefeltet Søndre St. Olav, med flott beliggenhet nær Hedmarksvidda og skiløyper rett utenfor døren.
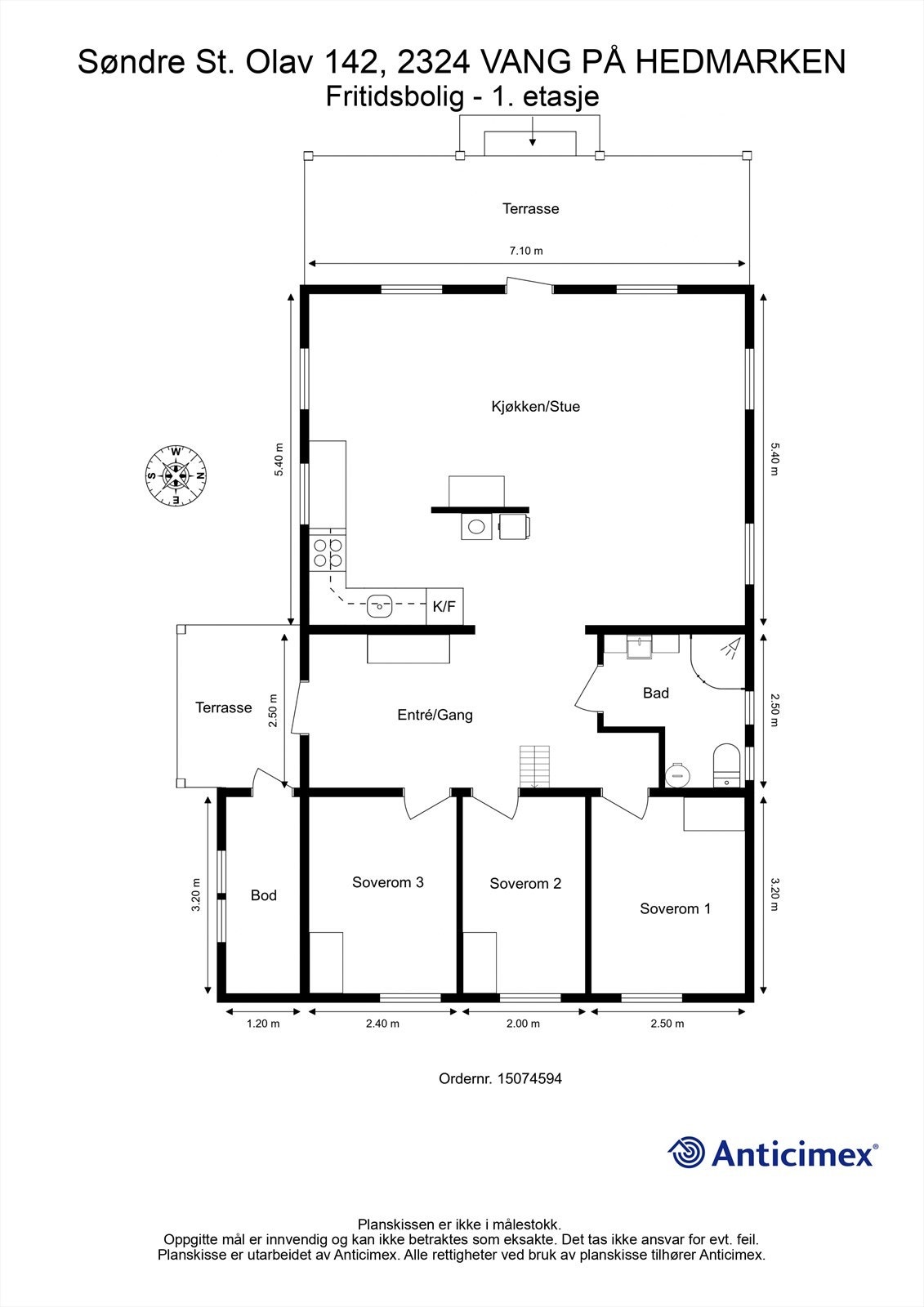
Hytta har en praktisk planløsning med entré, bad, tre soverom, åpen stue-/kjøkkenløsning og hems med sengeplasser.
Det store oppholdsrommet gir god plass til familie og venner, og både peisovn og åpen peis skaper en lun atmosfære.
Badet ble oppgradert i 2017 med fliser, gulvvarme og opplegg for vaskemaskin.
Kjøkkenet har innredning med både skap- og benkeplass, samt frittstående hvitevarer som komfyr, kjøleskap og oppvaskmaskin.
Gulvvarme i entré og bad, samt oppvarming med peis og elektrisitet.
Kort vei til lysløype, sykkelstier, turmuligheter og serveringshytter.
Velkommen til en hyggelig visning!
Romslig og innbydende fritidsbolig på hyttefeltet Søndre St. Olav, med flott beliggenhet nær Hedmarksvidda og skiløyper rett utenfor døren.
Hytta har en praktisk planløsning med entré, bad, tre soverom, åpen stue-/kjøkkenløsning og hems med sengeplasser.
Det store oppholdsrommet gir god plass til familie og venner, og både peisovn og åpen peis skaper en lun atmosfære.
Badet ble oppgradert i 2017 med fliser, gulvvarme og opplegg for vaskemaskin.
Kjøkkenet har innredning med både skap- og benkeplass, samt frittstående hvitevarer som komfyr, kjøleskap og oppvaskmaskin.
Gulvvarme i entré og bad, samt oppvarming med peis og elektrisitet.
Kort vei til lysløype, sykkelstier, turmuligheter og serveringshytter.
Velkommen til en hyggelig visning!
NB: Knappen for å vise hele beskrivelsen har kun en visuell effekt.
NB: Knappen for å vise hele beskrivelsen har kun en visuell effekt.
Salgsoppgaven beskriver vesentlig og lovpålagt informasjon om eiendommen
Se komplett salgsoppgaveNyttige lenker
Nærområdet
Krogsveen Hamar
Velkommen til en enklere boligreise.
Annonseinformasjon
| FINN-kode | 424365099 |
|---|---|
| Sist endret | 01. des. 2025 08:58 |
| Referanse | KR65.25252 |
Annonsene kan være mangelfulle i forhold til lovpålagt opplysningsplikt. Før bindende avtale inngås oppfordres interessenter til å innhente komplett informasjon fra meglerforetaket, selger eller utleier.
































