Bildegalleri

EiendomsMegler 1 v/ Gabrielle Moen Remøy har gleden av å presentere Nyevegen 201 og 203! (Foto EFKT v/ Svein Olav Humberset).
Sævik
Flotte rorbuer fra 2015 i Sævikane | Brygge med båtplasser | Nydelig utsikt |
Prisantydning4 100 000 kr
- Omkostninger
- 103 590 kr
- Totalpris
- 4 203 590 kr
- Kommunale avg.
- 627 kr per år
- Formuesverdi
- 878 781 kr
- Verditakst
- 4 100 000 kr
Nøkkelinfo
- Boligtype
- Andre
- Eieform
- Eier (Selveier)
- Internt bruksareal
- 150 m² (BRA-i)
- Bruksareal
- 150 m²
- Balkong/Terrasse
- 138 m² (TBA)
- Tomteareal
- 333 m² (eiet)
- Byggeår
- 2015
- Soverom
- 2
- Rom
- 4
- Sengeplasser
- 6
- Energimerking
- D - Rød
Fasiliteter
Balkong/Terrasse
Fiskemulighet
Strandlinje
Utsikt
Bilvei frem
Båtplass
Innlagt strøm
Innlagt vann
Visning
Ta kontakt for å avtale visning.Husk å lese komplett salgsoppgave før visning. Bestill komplett, utskriftsvennlig salgsoppgave.
VisningspåmeldingOm boligen
EiendomsMegler 1 v/ Gabrielle Moen Remøy har gleden av å presentere Nyevegen 201 og 203! Dette er flotte rorbuer helt i sjøkanten. Her har du flytebrygge med båtplasser, plass for båtopptrekk, flott beliggenhet og nydelig utsikt!
Rorbu 201 har følgende innhold:
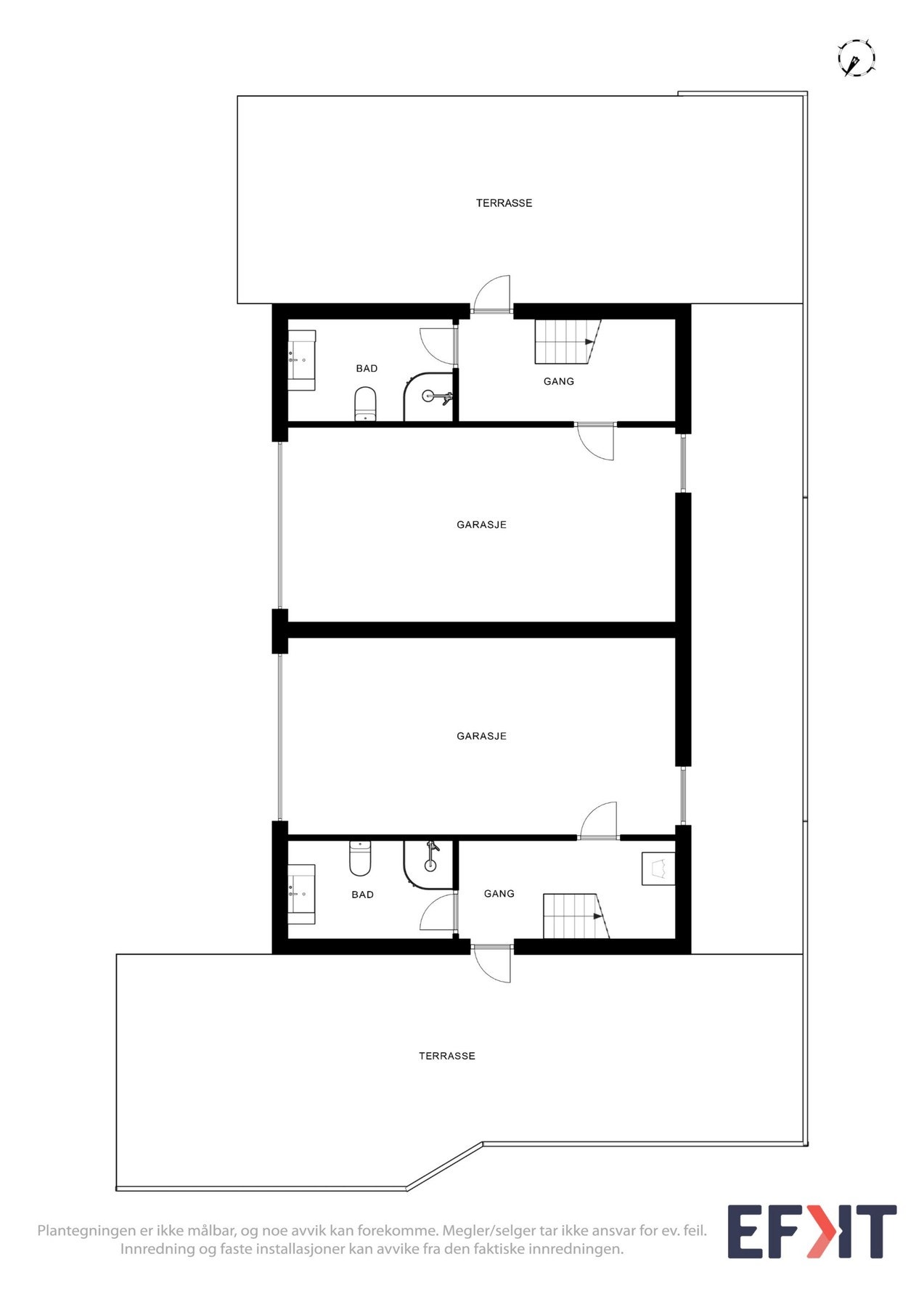
Underetasje: Gang m/ trapp og "vaskerom", bad og båtrom.
Hovedetasje: Stue/kjøkken og et soverom.
Rorbu 203 har følgende innhold:
Underetasje: Gang m/ trapp og "vaskerom", bad og båtrom.
Hovedetasje: Stue/kjøkken og et soverom.
Om man ønsker å dele opp rorbuene, kan disse seksjoneres opp.
Er du ute etter flotte rorbuer i nydelige omgivelser? Sjekk ut disse!
Rorbu 201 har følgende innhold:
Underetasje: Gang m/ trapp og "vaskerom", bad og båtrom.
Hovedetasje: Stue/kjøkken og et soverom.
Rorbu 203 har følgende innhold:
Underetasje: Gang m/ trapp og "vaskerom", bad og båtrom.
Hovedetasje: Stue/kjøkken og et soverom.
Om man ønsker å dele opp rorbuene, kan disse seksjoneres opp.
Er du ute etter flotte rorbuer i nydelige omgivelser? Sjekk ut disse!
NB: Knappen for å vise hele beskrivelsen har kun en visuell effekt.
NB: Knappen for å vise hele beskrivelsen har kun en visuell effekt.
Salgsoppgaven beskriver vesentlig og lovpålagt informasjon om eiendommen
Se komplett salgsoppgaveNyttige lenker
Nærområdet
EiendomsMegler 1 Søre Sunnmøre
Vi loser deg trygt gjennom hele boligsalget
Annonseinformasjon
| FINN-kode | 424249491 |
|---|---|
| Sist endret | 13. jan. 2026 12:33 |
| Referanse | 22250093 |
Annonsene kan være mangelfulle i forhold til lovpålagt opplysningsplikt. Før bindende avtale inngås oppfordres interessenter til å innhente komplett informasjon fra meglerforetaket, selger eller utleier.










































