Bildegalleri

Eiendomsmegler 1 Fjellmegleren har gleden av å presentere denne store og moderne hytta beliggende på Solgrenda på Nesfjellet.
Solgrenda ved Nesfjellet Alpin - ski, golf, sykkel og turstier rett utenfor døra! 125 kvm gulvareal!
Prisantydning4 590 000 kr
- Omkostninger
- 116 070 kr
- Totalpris
- 4 706 070 kr
- Kommunale avg.
- 14 307 kr per år
- Eiendomsskatt
- 8 395 kr per år
- Formuesverdi
- 1 125 000 kr
Nøkkelinfo
- Beliggenhet
- På fjellet
- Boligtype
- Hytte
- Eieform
- Eier (Selveier)
- Internt bruksareal
- 79 m² (BRA-i)
- Bruksareal
- 81 m²
- Eksternt bruksareal
- 2 m² (BRA-e)
- Balkong/Terrasse
- 29 m² (TBA)
- Renovert år
- 2019
- Tomteareal
- 1 549 m² (eiet)
- Byggeår
- 2019
- Soverom
- 4
- Rom
- 6
- Energimerking
- C - Oransje
- Overtakelse
- Etter nærmere avtale med selger. Vær vennlig å angi ønsket overtagelsesdato i vedlagte budskjema.
Fasiliteter
Innlagt vann
Alpinanlegg
Balkong/Terrasse
Barnevennlig
Bilvei frem
Bredbåndstilknytning
Garasje/P-plass
Golfbane
Hage
Peis/Ildsted
Rolig
Utsikt
Innlagt strøm
Turterreng
Lademulighet
Visning
Visning i hele høstferien etter nærmere avtale med megler.
Husk å lese komplett salgsoppgave før visning. Bestill komplett, utskriftsvennlig salgsoppgave.
VisningspåmeldingOm boligen
Eiendomsmegler 1 Fjellmegleren har gleden av å presentere denne store og moderne hytta beliggende på fremste rekke i Solgrenda på Nesfjellet i en av Norges mest komplette skidestinasjoner. Hytta er godt vedliekholdt, har ski inn/ski til langrennsløypene som går like i nærheten og kun noen hundre meter til starten av skiheisen og resten av Nesfjellet Alpin. Beliggenheten er solrik og med vid utsikt mot alpinbakken og golfbanen. Parkering rett utenfor hytta.
Innhold:
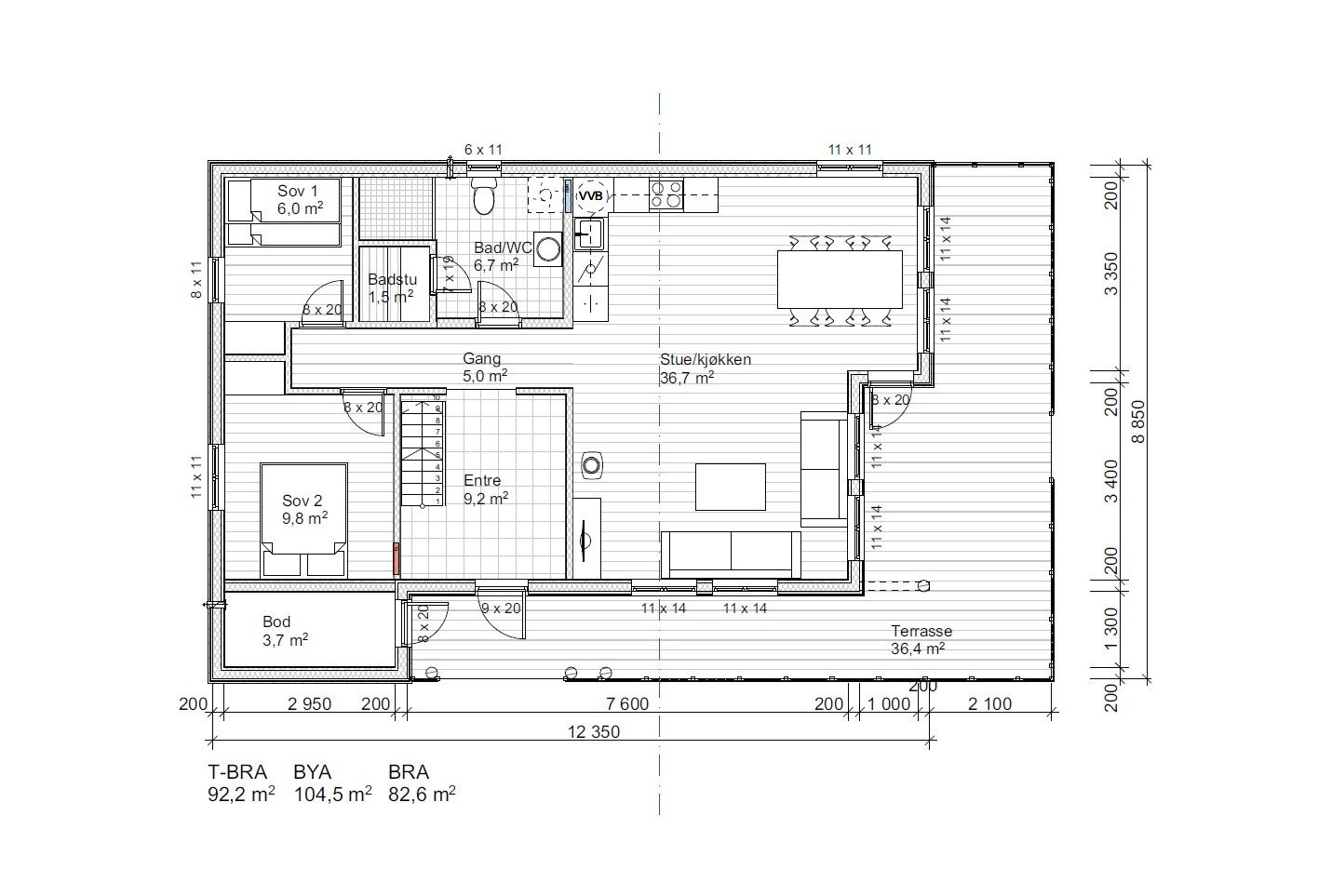
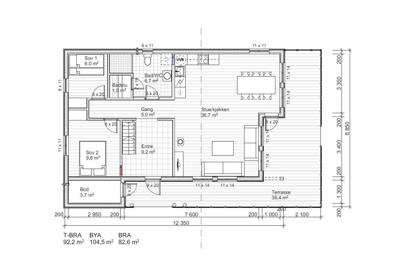
Hovedetasje: Entré, stue, kjøkken, bad, badstue, to soverom og bod med egen inngang.
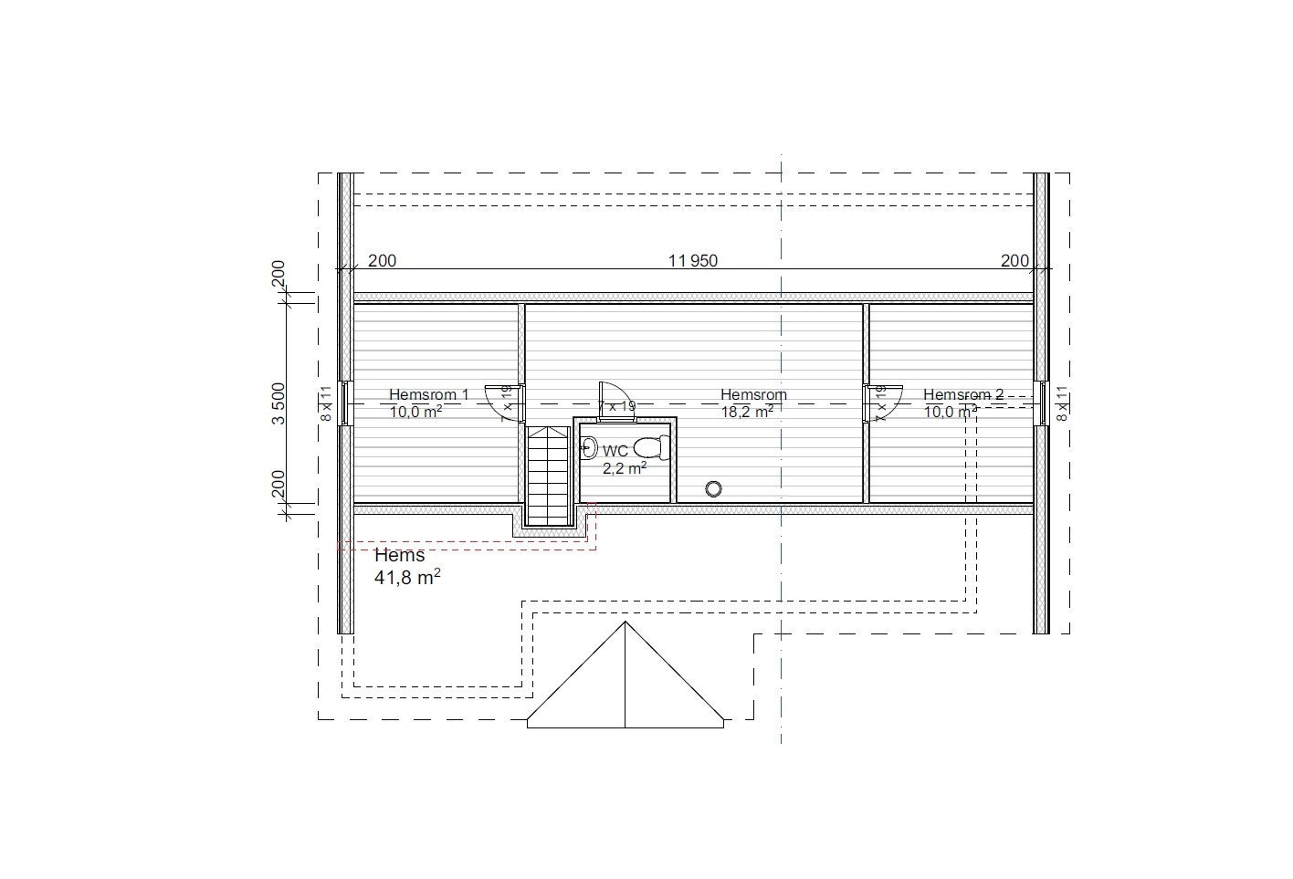
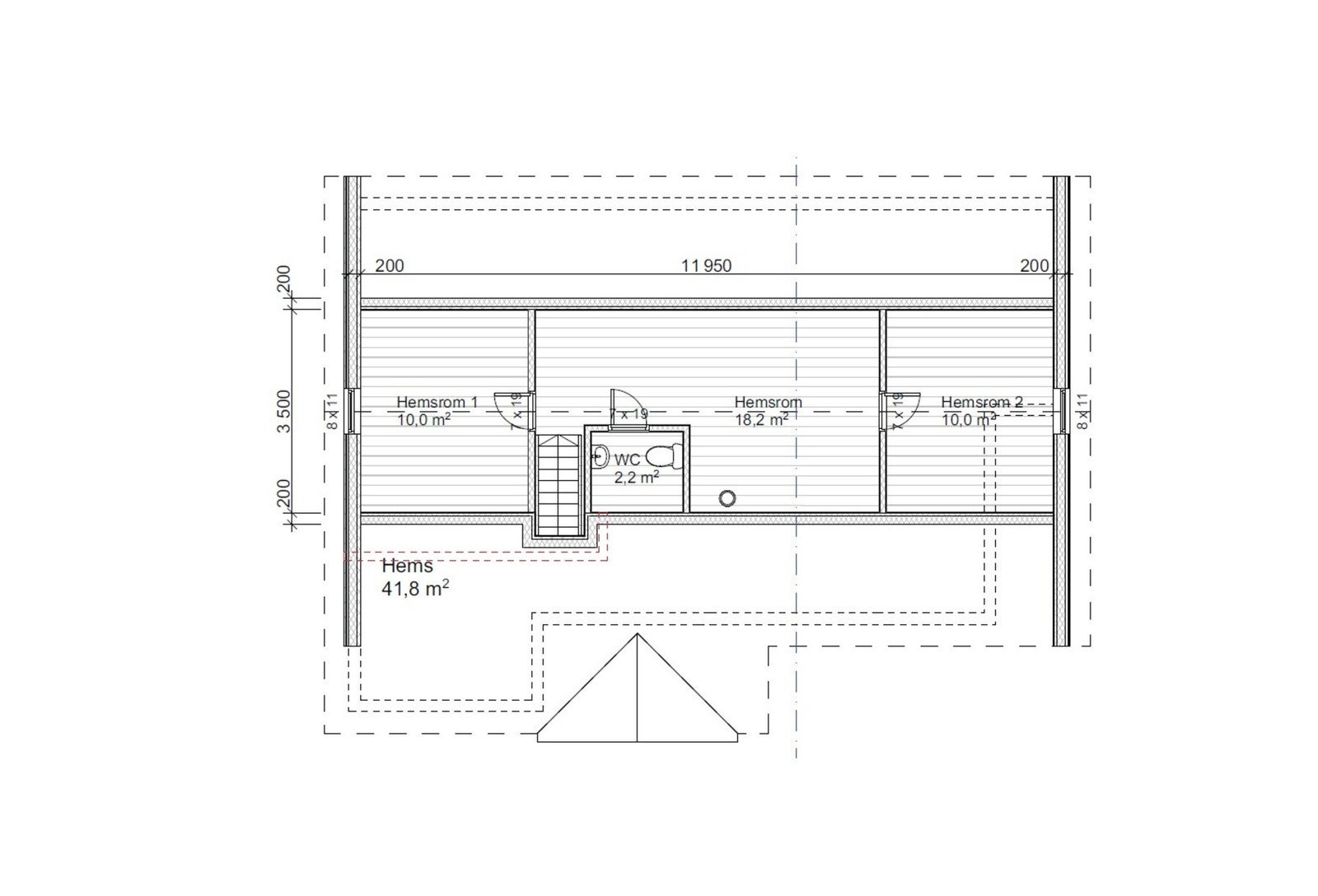
Hems: Tre hemsrom og toalettrom.
Andre høydepunkter:
- Ski og sykkelstier rett i nærheten
- Utført grunnarbeider for ev. fremtidig stort uthus
- Fiber, Elbillader, styring av varmen
- Påkostet Kvik kjøkken
- Badstue
- Ekstra lagring i knevegg
Innhold:
Hovedetasje: Entré, stue, kjøkken, bad, badstue, to soverom og bod med egen inngang.
Hems: Tre hemsrom og toalettrom.
Andre høydepunkter:
- Ski og sykkelstier rett i nærheten
- Utført grunnarbeider for ev. fremtidig stort uthus
- Fiber, Elbillader, styring av varmen
- Påkostet Kvik kjøkken
- Badstue
- Ekstra lagring i knevegg
NB: Knappen for å vise hele beskrivelsen har kun en visuell effekt.
NB: Knappen for å vise hele beskrivelsen har kun en visuell effekt.
Salgsoppgaven beskriver vesentlig og lovpålagt informasjon om eiendommen
Se komplett salgsoppgaveNyttige lenker
Nærområdet
EiendomsMegler 1 Fjellmegleren
Vi loser deg trygt gjennom hele boligsalget
Annonseinformasjon
| FINN-kode | 423294416 |
|---|---|
| Sist endret | 14. nov. 2025 12:47 |
| Referanse | 1531250184 |
Annonsene kan være mangelfulle i forhold til lovpålagt opplysningsplikt. Før bindende avtale inngås oppfordres interessenter til å innhente komplett informasjon fra meglerforetaket, selger eller utleier.















































