Bildegalleri

Velkommen til Brennaveien 189 - Presentert av Kenneth Eckmann v/EIE Sandvika
VELTELIA
Familievennlig hytte med idyllisk og usjenert beliggenhet - Båtplass - Bilvei helt frem - Fantastisk utsikt
Prisantydning3 600 000 kr
- Omkostninger
- 111 250 kr
- Totalpris
- 3 711 250 kr
- Kommunale avg.
- 5 200 kr per år
- Eiendomsskatt
- 2 955 kr per år
Nøkkelinfo
- Beliggenhet
- Ved sjøen
- Boligtype
- Hytte
- Eieform
- Eier (Selveier)
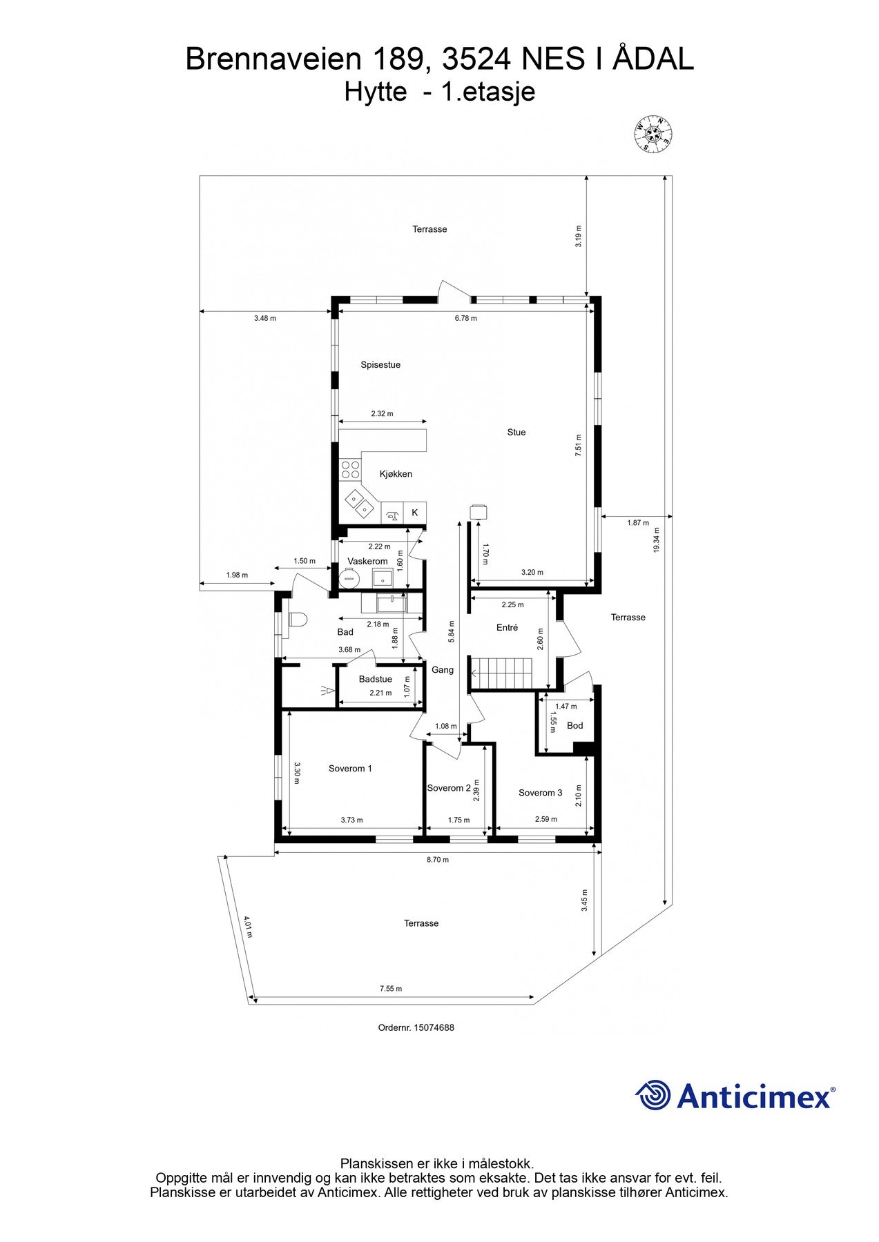
- Internt bruksareal
- 99 m² (BRA-i)
- Bruksareal
- 122 m²
- Eksternt bruksareal
- 23 m² (BRA-e)
- Balkong/Terrasse
- 182 m² (TBA)
- Tomteareal
- 2 550 m² (eiet)
- Byggeår
- 2006
- Soverom
- 4
- Rom
- 4
- Sengeplasser
- 11
- Energimerking
- D - Gul
Fasiliteter
Balkong/Terrasse
Garasje/P-plass
Fiskemulighet
Peis/Ildsted
Turterreng
Utsikt
Bilvei frem
Båtplass
Innlagt strøm
Visning
Ta kontakt for å avtale visning.Husk å lese komplett salgsoppgave før visning. Bestill komplett, utskriftsvennlig salgsoppgave.
VisningspåmeldingOm boligen
Velkommen til Bekkelia - Presentert av Kenneth Eckmann v/EIE eiendomsmegling Sandvika.
Dette er en koselig og innholdsrik hytte med usjenert beliggenhet i naturskjønne omgivelser på Nes i Ådal, i hyttefeltet Veltelia. Hytta har hele 4 soverom og 11 sengeplasser, perfekt for både storfamilien og venner som ønsker å nyte rolige dager på landet.
Eiendommen ligger på en romslig tomt på hele 2,5 mål, med god plass til lek, aktiviteter og avslapning. Den store terrassen innbyr til lange sommerdager med sol, grilling og hyggelige kvelder.
Kun en kort spasertur unna finner du både strand og fine turstier som byr på flotte opplevelser året rundt. Hytta disponerer egen båtplass på felles brygge - et ypperlig utgangspunkt for båt- og fiskeeventyr på vannet.
Her får du en klassisk hyttefølelse kombinert med praktiske fasiliteter og en sjelden usjenert plassering. Bekkelia gir deg et sted å senke skuldrene, koble av fra hverdagen og skape minner for livet.
Dette er en koselig og innholdsrik hytte med usjenert beliggenhet i naturskjønne omgivelser på Nes i Ådal, i hyttefeltet Veltelia. Hytta har hele 4 soverom og 11 sengeplasser, perfekt for både storfamilien og venner som ønsker å nyte rolige dager på landet.
Eiendommen ligger på en romslig tomt på hele 2,5 mål, med god plass til lek, aktiviteter og avslapning. Den store terrassen innbyr til lange sommerdager med sol, grilling og hyggelige kvelder.
Kun en kort spasertur unna finner du både strand og fine turstier som byr på flotte opplevelser året rundt. Hytta disponerer egen båtplass på felles brygge - et ypperlig utgangspunkt for båt- og fiskeeventyr på vannet.
Her får du en klassisk hyttefølelse kombinert med praktiske fasiliteter og en sjelden usjenert plassering. Bekkelia gir deg et sted å senke skuldrene, koble av fra hverdagen og skape minner for livet.
NB: Knappen for å vise hele beskrivelsen har kun en visuell effekt.
NB: Knappen for å vise hele beskrivelsen har kun en visuell effekt.
Salgsoppgaven beskriver vesentlig og lovpålagt informasjon om eiendommen
Se komplett salgsoppgaveNyttige lenker
Nærområdet
EIE eiendomsmegling Bærum
Annonseinformasjon
| FINN-kode | 423083592 |
|---|---|
| Sist endret | 26. okt. 2025 05:04 |
| Referanse | 36251500 |
Annonsene kan være mangelfulle i forhold til lovpålagt opplysningsplikt. Før bindende avtale inngås oppfordres interessenter til å innhente komplett informasjon fra meglerforetaket, selger eller utleier.

















































