Bildegalleri

VASET | Planlagt eksklusiv oppstuehytte med robust og stav-/laftdetaljer I Fantastisk utsiktstomt
- Omkostninger
- 53 590 kr
- Totalpris
- 7 503 590 kr
Nøkkelinfo
- Beliggenhet
- På fjellet
- Boligtype
- Hytte
- Eieform
- Eier (Selveier)
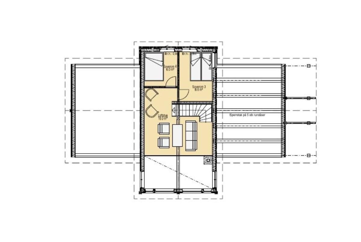
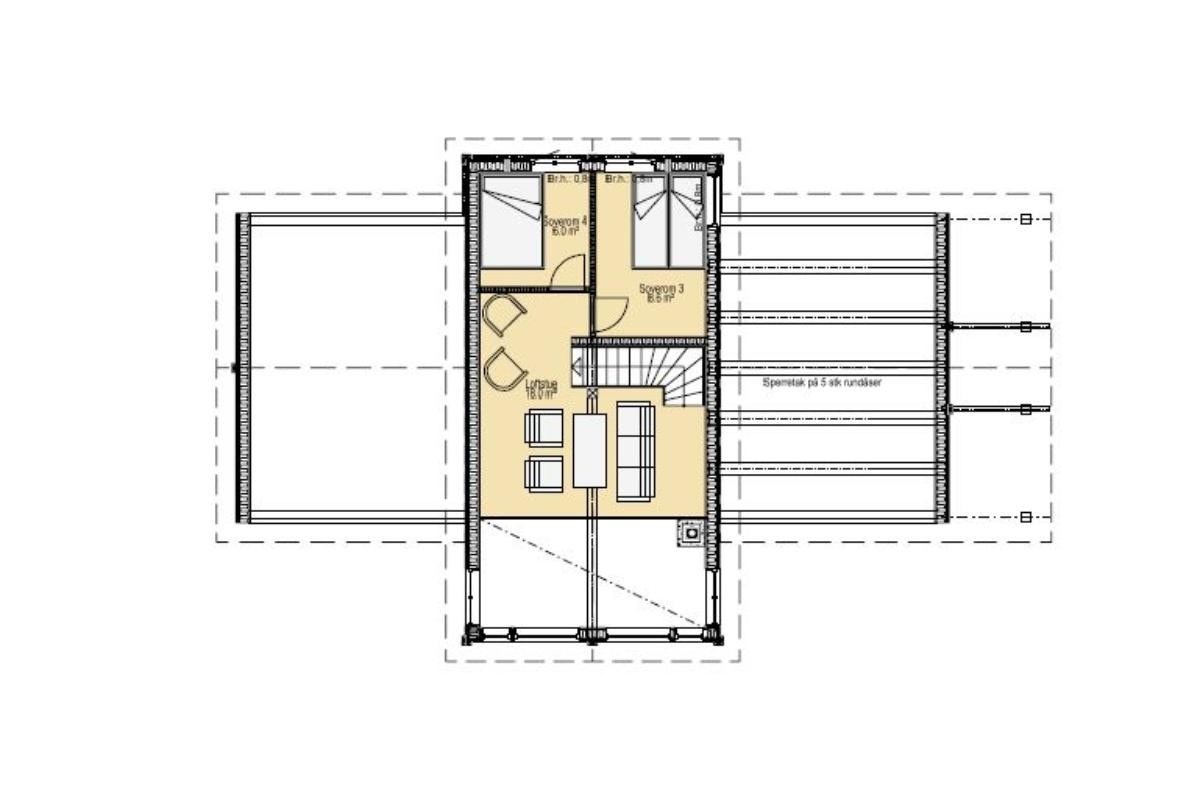
- Internt bruksareal
- 141 m² (BRA-i)
- Bruksareal
- 141 m²
- Balkong/Terrasse
- 34 m² (TBA)
- Tomt
- Eiet
- Soverom
- 4
- Rom
- 5
- Meter over havet
- 1030
Fasiliteter
Visning
Ta kontakt for å avtale visning.Om eiendommen
Beliggenhet
Vaset - Brakastølen Øst i Valdres ligger høyt og flott ved Panoramavegen mellom Valdres og Hemsedal. Området er en naturperle og byr på et flott og variert fjellterreng med et levende stølsmiljø, varierte aktiviteter, butikker og hyggelige serveringssteder.
Adkomst/Tomteforhold
Veibeskrivelse fra Sandvika/Oslo:
Følg E-16 forbi Fagernes. Ta av ved Ulnes kirke, og følg Panoramavegen opp på fjellet ca 9 km til Vaset. Ta av til høyre 50 m etter Vasetsenteret (Joker og Intersport). Følg så Knippesetvegen (bomvei kr.50,-) i ca. 3,8 km og ta av til høyre ved skiltet Brakastølen. Følg Nye Øyevegen i ca. 1 km, og du har det nye feltet på venstre hånd.
Tomtene ligger vestvendt med fantastisk utsikt mot den ville fjellheimen.
Generelt
Leveransebeskrivelse ved komplett nøkkelferdig leveranse av Rå 156:
• Utvendig består ytterveggene av 22 mm tett låvekledning i mix bredder 5”/6”/7”, med stavlaftlook utsmykking. Kledningen er beiset med ett strøk i farge 9061 Jernvitrol fra Jotun.
• Taktekking: Torvtak 2-lags naturtorv.
• Takrenner m/nedløp, sort.
• Vinduer med 2-lags superenergi, farge grå S 7500-N
• Ytterdør med vindu, farge grå S 7500-N
• Boddør uten vindu, farge grå S 7500-N
• Gulv: eikeparkett, 3-stavs eikeparkett inkl. parkettunderlag
• Bad: Fliser 30×60 cm, farge grå/Antrasite.
• Vindfang: Fliser 30×60 cm, farge grå/Antrasite.
• Innvendig dører: Scanflex Sindre i farge S 7500-N
• 13 mm stående sprekkpanel på alle innvendige vegger, beiset i farge Skigardgrå fra produsent.
• 13×120 mm sprekkpanel i himling, beiset i farge Skigardsgrå fra produsent.
• Listverk (i glatt standard) samt gerikter og foringer i vinduer og dører beiset i farge Skigardsgrå fra produsent.
• Dragere i stue, beiset i farge som vegg/himling.
• Kjøkken: I leveransen inngår kjøkken inkl. hvitevarer iht kjøkkentegninger.
Elektro installasjoner og utstyr
Elektrikerarbeid med utstyr iht. standard elektrikeroppsett. I utstyrsoversikt kan nevnes:
• Inntaksskap og kabel mellom inntak og sikringsskap
• Komplett sikringskap m/overbelastningsvern, jordfeilautomater og overspenningsvern
• Spotbelysning m bryter i VF og bad
• Varmekabler med termostat og føler i vindfang og bad
• Strømforsyning til seriekoblet røkvarslere m/back up batteri
• Utelamper, taklamper, panelovner, stikkontakter, komfyrvakt
Rørlegger / innvendig sanitær:
Rørleggerarbeid med utstyr iht. standard rørleggeroppsett. I utstyrsoversikt kan nevnes:
• Bunnledninger (rør som ligger i betongplate fra ringmur fram til toalett, sluker osv)
• Frostfri utekran
• Dusjhjørne med dusjgarnityr
• Slukrenne på bad
• Vegghengt WC med innebygd sisterne
• Varmtvannsbereder 200 liter
• Ett-greps blandebatterier på kjøkken og bad
• Baderomsinnredning med skuffer og heldekkende servantplate i porselen
Murer, flis, pipe og ildsted
Leveranse og arbeid iht standard oppsett, som:
• Peisovn type Origo fra Nordpeis, sort
• Stålpipe, sort
• Gulv i vindfang og innvendig bod med gulvfliser 30x60 fliser, grå/Antrasite
• Bad/vask med gulvfliser 30x60, grå/Antrasite
• Fliser på gulv og vegger, grå/Antrasite
DIVERSE:
• Ansvar for byggesøknadsprosessen
• Utførelse og leveranse i henhold til dagens tekniske krav
• Garanti basert på Norsk Standard 3425
Det presiseres at følgende ikke er med i vår leveranse i denne omgang:
• garderobe, senger etc.
• diverse avgifter (kommunale byggesaksgebyr, kostnader for korrekt innmåling/plassering av hytta i terrenget, byggestrøm og renovasjon under byggeperioden)
I tillegg til kjøpesum så kommer anleggsbidrag og andre kostnader ifb med oppføring av hytta. Egen oversikt fremgår i salgsprospekt.
Prisen er basert på tomteverdi fra kr. 1 500 000,-
og verdi grunnarbeid kr. 700 000,– for 2024
Det tas forbehold om endelig godkjenning fra kommunen..
Det tas forbehold om prisendringer.
Salgsoppgaven beskriver vesentlig og lovpålagt informasjon om eiendommen
Se komplett salgsoppgaveNærområdet
Tindehytter AS
Annonsene kan være mangelfulle i forhold til lovpålagt opplysningsplikt. Før bindende avtale inngås oppfordres interessenter til å innhente komplett informasjon fra meglerforetaket, selger eller utleier.




















