Bildegalleri

Tidligere bygget kundetilpasset Solheim 110 på tomt 68 beliggende ved siden av annonsert tomt. Store vindusflater som gir mye lys i hytta og en formidabel utsikt mot Vestfjella Gråkampem, Gilafjell og Hemsedalsfjella
Prosjektert Saltdalshytte på solrik tomt med nydelig utsikt i vakkert høyfjellsterreng
- Omkostninger
- 27 500 kr
- Totalpris
- 5 298 000 kr
Nøkkelinfo
- Beliggenhet
- På fjellet
- Boligtype
- Hytte
- Eieform
- Selveier
- Bruksareal
- 129 m²
- Tomteareal
- 1 307 m² (eiet)
- Byggeår
- 2025
- Soverom
- 4
- Sengeplasser
- 10
- Meter over havet
- 990
- Energimerking
Fasiliteter
Visning
Ta kontakt for å avtale visning.Om eiendommen
Beliggenhet
Ta kontakt for visning på av hytte og tomter på Høyset Panorama!
Høyset Panorama Vaset ligger i svakt hellende, åpent høyfjellsterreng med noe bjørkeskog. Tomtene er store, solrike selveiertomter som ligger vendt mot sør-vest og de har alle fantastisk panoramautsikt mot vestfjella og inn i Jotunheimen.
På Vaset finner du en stor og innholdsrik matvarebutikk, Intersport, hyggelige fjell-restauranter, høyfjellshotell, hestesenter, snowpark, leirskole med aktivitetssenter og fantastiske naturområder.
Vaset er en perle og kan karakteriseres som et av de mest attraktive hytteområdene i Valdres og kan tilby et vidt spekter av aktiviteter, både sommer og vinter. Med sin grense til Stølsvidda er Vaset også et sykkeleldorado - lett kuperte løyper i et levende kulturlandskap med åpne støler og med flott utsikt i naturskjønne omgivelser. Turmulighetene i området er mange, her kan man bestige toppturer med vidsyn over Jotunheimen eller velge enklere turer langs koselige seterveger.
Vaset er en vinterdestinasjon - 120 km med preparerte langrennsløyper er tilknyttet tomtene på Høyset Panorama. Her kan du spenne på deg skiene ved hytteveggen og gå rett ut i løypa! På Vaset er det også et eget barnevennlig alpinanlegg, og skulle man ønske større utfordringer er toppene i området perfekte for randonee og frikjøring.
På Høyset Panorama finnes det også muligheter for å prøvebo slik at man kan bli enda bedre kjent med dette fantastiske området, ta kontakt for informasjon rundt dette!
Litt info om den flott destinasjonen Vaset er - den iltt uoppdagede indrefileten i Valdres:
Vasetområdet er meget barne- og familievennlig og byr på en mengde fasiliteter.
På sommeren er det et eldorado for sykkel- og fotturer. Det er også mange fiskevann i nærheten og gode jaktmuligheter.
Området byr på en rekke turstier og veier som innbyr til både korte og lengre vandreturer, samt en rekke topper og turmål.
Mange av turstiene er også godt merket. Grønsennknippa (1368 moh.), Gråkampen (1595 moh.) og Synet (1137 moh.) er de mest kjente i området, herfra har man panoramautsikt utover Valdres og Hemsedal.
Det har også blitt populært med randonee-turer både til Grønsennknippa, Gråkampen og Skogshorn - får å nevne noen. Man kan leie randoneeutstyr på Intersport Vaset.
Alpinanlegget passer for hele familien, flotte forhold for både slalåm- og snowboardentusiaster. 3 skitrekk og eget barnetrekk. 6 nedfarter og gode muligheter for off-piste i bjørkeskogen.
Parken består av en mengde rails og hopp i forskjellig vanskelighetsgrad. Skisenteret tilbyr også aking med proffkjelker ned den 1200 meter lange akebakken.
I varmestua er det fyr på peisen, og du kan få deg en varm og god kopp kakao, eller noe godt å spise.
Vaset Skiheiser har også et godt utgangspunkt for deg som har lyst til å kite eller gå på langrenn. Ta heisen opp og gå innover snaufjellet mens ungene boltrer seg i bakken.
"Fjølastubben Brettlag" arrangerer aktiviteter som snowbordkurs, Vinterjam og Påskejam . Følg gjerne Vaset Skiheiser på Facebook. Se mer informasjon på vasetskiheiser.no.
"Sekskanten" er en restaurant/pub med overnattingsmuligheter i leiligheter. Man kan også arrangere private selskap.
Stedet ligger rett ved skiløypa, her er det ypperlig å stoppe for en vaffel og kakao i solveggen. I sesongene er det god stemning med afterski og livemusikk.
Allsidig a la carte og catering meny.
Kilde: Sekskanten.no.
Vasetstølen ligger idyllisk til og er kjent for sitt gode kjøkken og intime atmosfære. Nyt maten her eller bestill catering.
De tilbyr overnatting i gamle og sjarmerende tømmerhytter. En flott plass å arrangere spesielle anledninger som bryllup og bursdag.
Kilde: https://www.vasetstolen.no/
Gomobu Fjellstue tilbyr hotellrom og hytter.
De er også kjent for sitt gode vertskap og mat. I sommersesongen har de uteservering. I hotellbaren serverer de vin, drinker og et variert utvalg øl fra lokale bryggerier.
Restauranten har sitteplasser til 150 gjester og passer perfekt for selskap og bryllup.
De arrangerer også temaaftener som Oktoberfest, rakfisken og biffaften.
Kilde: Gomobu.no
Joker butikken er en innholdsrik matvareforretning som er åpen uken igjennom - hele året. De tilbyr et bredt vareutvalg innenfor matvarer, lokalmat, jernvare, leker og diverse hytte- og friluftsutstyr.
Her får man kjøpt fiskekort, propan og parafin.
De tilbyr også Fjellservice med blant annet varelevering, oppfyring på hytta og nøkkeloppbevaring.
Kilde: https://www.vasetsenteret.no/
Intersport Vaset, ligger vis a vis Vasetsenteret, har hyggelig betjening og godt utvalg av sportsutstyr, klær m.m.
Valdres vinterfestival er på Vaset, dette ble gjennomført for første gang i 2015 og ble en suksess. Sett av siste helgen i november og bli med på mange flotte aktiviteter for hele familien. Gå gjerne inn på http://www.valdresvinterfestival.no/.
Valdresrittet er meget populært, rittet er 53 km langt og går i variert terreng i et av landets mest aktive stølsområder. Valdresrittet har eliteklasse, aldersbestemte- og turklasse. De har distanser som passer både for eliten og de som bare vil oppleve stemningen, atmosfæren og den flotte naturen. Det er også et eget ungdom- og barneritt. Gå gjerne inn på http://www.valdresrittet.com/
Ca. times kjøring til Beitostølen og Hemsedal (via Panoramavegen).
På vaset.no kan du lese mer om vakre og spennende Vaset!
* Gjelder ikke Steg, anneks og garasjer
Generelt
Vi er tilgjengelige på Vaset på kort varsel for visning av tomter og ferdig oppført hytte - ta kontakt!
Helt fra Saltdalshyttas start i 1979, har vi vært opptatt av å bygge hytter som holder høy kvalitet og som er tilpasset et værhardt Norge. Etter å ha bygd over 6000 hytter både til fjells og ved havet, i alle slags forhold, vet vi hva som skal til for å bygge en kvalitetshytte som varer.
Saltdalshytta tilbyr hytter med god utnyttelsesplass og mye lysinnslipp med store vinduer som optimaliserer utsikten. Vi har elementproduksjon av våre hytter som gjør at hyttene blir ført opp på kort tid og blir raskere tett. Dette er en fordel med tanke på vær og vind under byggeprosessen.
I denne annonsen er det vår populære Solheim 110 som prosjekteres på tomt 67 på Høyset Panorama. Kjøper står fritt til å velge mellom alle ledige tomter på feltet og tomt 67 er et eksempel. Valgene og mulighetene er mange slik at dere kan realisere hyttedrømmen fullt ut. Vi har også denne hytta på Norsk Hyttesenter på Hellerudsletta, slik at man kan få et fullverdig og riktig inntrykk av denne flotte hytta.
Det er mange brikker som settes på plass når man ser etter drømmeplassen på fjellet. Hyttetomtens beliggenhet er kanskje noe av det aller viktigste - solforhold, utsikt og generell beliggenhet. Mulighetene for langrennsturer, sykkelturer, fotturer og andre naturopplevelser. Det er mye som skal klaffe for at den virkelig gode magefølelsen melder seg. Høyset Panorama hyttefelt har alle disse kvalitetene og området må rett og slett bare oppleves!
Adkomst/Tomteforhold
Kjør E16 til Fagernes, og videre nord-vestover ca. 10 km til Ulnes. Ta til venstre på Panoramaveien og følg denne til Vasetsenteret. Ved Vasetsenteret fortsett mot høyre og videre ca 5 km til Høyset Panorama på høyre side.
Innhold
Prisen inkluderer :
Nøkkelferdig Solheim 110 fra Saltdalshytta oppgradert med torv på taket: Kr 3 420 500,-
Selveiertomt nr 67 på Høyset Panorama : Kr 1 200 000 ,-. Dette er tomt på hele 1,3 mål vestvendt med fantastisk utsikt og sol fra morgen til kveld.
Grunnarbeider og støpt plate: Kr 650 000,- ( dette er et estimat ut i fra tidligere erfaringer, eksakt pris må hentes inn i hvert enkelt tilfelle)
TA KONTAKT FOR Å FÅ EKSAKT PRIS INKL DE TILVALG DU ØNSKER FOR Å REALISERE DRØMMEHYTTEN!
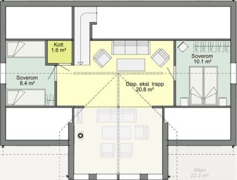
Solheim er Aurora-utgaven av vår populære Jubileumsmodell vi lanserte i 2019 , med et oppgradert og moderne eksteriør. Her er stua er plassert i vinkelen, med god takhøyde og store vindusflater. To gode soverom og et flott kjøkken er plassert i hver sin fløy. Planløsningen inneholder ett bad og en separat WC som evt kan oppgraderes til et bad nr 2 hvis man ønsker dette. Foretrekker man sauna på hytta kan dette også tegnes inn, mulighetene er mange. Adkomsten er lagt til hyttas bakside, og her er det også en romslig utebod. På loftet er det to disponible/soverom, og en loftsstue med et galleri mot stua og utsikten.
https://saltdalshytta.no/hytter/ferdighytter/solheim/solheim-110
Ta kontakt på epost, henning.strom@saltdalshytta.no, eller på telefon 92 24 03 79 for utfyllende informasjon eller et ønske om visning av hytten vår på Hellerudsletta / tomtene oppe på Høyset Panorama.
Standard
Ta kontakt med megler for komplett informasjon
Nærområdet
Bokvalitet Hus & Hytter Saltdalshytta
Annonsene kan være mangelfulle i forhold til lovpålagt opplysningsplikt. Før bindende avtale inngås oppfordres interessenter til å innhente komplett informasjon fra meglerforetaket, selger eller utleier.


























